ONE SANTANA WEST
OFFICE LEASE AGREEMENT
BETWEEN
SR WINCHESTER, LLC, LANDLORD
AND
CALIX, INC., TENANT
DATE: December 16, 2024
Table of Contents
| | | | | | | | |
| ARTICLE I | REFERENCE PROVISIONS, DEFINITIONS AND EXHIBITS | Page 1 |
| Section 1.01 | Reference Provisions | Page 1 |
| Section 1.02 | Definitions | Page 3 |
| ARTICLE II | LEASED PREMISES | Page 5 |
| ARTICLE III | TERM | Page 5 |
| Section 3.01 | Term | Page 5 |
| Section 3.02 | End of Term | Page 6 |
| Section 3.03 | Holding Over | Page 6 |
| ARTICLE IV | USE AND OPERATION OF THE LEASED PREMISES | Page6 |
| Section 4.01 | Use | Page 6 |
| Section 4.02 | Signs and Advertising | Page 8 |
| ARTICLE V | RENT | Page 8 |
| Section 5.01 | Rent Payable | Page 8 |
| ARTICLE VI | COMMON AREAS | Page 9 |
| Section 6.01 | Use of Common Areas | Page 9 |
| Section 6.02 | Management and Operations of Common Areas | Page 10 |
| Section 6.02 | Tenant’s Share of Operating Costs and Taxes | Page 10 |
| ARTICLE VII | SERVICES AND UTILITIES | Page 15 |
| Section 7.01 | Services Provided by Landlord | Page 15 |
| Section 7.02 | Landlord’s Access to Leased Premises | Page 16 |
| Section 7.03 | Utilities | Page 17 |
| Section 7.04 | LEED Standard | Page 17 |
| Section 7.05 | Amenities | Page 17 |
| ARTICLE VIII | INDEMNITY AND INSURANCE | Page 19 |
| Section 8.01 | Indemnity | Page 19 |
| Section 8.01 | Landlord Not Responsible for Acts of Others | Page 19 |
| Section 8.03 | Tenant’s Insurance | Page 19 |
| Section 8.04 | Tenant’s Contractor’s Insurance | Page 20 |
| Section 8.05 | Policy Requirements | Page 21 |
| Section 8.06 | Increase in Insurance Premiums | Page 21 |
| Section 8,07 | Waiver of Right of Recovery | Page 22 |
| Section 8.08 | Landlord’s Insurance | Page 22 |
| ARTICLE IX | CONSTRUCTION AND ALTERATIONS | Page 22 |
| Section 9.01 | Condition of Leased Premises Upon Delivery | Page 22 |
| Section 9.02 | Tenant Improvements | Page 23 |
| Section 9.03 | Alterations | Page 24 |
| Section 9.04 | Work Requirements | Page 24 |
| Section 9.05 | Ownership of Improvements | Page 24 |
| Section 9.06 | Removal of Tenant’s Property | Page 25 |
| Section 9.07 | Mechanic’s Liens | Page 25 |
| Section 9.08 | Cabling; Rooftop Installations | Page 25 |
| Section 0.09 | Tenant Security Systems | Page 27 |
| ARTICLE X | REPAIRS, MAINTENANCE, AND LANDLORD’S ACCESS | Page 27 |
| Section 10.01 | Repairs by Landlord | Page 27 |
| Section 10.02 | Repairs and Maintenance by Tenant | Page 28 |
| Section 10.03 | Inspections, Access and Emergency Repairs by Landlord | Page 28 |
| Section 10.04 | California Accessibility Compliance | Page 28 |
| ARTICLE XI | CASUALTY | Page 29 |
| Section 11.01 | Fire or Other Casualty | Page 29 |
| Section 11.02 | Right to Terminate | Page 29 |
| Section 11.03 | Landlord’s Duty to Reconstruct | Page 29 |
| Section 11.04 | Tenant’s Duty to Reconstruct | Page 30 |
| Section 11.05 | Insurance Proceeds | Page 30 |
| Section 11.06 | Landlord Not Liable for Business Interruption | Page 30 |
| | | | | | | | |
| Section 11.07 | Rent Abatement | Page 31 |
| Section 11.08 | Casualty Prior to Term Commencement Date | Page 31 |
| Section 11.09 | Waiver | Page 31 |
| ARTICLE XII | CONDEMNATION | Page 31 |
| Section 12.01 | Taking of Leased Premises | Page 31 |
| Section 12.02 | Taking of Building | Page 31 |
| Section 12.03 | Condemnation Award | Page 32 |
| Section 12.04 | Waiver of CCP § 1265.130 | Page 32 |
| ARTICLE XIII | PARKING GARAGE, PARKING RIGHTS & BUILDING AMENITIES | Page 32 |
| Section 13.01 | Parking Rights | Page 32 |
| Section 13.02 | Parking Rules and Conditions | Page 33 |
| ARTICLE XIV | SUBORDINATION AND ATTORNMENT | Page 33 |
| Section 14.01 | Subordination | Page 33 |
| Section 14.02 | Attornment | Page 33 |
| Section 14.03 | Estoppel Certificate | Page 33 |
| Section 14.04 | Quiet Enjoyment | Page 33 |
| ARTICLE XV | ASSIGNMENT AND SUBLETTING | Page 34 |
| Section 15.01 | Landlord’s Consent Required | Page 34 |
| Section 15.02 | Tenant Remedies | Page 36 |
| Section 15.03 | Intentionally omitted | Page 36 |
| Section 15.04 | Landlord Consent Not Required | Page 36 |
| ARTICLE XVI | DEFAULT AND REMEDIES | Page 36 |
| Section 16.01 | Default | Page 36 |
| Section 16.02 | Remedies and Damages | Page 37 |
| Section 16.03 | Remedies Cumulative | Page 38 |
| Section 16.04 | Waiver | Page 38 |
| ARTICLE XVII | MISCELLANEOUS PROVISIONS | Page 39 |
| Section 17.01 | Notices | Page 39 |
| Section 17.02 | Recording | Page 39 |
| Section 17.03 | Interest and Administrative Costs | Page 39 |
| Section 17.04 | Legal Expenses | Page 39 |
| Section 17.05 | Successors and Assigns | Page 40 |
| Section 17.06 | Limitation on Right of Recovery Against Landlord; Transfer of Landlord’s Interest | Page 40 |
| Section 17.07 | Security Deposit; Letter of Credit | Page 40 |
| Section 17.08 | Entire Agreement; No Representations; Modification | Page 44 |
| Section 17.09 | Severability | Page 44 |
| Section 17.10 | Joint and Several Liability | Page 44 |
| Section 17.11 | Broker’s Commission | Page 44 |
| Section 17.12 | No Option; Irrevocable Offer | Page 44 |
| Section 17.13 | Inability to Perform | Page 44 |
| Section 17.14 | Survival | Page 45 |
| Section 17.15 | Corporate Tenants | Page 45 |
| Section 17.16 | Construction of Certain Terms | Page 45 |
| Section 17.17 | Showing of Leased Premises | Page 45 |
| Section 17.18 | Relationship of Parties | Page 45 |
| Section 17.19 | Rule Against Perpetuities | Page 46 |
| Section 17.20 | Choice of Law | Page 46 |
| Section 17.21 | Choice of Forum | Page 46 |
| Section 17.22 | Hazardous Substances | Page 46 |
| Section 17.23 | OFAC Certification | Page 47 |
| Section 17.24 | Time is of the Essence | Page 47 |
| Section 17.25 | Counterparts; Electric Signature | Page 47 |
| Section 17.26 | Confidentiality | Page 47 |
| Section 17.27 | Right of First Offer to Lease | Page 47 |
| Section 17.28 | Future Development | Page 49 |
OFFICE LEASE AGREEMENT
THIS OFFICE LEASE AGREEMENT (this “Lease”) is made this 16th day of December, 2024 (the “Effective Date”), by and between SR WINCHESTER, LLC, a Delaware limited liability company, by its managing member, STREET RETAIL, INC., a Maryland corporation (“Landlord”), and CALIX, INC., a Delaware corporation (“Tenant”).
IN CONSIDERATION of the payments of rents and other charges provided for herein and the covenants and conditions hereinafter set forth, Landlord and Tenant hereby covenant and agree as follows:
ARTICLE I
REFERENCE PROVISIONS, DEFINITIONS AND EXHIBITS
As used in this Lease, the following terms shall have the meanings set forth in Sections 1.01 and 1.02 below.
Section 1.01. Reference Provisions.
A. Leased Premises: That portion of the Building described in Section 1.01.J, containing approximately 22,990 square feet of Floor Area and consisting of that portion of the fourth (4th) designated as Suite 450 and depicted on Exhibit A-2 attached hereto.
B. Term: Commencing on the Term Commencement Date and continuing for ninety (90) months, subject to extension pursuant to Exhibit F hereto.
C. Delivery Date: Subject to the terms, conditions and adjustments set forth in Section 9.01 below, the date of delivery of the Leased Premises (the “Delivery Date”) shall be the date Landlord delivers the Leased Premises with the Tenant Work Substantially Complete (as defined in Exhibit B hereto), less such number of days of Tenant Delay (as defined in Exhibit B hereto) as offset by any number of days of Landlord Delay (as defined in Exhibit B here). It is estimated that the Delivery Date will occur no later than August 1, 2025, subject to day-for-day extension for delays resulting from Force Majeure Delay (as defined in Exhibit B hereto) or Tenant Delay (as may be extended, the “Anticipated Delivery Date”).
D. Term Commencement Date: The date (the “Term Commencement Date”) shall be the later of (i) the Delivery Date and (ii) the date that a non-disturbance agreement (the “Ground Lessor Non-Disturbance Agreement”) in the form of Exhibit J hereto executed by Landlord and Ground Lessor (as defined below) has been delivered to Tenant (collectively, the “Delivery Condition”).
E. Rent Commencement Date: The Term Commencement Date.
F. Termination Date: The date that is (i) the last day of the Term, or (ii) any earlier date on which this Lease is terminated in accordance with the provisions hereof.
G. Minimum Rent:
| | | | | | | | | | | | | | |
Lease Months: | Monthly Minimum Rent Per Square Foot of Floor Area: | Monthly Minimum Rent: |
Annual Minimum Rent: |
| 1-12* | $49.80 | $95,408.50 | $1,144,902.00* | |
| 13-24 | $51.29 | $98,270.76 | $1,179,249.06 | |
| 25-36 | $52.83 | $101,218.88 | $1,214,626.53 | |
| 37-48 | $54.42 | $104,255.44 | $1,251,065.33 | |
| 49-60 | $56.05 | $107,383.11 | $1,288,597.29 | |
| 61-72 | $57.73 | $110,604.60 | $1,327,255.21 | |
| | | | | | | | | | | | | | |
| 75-84 | $59.46 | $113,922.74 | $1,367,072.87 | |
| 85-90 | $61.25 | $117,340.42 | $1,408,085.06 | |
*Notwithstanding the foregoing, Minimum Rent shall be abated during the first six (6) full calendar months of the initial Lease Year following the Rent Commencement Date (the “Abatement Period”). Notwithstanding such abatement of Minimum Rent, all other sums due under this Lease including, without limitation, Tenant’s Share of Operating Costs and Taxes (as defined below), shall be payable as provided in this Lease from and after the Rent Commencement Date. The amount of Minimum Rent conditionally abated for the Abatement Period (which Landlord and Tenant hereby agree shall in no event exceed the aggregate total of Five Hundred Seventy-Two Thousand Four Hundred Fifty-One and 00/100 Dollars ($572,451.00)), shall be referred to herein as the “Abated Minimum Rent”. The Abated Minimum Rent is conditioned upon Tenant’s full and timely performance of all of its material obligations under this Lease. If at any time during the initial Term of the Lease a Default (as defined below) by Tenant occurs and this Lease is terminated as a result thereof, then the Abated Minimum Rent shall immediately become void, and Tenant shall promptly pay to Landlord, in addition to all other amounts due to Landlord under this Lease, the unamortized amount of the Abated Minimum Rent (which amount shall be amortized on a straight-line basis without interest over the initial Term of the Lease).
H. Security Deposit: The sum of Two Hundred Eighty-Six Thousand Two Hundred Twenty Five and 50/100ths Dollars ($286,225.50), subject to reduction in accordance with Section 17.07 of this Lease.
I. Rent Payments: Except to the extent Tenant is required to make such payments electronically in the manner set forth in Section 5.01 of this Lease, Rent payments due herein shall be made payable to Landlord at the following address:
SR Winchester, LLC
c/o Federal Realty Investment Trust
P.O. Box 846073
Los Angeles, CA 90084-6073
J. Notice Addresses:
TO LANDLORD:
SR Winchester, LLC
c/o Federal Realty Investment Trust
909 Rose Avenue, Suite 200
North Bethesda, MD 20852
Attention: Legal Department
TO TENANT:
Prior to the Term Commencement Date:
Calix, Inc.
2777 Orchard Parkway
San Jose, CA 95134
Attention: General Counsel
After the Term Commencement Date:
Calix, Inc.
1 Santana West
3155 Olsen Drive
Suite 450
San Jose, CA 95117
Attention: General Counsel
With a copy of Default notices to:
Nossaman LLP
50 California Street
Floor 34
San Francisco, CA 94111
Attention: Simon T. Adams, Eq.
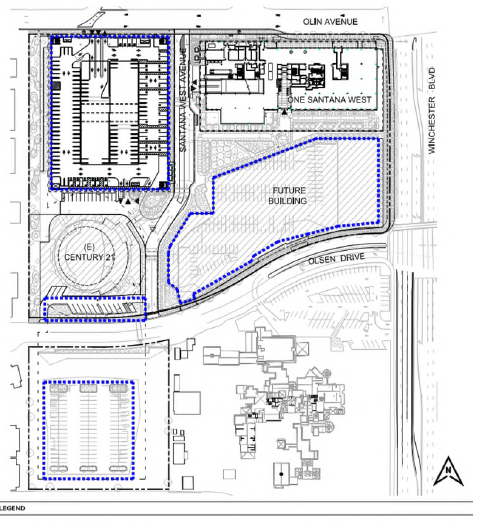
K. Building: That certain building located at 1 Santana West - 3155 Olsen Drive, San Jose, California and marked as the “Building” on Exhibit A-1, including two (2) subterranean floors (the “Tower Parking Garage”) containing approximately three hundred fifty (350) parking spaces, a bicycle storage room and certain other improvements. The Building contains approximately 365,968 square feet of Floor Area.
L. Parking Spaces: 3 parking spaces per 1,000 square feet of Floor Area (i.e., 69 spaces), approximately 0.8 parking spaces per 1,000 square feet of Floor Area (i.e., initially, 18 spaces) of which shall be located on the Tower Parking Garage and 2.2 parking spaces per 1,000 square feet of Floor Area (i.e., initially, 51 spaces) of which shall be located in the certain parking garage marked as “Common Parking Garage” on Exhibit A-1 (the “Common Parking Garage”), all of which shall be provided at no additional charge to Tenant during the Term of this Lease, including any extension of the Term for any Option Period.
M. Renewal Options: See Exhibit F.
N. Prepaid Rent: Contemporaneously with Tenant’s execution and delivery of this Lease, Tenant shall pay Landlord one (1) month of the monthly Minimum Rent chargeable hereunder during the first Lease Year, and the Security Deposit.
O. Schedules and Exhibits: The schedules and exhibits listed below are attached to this Lease and are hereby incorporated in and made a part of this Lease.
Exhibit A-1 Site Plan
Exhibit A-2 Leased Premises
Exhibit B Work Agreement
Exhibit B-1 Space Plan
Exhibit C Rules and Regulations
Exhibit D Rules for Tenant’s Contractors
Exhibit E Rooftop Rules and Regulations
Exhibit F Options To Extend
Exhibit G Tenant’s Approved Monument Locations
Exhibit H Office Tenant Sign Criteria
Exhibit I Form of Letter of Credit
Exhibit J Form of Ground Lessor Non-Disturbance Agreement
Exhibit K Ground Lessor Retained Property
Section 1.02. Definitions. In addition to the definitions set forth in Section 1.01, above, the following additional defined terms shall apply to the interpretation of this Lease.
A. Additional Rent: All sums payable by Tenant to Landlord under this Lease, other than Minimum Rent.
B. Building Hours: 7:00 a.m. until 6:00 p.m. on weekdays (excluding holidays) and from 8:00 a.m. until 1:00 p.m. on Saturdays (excluding holidays).
C. Business Day: Monday through Friday other than holidays observed by the State of California or the United States Federal Government.
D. Common Areas: (i) Any existing or future improvements, equipment, areas and/or spaces utilized for “Common Areas” in and around the Project and the Leased Premises which are for the non-exclusive, common and joint use or benefit of Landlord, Tenant and other tenants, occupants and users of the Project, as determined by Landlord, and (ii) the Parking Garage. The Common Areas include, without limitation, walkways; roofs; drains, gutters and downspouts; patio and seating areas; landscaped areas; utility and other building systems and/or maintenance areas, including equipment storage; and parking areas, drive aisles, and the parking islands within the Parking Garage. For the avoidance of doubt, the Common Areas exclude the outdoor terraces/decks on the 2nd, 7th and 8th floors of the Building (each a “Outdoor Deck” and, collectively, the “Outdoor Decks”).
E. Floor Area: When used with respect to the Leased Premises, the number of square feet set forth in Section 1.01.A, above, subject to adjustment as provided herein, which the Leased Premises shall be deemed to contain. The Floor Area of the Leased Premises was calculated by Landlord’s architect based on the Building Plans (as defined in Exhibit B) in accordance with a modified BOMA 2017 for Office Buildings: Standard Methods of Measurement Method A (ANSI/BOMA Z65.1-2017) whereby the Floor Area of the Building excludes the Outdoor Decks (the “Modified BOMA Standard”).
F. Interest: A rate per annum of the lesser of (i) ten percent (10%), or (ii) the maximum permitted by law.
G. Lease Year: Each twelve (12) month period beginning with the Term Commencement Date, and each anniversary thereof, if the Term Commencement Date occurs on the first day of a month. If the Term Commencement Date occurs on a day other than the first day of a month, then the first Lease Year shall begin on the Term Commencement Date and shall terminate on the last day of the twelfth (12th) full calendar month after the Term Commencement Date. Each subsequent Lease Year shall commence on the date immediately following the last day of the preceding Lease Year and shall continue for a period of twelve (12) full calendar months, except that the last Lease Year of the Term shall terminate on the date this Lease expires or is otherwise terminated.
H. Operating Year: Each calendar year or part thereof during the Term of this Lease or any renewal thereof, or at Landlord’s option, any other twelve (12) month period or part thereof designated by Landlord.
I. Parking Garage: Collectively, the Tower Parking Garage defined in Section 1.01.K above and the Common Parking Garage defined in Section 1.01.L above.
J. Parking Hours: 7:00 a.m. until 5:00 p.m. on each Business Day during the Term (for the Parking Garage).
K. Partial Lease Year: Any period during the Term which is less than a full Lease Year.
L. Person: Any individual, firm, partnership, association, corporation, limited liability company, or any other legal entity.
M. Project: That certain project known as Santana West located in San Jose, California.
N. Rent: Minimum Rent plus Additional Rent.
O. Tenant’s Share: A proportion determined as follows: (a) with respect to the calculation of Operating Costs (including Insurance Costs, as defined below), except as provided in Section 6.03 with respect to Cost Pools or otherwise provided in this Lease, a fraction, the numerator of which is the Floor Area of the Leased Premises and the denominator of which is the total Floor Area of the Building (i.e., 6.28%); and (b) with respect to the cost of providing the services described in Sections 7.01.E and 7.01.F to the Parking Garage and the cost of cleaning, sweeping, trash removal, resurfacing and restriping of or in the Parking Garage and other general upkeep of (1) the Tower Parking Garage, Tenant’s Operating Cost Share shall be 6.28%, and (2) of the Common Parking Garage, Tenant’s Operating Cost Share shall be 6.28% of 57.36% (i.e., 3.60%).
P. Tenant’s Tax Share: Shall mean a fraction, the numerator of which is the Floor Area of the Leased Premises and the denominator of which is the total Floor Area of the Building (i.e., 6.28%).
Q. Tenant Work Allowance: See Exhibit B.
ARTICLE II
LEASED PREMISES
Landlord demises and leases to Tenant, and Tenant leases and takes from Landlord, the Leased Premises together with the right to use for ingress to and egress from the Leased Premises, in common with others, the Common Areas. Except as expressly set forth to the contrary in this Lease, including, without limitation the exterior sign rights provided herein, Landlord has the exclusive right to (i) use the exterior faces of all perimeter walls of the Building, the roof and all air space above the Building, and (ii) install, maintain, use, repair and replace pipes, ducts, cables, conduits, plumbing, vents, utility lines and wires to, in, through, above and below the Leased Premises and other parts of the Building.
The parties acknowledge that this Lease is a sublease which shall, at all times during the Term, be subject and subordinate to the terms, covenants and conditions of that certain Ground Lease dated as of March 14, 2014 as amended from time to time (as amended, the “Ground Lease”), by and between Winchester Investments, LLC, a California limited liability company (“Ground Lessor”), as landlord, and Landlord, as tenant (the “Ground Lease”) and to all matters to which the Ground Lease is subject and subordinate. Tenant acknowledges and agrees that it has received a copy of the Ground Lease prior to the date hereof. Landlord and Tenant agree not to take any action or perform any act or fail to perform any act which would reasonably result in the violation or breach of any of the covenants, agreements, terms, or obligations under the Ground Lease on the part of the Landlord as tenant thereunder. Except as otherwise set forth in the Ground Lessor Non-Disturbance Agreement, this Lease shall automatically expire on or
prior to the expiration or earlier termination of the Ground Lease, and Ground Lessor shall have no obligation to Tenant under this Lease. As between the parties hereto only, in the event of a conflict between the terms of the Ground Lease and the terms of this Lease, then the terms of this Lease shall control.
Landlord represents and warrants that to the best of Landlord’s knowledge and belief the Landlord is not in default under the terms and conditions of the Ground Lease and that no notice from the Ground Lessor of a default has been received by Landlord, and that no event or circumstance exists that with the passage of time or notice from Ground Lessor would become a default under the terms of the Ground Lease.
Landlord represents and warrants that to the best of Landlord’s knowledge and belief the real property and the improvements and buildings and structures are not subject to any loan, mortgage or other security provided to the Landlord, the foreclosure of which would terminate this Lease.
ARTICLE III
TERM
Section 3.01. Term.
A. The Term shall commence on the Term Commencement Date specified in Section 1.01.D above, and shall be for the period of time specified in Section 1.01.B above, and expire on the Termination Date specified in Section 1.01.F above. Notwithstanding the foregoing, all obligations of the parties, as set forth in this Lease, shall be binding as of the date hereof. Notwithstanding the foregoing, all obligations of the parties, as set forth in this Lease, shall be binding as of the date hereof. Landlord shall use commercially reasonable efforts to deliver possession of the Leased Premises to Tenant by the Anticipated Delivery Date. If, despite such efforts, the Delivery Date has not occurred by Anticipated Delivery Date, Landlord shall not be subject to any liability therefor, nor shall such failure affect the validity of this Lease or the obligations of Tenant hereunder, however, if the Term Commencement Date has not occurred on or before thirty (30) days after the Anticipated Delivery Date, Tenant shall be entitled to a day for day Minimum Rent credit for each day of delay commencing on the thirty-first (31st) day after the Anticipated Delivery Date and continuing until the Term Commencement Date occurs, which rent credit shall be applied after the expiration of the Abatement Period. Notwithstanding the foregoing, if the Term Commencement Date has not occurred on or before the one hundred twentieth (120th) day after the Anticipated Delivery Date (the “Outside Date”), Tenant may elect to terminate this Lease by written notice to Landlord not later than thirty (30) business days following the Outside Date. Tenant shall not, however, be obligated to pay Minimum Rent or perform any other obligation of Tenant under the terms of this Lease (except to the extent required under Section 8 of the Work Agreement attached hereto as Exhibit B, as applicable) until Landlord delivers possession of the Leased Premises to Tenant, and any period of rent abatement that Tenant would otherwise have enjoyed shall run from the date of delivery of possession and continue for a period equal to what Tenant would otherwise have enjoyed under the terms hereof.
Section 3.02. End of Term.
This Lease shall terminate on the Termination Date without the necessity of Notice from either Landlord or Tenant. Upon the Termination Date, Tenant shall quit and surrender to Landlord the Leased Premises broom-clean, in good order and condition, ordinary reasonable wear and tear and damage by casualty not required to be repaired by Tenant or condemnation excepted, and shall surrender to Landlord all keys and access cards, if applicable, to or for the Leased Premises. In addition, Tenant shall remove Tenant’s Property (as defined below) in accordance with and subject to the provisions of Sections 9.05 and 9.06 hereof (the foregoing, collectively, the “Required Condition”).
Section 3.03. Holding Over.
A. Tenant agrees that it will not occupy or retain or allow occupancy or retention by any subtenant of possession of the Leased Premises at any time after the Termination Date. If Tenant fails to vacate the Leased Premises and deliver Landlord possession of the Leased Premises in
the Required Condition on the Termination Date, then Landlord shall have the benefit of all provisions of law respecting the speedy recovery of possession of the Leased Premises (whether by summary proceedings or otherwise). In addition to and not in limitation of the foregoing, occupancy subsequent to the Termination Date (“Holdover Occupancy”) shall be a tenancy at sufferance. Holdover Occupancy shall be subject to all terms, covenants, and conditions of this Lease (including those requiring payment of Additional Rent), except that the Minimum Rent for each day that Tenant holds over (“Holdover Minimum Rent”) shall be equal to one and one-half (1-1/2) times the per diem Minimum Rent payable in the last Lease Year for the first one hundred twenty (120) days and two (2) times the per diem Minimum Rent payable in the last Lease Year thereafter, and any right or option to extend or renew the Lease or to lease any other space or Leased Premises in the Building or Project shall be void and of no effect.
B. Subject to the terms hereof, Landlord shall also be entitled to recover all damages, including lost business profits and loss opportunity regarding any prospective tenant(s) for the Leased Premises, suffered by Landlord as a result of Tenant’s Holdover Occupancy provided that the Landlord has given Tenant notice of entry in to a new lease for all or a portion of the Leased Premises. Tenant acknowledges and agrees that Landlord may undertake a renovation or redevelopment of the Leased Premises or Building and/or lease the Leased Premises (in whole or in part) to another tenant immediately after the Termination Date and that any breach or other violation of the provisions of this Section 3.03 may result in material damages to Landlord (including without limitation, any damages to Landlord in connection with renovation or redevelopment activities or its reletting of the Leased Premises or any part thereof). Further, Tenant agrees to indemnify, hold harmless and defend Landlord for, from and against any and all claims, causes of action, suits, proceedings, demands, damages, losses (including, without limitation, lost rentals and lost business opportunities), liabilities, expenses and costs (including, without limitation, reasonable experts’, consultants’, attorneys’ and court fees and costs) suffered or incurred by Landlord as a result of Tenant’s Holdover Occupancy except in the instance of Landlord’s negligence or willful misconduct related to the matter in dispute. For the sake of clarity, nothing in this Subsection B shall limit Tenant’s obligation to pay any Holdover Minimum Rent during any Holdover Occupancy or constitute Landlord’s consent to any Holdover Occupancy. The preceding indemnification and hold harmless shall survive the Termination Date and any Holdover Occupancy to the extent applicable.
ARTICLE IV
USE AND OPERATION OF THE LEASED PREMISES
Section 4.01. Use.
A. Tenant shall use the Leased Premises solely for general office, administration, training, research and development, sales and marketing, visitor presentations and meetings, and reasonably ancillary and lawful uses consistent with all recorded matters and in conformity with municipal zoning requirements of the City of San Jose, California; other applicable statues, laws, rules, orders, regulations and ordinates (collectively, “Laws”); and the Operating Standard (as defined in Exhibit F) (the “Permitted Use”), and for no other purpose. Tenant shall comply with all Laws affecting the Leased Premises or relating to the use, occupancy or alteration thereof and all the orders or reasonable recommendations of any insurance underwriters, and safety engineers as may from time to time be consulted by Landlord. Without limiting the terms and conditions of Section 6.03.B, below, in addition, if Landlord makes any alteration to any part of the Building or Project as a result of any damage or alteration to the Leased Premises caused or made after the Term Commencement Date by or on behalf of Tenant or in order to comply with any requirement of any Laws applicable to Tenant’s particular use of the Leased Premises (and not office use of the Leased Premises, generally), then Tenant shall reimburse Landlord within thirty (30) days after demand (which demand will include a reasonable substantiation of the cost of the relevant improvements and the reason such improvements are necessary), for the actual out of pocket cost thereof. Tenant acknowledges and agrees that Tenant is solely responsible for determining if its business complies with the applicable zoning regulations, and that Landlord makes no representation (explicit or implied) concerning such zoning regulations.
B. Tenant shall, at its sole expense: (i) keep the portions of the Leased Premises that Tenant is obligated to maintain under this Lease in a good order and condition consistent with
the operation of a Class A institutional quality office building that is part of a mixed use project (the “Operating Standard”); (ii) pay before delinquency any and all taxes, assessments and public charges levied, assessed or imposed upon Tenant’s business, upon the leasehold estate created by this Lease or upon Tenant’s fixtures, furnishings or equipment in the Leased Premises; (iii) not use or permit or suffer the use of any portion of the Leased Premises for any unlawful purpose; (iv) not use the plumbing facilities for any purpose other than that for which they were constructed, or dispose of any foreign substances therein; (v) not place a load on any floor exceeding the floor load per square foot which such floor was designed to carry in accordance with the plans and specifications of the Building, and not install, operate or maintain in the Leased Premises any heavy item of equipment except in such manner as to achieve a proper distribution of weight; (vi) not strip, overload, damage or deface the Leased Premises, or the hallways, stairways, elevators of the Building, the Tower Parking Garage, the Common Parking Garage, the Common Areas or the fixtures therein or used therewith, nor permit any hole to be made in any of the same; (vii) not move any furniture or equipment into or out of the Leased Premises except at such reasonable times and in such reasonable manner as Landlord may from time to time reasonably designate; (viii) not install or operate in the Leased Premises any electrical heating, air conditioning or refrigeration equipment, or other equipment not shown on approved plans which will increase the amount of electricity required for use of the Leased Premises as general office space (other than ordinary office equipment such as personal computers, printers, copiers and the like), without first obtaining the written consent of Landlord, which will not be unreasonably withheld or delayed; and (ix) not install any other equipment of any kind or nature which will or may necessitate any changes, replacements or additions to, or in the use of, the water, heating, plumbing, air conditioning or electrical systems of the Leased Premises or the Building, without first obtaining the written consent of Landlord, which will not be unreasonably withheld or delayed.
C. In addition to and not in limitation of the other restrictions on use of the Leased Premises set forth in this Section 4.02, Tenant hereby agrees that the following uses of the Leased Premises shall not be considered permitted: (1) any use of the Leased Premises by an organization or Person enjoying sovereign or diplomatic immunity (the foregoing will not be deemed to prohibit invitees who are representatives or officials of any U.S., state or foreign government); (2) any use of the Leased Premises by or for an employment agency or bureau (other than Tenant’s normal recruitment activities); (3) any use of the Leased Premises for classroom purposes; (4) any use of the Leased Premises by or for any user which distributes governmental or other payments, benefits or information to Persons who are required to personally appear at the Leased Premises to collect such benefits; (5) any laboratory use that requires the handling of Hazardous Substances (as defined below); (6) any medical use involving the treatment of patients or handling of medical waste and/or Hazardous Substances in the Building, other than employee first aid; (7) retail sales of merchandise to members of the public; (8) any use that interferes with, injures or unreasonably annoys other occupants of the Project; (9) any use that constitutes a nuisance; (10) any use that involves the presence, use, release or discharge of Hazardous Substances; provided, however, that Tenant may handle, store, use and dispose of products containing small quantities of Hazardous Substances for general office purposes (such as toner for copiers and standard cleaning solvents and chemicals found in office cleaning supplies and reasonable quantities of other substances that Tenant may store as required to fulfill Tenant’s maintenance obligations under this Lease), to the extent customary and necessary for the Permitted Use of the Leased Premises, so long as Tenant always handles, stores, uses, and disposes of any such Hazardous Substances in a safe and lawful manner and does not allow such Hazardous Substances to contaminate the Leased Premises, Building, or Project or surrounding land or environment; (11) any use that could reasonably be expected to have a material adverse effect on the utility, use, appearance or value of the Building, the Project, or any portion thereof; and (12) any other use of the Leased Premises by any user that is not otherwise permitted in this Lease and will attract a volume, frequency or type of visitor to the Leased Premises which is not consistent with the Operating Standard, or that will in any way impose an excessive demand or use on the facilities or services of the Leased Premises or the Building.
Section 4.02. Signs and Advertising.
Tenant shall not inscribe, paint, affix, or otherwise display any sign, advertisement or notice on any part of the outside of the Leased Premises, other than signs permitted hereunder;
provided, however, that Tenant shall be entitled to standard suite entry signage at the entrance to the Leased Premises, and a name plate designating Tenant on the main directory for the Building on the first floor of the Building and on the glass/window line in the lobby entrance in a location to be determined by Landlord after consultation with Tenant, and monument signage for the Building or Project, all to be affixed by Landlord at Tenant’s sole cost and expense. Prior to the Term Commencement Date, Landlord shall advise Tenant of exterior Building signage available to Tenant, the location and the cost associated with the same. Upon Tenant’s election Landlord shall install such exterior Building signage within sixty (60) days of receipt of Tenant’s signage election notice. All such signs shall be reasonably acceptable to Landlord, comply with Landlord’s office sign criteria attached hereto as Exhibit H (the “Office Building Sign Criteria”) and all other matters contained in the public records, including any applicable Laws. The material, typeface, graphic format and proportions of Tenant’s signage, as well as the precise location of such signage and method of installation, shall be subject to Landlord’s approval, which shall not be unreasonably withheld or delayed. Nothing contained herein shall obviate the need for Tenant to obtain any necessary approvals and permits for such signage from the City of San Jose (the “City”), which permits and approvals Tenant shall obtain at Tenant’s sole cost. The failure of Tenant to obtain such approvals shall not release Tenant from any of its obligations under this Lease. Tenant, at its sole expense, shall maintain Tenant’s signs in accordance with the Operating Standard during the Term. Tenant, at its sole cost and expense, shall remove all such signs by the Termination Date or any earlier termination of this Lease. Such installations and removals shall be made in such manner as to avoid injury to or defacement of the Building and any improvements contained therein and the monument, and Tenant shall reasonably repair any injury or defacement including, without limitation, discoloration caused by such installation or removal to an appearance consistent with the Operating Standard. At such time that Tenant, a Permitted Transferee or another Transferee by assignment or sublease approved by Landlord no longer leases and occupies the Leased Premises, Tenant’s right to maintain the foregoing signage shall terminate within thirty (30) days after Landlord provides Notice of the failure of the foregoing condition. If any of Tenant’s signs, advertisements or notices are painted, affixed, or otherwise displayed without the prior written approval of Landlord and not in compliance with the foregoing, then, without limiting Landlord’s other rights hereunder, Landlord shall have the right after ten (10) Business Days prior Notice to Tenant, to remove the same, and Tenant shall be liable for any and all costs and expenses incurred by Landlord in such removal.
ARTICLE V
RENT
Section 5.01. Rent Payable.
A. Commencing on the Rent Commencement Date, Tenant shall pay all Rent owing from time to time to Landlord, without prior Notice or demand and without offset, deduction or counterclaim whatsoever, in the amounts, at the rates and times set forth herein, in the manner set forth in this Section 5.01.A. Tenant agrees to (i) promptly execute any and all agreements and authorizations, and supply any and all information necessary to Tenant’s bank, to initiate automatic monthly payments of Minimum Rent and the monthly payments of estimated Tenant’s Share of Operating Costs and Taxes (“Standing Order Transfers”) from Tenant’s bank account to Landlord’s bank account for such monthly payments of Minium Rent and monthly payments of Tenant’s Share of Operating Costs due under this Lease; and (ii) take all actions necessary on Tenant’s part to insure that all such payments will be received by the Landlord’s bank account by the first (1st) day of each calendar month. Except for the first month’s Rent and Security Deposit, the monthly payments of Minimum Rent and monthly payments of estimated Tenant’s Share of Operating Costs and Taxes shall be paid by Standing Order Transfer. All payments of Rent not made by Standing Order Transfer shall be made via a company check delivered to the place set forth in Section 1.01.I or as Landlord may otherwise designate by Notice to Tenant at least thirty (30) days prior to the effective date of any change. Landlord shall confirm in writing the Landlord’s bank account details for Tenant’s payments to Landlord with not less than thirty (30) days advance notice in writing from Landlord regarding any change to be made to the same.
B. If Tenant fails to make any payment of Rent by the date such Rent is due, Tenant shall pay Landlord a late payment charge equal to the greater of (i) five percent (5%) of such
payment of Rent, or (ii) Twenty Dollars ($20.00) per day from the due date until the date of receipt by Landlord. Payment of such late charge shall not excuse or waive the late payment of Rent. Tenant acknowledges and agrees that such late charge is a reasonable estimate of the damages Landlord may incur as a result of Tenant’s late payment of Rent, and that it would be impracticable or extremely difficult to determine Landlord’s actual damages.
C. If Landlord receives within a twelve (12) month period two (2) or more checks from Tenant that are dishonored by Tenant’s bank, all checks for Rent thereafter shall be bank certified and Landlord shall not be required to accept checks except in such form. Tenant shall pay Landlord any bank service charges resulting from dishonored checks, plus Five Hundred Dollars ($500.00) for each dishonored check as compensation to Landlord for the additional cost of processing such check.
D. Any payment by Tenant of less than the total Rent due shall be treated as a payment on account. Acceptance of any check bearing an endorsement, or accompanied by a letter stating, that such amount constitutes “payment in full” (or terms of similar import) shall not be an accord and satisfaction or a novation, and such statement shall be given no effect. Landlord may accept any check without prejudice to any rights or remedies which Landlord may have against Tenant.
E. For any portion of a calendar month at the beginning of the Term, Tenant shall pay in advance the pro-rated amount of the Rent for each day included in such portion of the month.
Section 5.02. Payment of Minimum Rent.
Tenant shall pay Landlord the Minimum Rent set forth in Section 1.01.G, above, in equal monthly installments, in advance, commencing on the Rent Commencement Date, subject only to the express abatement rights provided in this Lease (including, without limitation, Section 1.01.G, above), and on the first day of each calendar month thereafter throughout the Term. An amount equal to the Prepaid Minimum Rent shall be paid in advance in accordance with Section 1.01.N, above, and credited toward the first payment of Minimum Rent due hereunder.
ARTICLE VI
COMMON AREAS
Section 6.01. Use of Common Areas.
During the Term, Tenant shall have a non-exclusive license to use the Common Areas for ingress to and egress from the Leased Premises, and the non-exclusive right to use any portion of the Common Areas designated for parking, including, without limitation, the Tower Parking Garage and the Common Parking Garage, subject to (i) the exclusive control and management of Landlord and the rights of Landlord, and (ii) to the extent of any such Common Areas are shared with other tenants, the rights of other tenants. Tenant shall comply with the Rules attached hereto as Exhibit C and such other reasonable non-discriminatory rules and regulations as Landlord may prescribe regarding use of the Leased Premises, the Building, Tower Parking Garage, Common Parking Garage, and/or Common Areas; provided, however, that such rules and regulations shall be consistent with the Operating Standard. Tenant shall not use the Common Areas for any sales or display purposes, or for any purpose which would impede or create hazardous conditions for the flow of pedestrian or other traffic. The Common Areas shall at all times be subject to the exclusive control and management of Landlord.
Section 6.02. Management and Operation of Common Areas.
Landlord shall operate, repair, equip and maintain the Common Areas in a manner consistent with the Operating Standard and shall have the exclusive right and authority to employ and discharge personnel with respect thereto (provided Landlord will endeavor to respond, subject to Landlord’s customary employment practices and applicable employment Laws, to any reasonable complaints of Tenant regarding the behavior of specific personnel who interact with Tenant or its employees or invitees). Without limiting the foregoing, so long as such use is consistent with the Operating Standard, Landlord may (i) use the Common Areas from time to time for short term promotions, exhibits and displays, outdoor seating, food facilities and any other use which benefits the Project, or any part thereof that are consistent with the Operating
Standard; (ii) grant the temporary right to conduct sales in the Common Areas; (iii) erect, remove and lease kiosks, planters, pools, sculptures and other improvements within the Common Areas; (iv) enter into, modify and terminate easements and other agreements pertaining to the use and maintenance of the Project, or any part thereof that do not materially and adversely affect access to the Leased Premises pursuant to the entrances to the Building or the use of the Leased Premises for the Permitted Use or Tenant’s parking rights, or the visibility of Tenant’s Exterior Signs; (v) construct, maintain, operate, replace and remove lighting, equipment, and signs on all or any part of the Common Areas; (vi) provide security personnel for the Tower Parking Garage, Common Parking Garage, and/or other Common Areas; and (vii) subject to Tenant’s express parking rights hereunder, restrict parking in the Tower Parking Garage and Common Parking Garage. Subject to Tenant’s express parking rights in Section 13.01 hereof, Landlord reserves the right at any time and from time to time to change or alter the location, layout, nature or arrangement of the Common Areas or any portion thereof, so long as such changes do not unreasonably interfere with access to the Leased Premises via the entrances to the Building or the use of the Leased Premises for the Permitted Use. Landlord shall have the right to close temporarily all or any portion of the Common Areas to such extent as may, in the reasonable opinion of Landlord, be necessary for repairs, replacements or maintenance to the Common Areas, provided such repairs, replacements or maintenance are performed expeditiously and in such a manner so as not to deprive Tenant of access to the Leased Premises or Tenant’s parking rights in the parking facilities (provided that such parking access will be deemed satisfied if Landlord provides reasonable alternative parking facilities during such time) and Landlord otherwise uses reasonable efforts to minimize any interference with access to the Leased Premises via the entrances to the Building, or use of the Leased Premises for the Permitted Use, or efforts to minimize any interference with access and availability to the Common Area parking facilities and are made in good faith and not with the intent to interfere with the visibility of Tenant’s signs. Any diminution or shutting off of light, air or view by any structure which may be erected on lands adjacent to or in the vicinity of the Building shall in no way affect this Lease or impose any liability on Landlord.
Section 6.03. Tenant’s Share of Operating Costs and Taxes.
A. For each Operating Year, Tenant shall pay to Landlord, in the manner provided herein, Tenant’s share of Operating Costs and Taxes (“Tenant’s Share of Operating Costs and Taxes”). The applicable percentage to be applied to each element of Operating Costs and Taxes will be determined in accordance with Sections 1.02(N) and (O) provided, however, that for the Operating Years during which the Term begins and ends, Tenant’s Share of Operating Costs and Taxes shall be prorated based upon the actual number of days Tenant occupied, or could have occupied based on the Term of this Lease, the Leased Premises during each such Operating Year.
B. Tenant’s Share of Operating Costs and Taxes shall be paid, in advance, without Notice, demand, abatement (except as otherwise specifically provided in this Lease), deduction or set-off, on the first day of each calendar month during the Term, said monthly amounts to be determined on the basis of reasonable estimates prepared by Landlord on an annual basis (each an “Operating Costs Statement”) and delivered to Tenant prior to the commencement of each Operating Year. If, however, Landlord fails to furnish any such estimate prior to the commencement of an Operating Year, then (a) until the first day of the month following the month in which such estimate is furnished to Tenant, Tenant shall pay to Landlord on the first day of each month an amount equal to the monthly sum payable by Tenant to Landlord under this Section 6.03 in respect of the last month of the preceding Operating Year; (b) promptly after such estimate is furnished to Tenant, Landlord shall give Notice to Tenant whether the installments of Tenant’s Share of Operating Costs and Taxes paid by Tenant for the current Operating Year have resulted in a deficiency or overpayment compared to payments which would have been paid under such estimate, and Tenant, within thirty (30) days after receipt of such estimate, shall pay any deficiency to Landlord and any overpayment shall at the option of Tenant be credited against future payments required by Tenant, or paid to Tenant within thirty (30) days; and (c) on the first day of the month following the month in which such estimate is furnished to Tenant and monthly thereafter throughout the remainder of the Operating Year, Tenant shall pay to Landlord the monthly payment shown on such estimate. Landlord may one (1) time during the Operating Year where reasonably necessary furnish to Tenant a revised estimate of Tenant’s Share of Operating Costs and Taxes for such Operating Year, and in such case, Tenant’s monthly payments shall be adjusted and paid or credited, as the case may be,
substantially in the same manner as provided in the preceding sentence. Each Operating Costs Statement provided by Landlord shall be conclusive and binding upon Tenant unless, within one hundred twenty (120) days after receipt thereof, Tenant notifies Landlord that it disputes the correctness thereof, specifying those respects in which Tenant claims the Operating Costs Statement to be incorrect. After the expiration of each Operating Year, Landlord shall submit to Tenant a statement showing the determination of Tenant’s Share of Operating Costs and Taxes (the “Reconciliation Statement”). If such statement shows that the total of Tenant’s monthly payments pursuant to this Section 6.03 exceed Tenant’s Share of Operating Costs and Taxes, then Landlord will credit such refund to the next payment(s) coming due or, at the election of Tenant, refund such monies to Tenant; provided, however, that no such refund shall be made while Tenant is in Default of any provision of this Lease and such Default shall continue. If such Reconciliation Statement shows that Tenant’s Share of Operating Costs and Taxes exceeded the aggregate of Tenant’s monthly payments pursuant to this Section 6.03 for the applicable Operating Year, then Tenant shall, within thirty (30) days after receiving the statement, pay such deficiency to Landlord. Each Reconciliation Statement provided by Landlord shall be conclusive and binding upon Tenant unless within six (6) months after receipt thereof, Tenant notifies Landlord that it disputes the correctness thereof. Tenant or its agent (which, in either event, shall be an accountant experienced in conducting such audits that is not paid on a contingency basis) shall have the right, during the six (6) month period following delivery of a Reconciliation Statement, at Tenant’s sole cost to review, in Landlord’s offices or in the offices of Landlord’s property manager in the Project, Landlord’s records of Operating Costs and Taxes for the subject Operating Year during normal business hours and upon at least ten (10) Business Days prior Notice to Landlord (“Audit”). No Audit shall in any way delay or excuse Tenant’s obligation to pay any deficiency referenced in the Reconciliation Statement within the time period stated above. If Tenant does not complete its Audit and object in writing to the Reconciliation Statement within the six (6) month period of its receipt of such Reconciliation Statement, then such Reconciliation Statement shall be deemed final and binding on Landlord and Tenant. Tenant and its agents shall keep any information and copies of documents gained from its Audit of Landlord’s books and records confidential and shall not disclose any such information to any other party, except (x) as required by applicable Laws, including securities Laws, or to Tenant’s lawyers and accountants (y) in any litigation or dispute resolution process to resolve any disputed amounts with Landlord (provided such disclosure shall be limited to matters relating to such dispute), or (z) as otherwise required by law in response to a court order or legal process; provided, however, that in the event disclosure is required under this clause (z), Tenant shall provide Landlord with prompt notice of any such disclosure requirement so that Landlord may seek an appropriate protective order and/or waive Landlord’s compliance with such requirement. Subject to the foregoing, Landlord may require that Tenant and/or its auditor execute a commercially reasonable non-disclosure agreement prior to making any records available for review. Only one (1) Audit may be performed with respect to each Operating Year. Tenant shall promptly provide Landlord with a full and complete copy of any Audit. If such Audit discloses a liability for a refund by Landlord and if Landlord agrees with the analysis provided in Tenant’s Audit, then Landlord shall remit such refund to Tenant within thirty (30) days; provided, however, that Landlord shall have the right, without the obligation, to elect within ten (10) Business Days to apply all or any portion of such refund to remedy any monetary Default by Tenant occurring hereunder. If such Audit discloses a liability for a payment by Tenant, then Tenant shall remit such payment to Landlord within thirty (30) days. Further, if such Audit establishes (either by agreement with Landlord or determination by the Audit Professionals (as defined below)) that the Reconciliation Statement overstated the total amount owed by Tenant by more than four percent (4%), then Landlord shall be responsible for the reasonable, out-of-pocket expenses paid by Tenant to third parties in connection with such Audit up to Seven Thousand Five Hundred Dollars ($7,500) per Audit. Except as provided in the preceding sentence, Tenant shall be responsible for all costs and expenses associated with such Audit. Notwithstanding the foregoing, in the event Landlord disputes the findings of an Audit and the parties are unable to resolve such dispute within thirty (30) days, then Landlord and Tenant agree to submit any disputed items to a firm of real estate audit professionals mutually acceptable to Landlord and Tenant (“Audit Professionals”) for resolution (as provided below) and any payment or refund shall not become effective until ten (10) Business Days after the determination of the Audit Professionals. If Landlord and Tenant cannot agree on Audit Professionals within fifteen (15) days of the expiration of such thirty (30) day period, then Landlord and Tenant shall each, within ten (10) days of the expiration of such fifteen (15) day period, select one (1) independent firm of
Audit Professionals, and such two (2) Audit Professionals shall together select a third Audit Professional, which third firm shall be the Audit Professional who shall resolve the dispute. The third Audit Professional shall be entitled to review all records relating to the disputed items. The determination of the third Audit Professional shall be final and binding upon both Landlord and Tenant and the third Audit Professional’s expenses shall be borne by the party against whom the decision is rendered. Notwithstanding any contrary provision hereof, Tenant may not examine Landlord’s records or dispute any Annual Statement if there is an uncured Default that is continuing. No assignee of Tenant’s interest in this Lease or the Leased Premises shall have the right to review Landlord’s records or dispute any Reconciliation Statement for any period during which such transferee was not in possession of the Leased Premises, and no sublessee of Tenant shall have the right to review Landlord’s records or dispute any Reconciliation Statement. Landlord shall not seek to avoid an Audit by bad faith delivery of a notice of default and demand for cure.
C. “Operating Costs” means all expenses and costs which Landlord shall pay or become obligated to pay because of or in connection with owning, operating, managing, painting, repairing, insuring and cleaning the Building, the Parking Garage and Project, including without limitation:
(i) a property management fee equal to three percent (3%) of annual Minimum Rent (it being agreed that during the Abatement Period, such property management fee shall be based on the Minimum Rent shown on the Minimum Rent schedule set forth in Section 1.01, above, without considering the abatement of Minimum Rent during such period);
(ii) the cost of all insurance coverage, including self-insurance, for the Building, the Common Areas and the Parking Garage including but not limited to the costs of premiums for insurance with respect to personal injury, bodily injury, including death, property damage (including, without limitation, coverage for earthquake and flood), business interruption, workmen’s compensation insurance covering personnel and such other insurance as Landlord shall deem reasonably necessary and is permitted to maintain under this Lease, which insurance Landlord may maintain under policies covering other properties owned by Landlord in which event the premium shall be reasonably allocated among all properties covered by such insurance (collectively, the “Insurance Costs”);
(iii) the cost of providing the services described in Sections 7.01 below, except as otherwise expressly provided therein, or unless the service is directly metered and paid to the relevant utility;
(iv) cost of all supplies and materials used, and labor charges incurred, in the operation, maintenance, decoration, repairing and cleaning of the Building, including janitorial service for all Floor Area leased to tenants;
(v) cost of removal of trash, rubbish, garbage and other refuse from the Building as well as removal of ice and snow from the sidewalks on or adjacent to the Building;
(vi) wages, salaries and related expenses of all on-site agents or employees engaged in the operation, maintenance, security and management of the Building; provided, however, the wages, salaries and related expenses of any agents or employees not exclusively engaged in the operation, maintenance, security and management of the Building shall be reasonably apportioned;
(vii) cost of all maintenance and service agreements for the Building and the equipment therein, including, without limitation, alarm service, security service, window cleaning, and elevator maintenance;
(viii) any and all Common Area maintenance, repair or redecoration (including repainting) and exterior and interior landscaping;
(ix) the cost of providing security services to the Project, including, without limitation, a lobby attendant pursuant to Section 7.01.F below;
(x) the cost of performing Landlord’s obligations under Section 10.01 below, subject to the exclusions set forth herein, including cost of repairs, replacements and general maintenance to the Building;
(xi) except as otherwise expressly provided herein, all costs of operating any amenities provided to the tenants and occupants of the Building;
(xii) any other cost set forth in this Lease that is expressly states to be included in Operating Costs;
(xiii) Commissioning and certification costs incurred in connection with obtaining and maintaining any LEED or similar certifications for the Project; and
(xiv) any other costs incurred by Landlord in connection with the ownership, management, maintenance, repair and operation of the Leased Premises, Building, Parking Garage and Common Areas except as otherwise expressly provided in this Lease.
Landlord shall have the right, from time to time, to equitably allocate any Operating Costs applicable to the Project among different portions or occupants of the Project (the “Cost Pools”); provided, however, in no event shall the use of such Cost Pools result in a duplication of Operating Costs and all such allocations will be made in accordance with sound property management practices and general in accord with the practices of similar landlords of similar projects. Such Cost Pools shall be reasonable such that there is no material cross-subsidy or underpayment of Operating Cost contribution by any user in relation to the services consumed by any such user. The Operating Costs allocated to any such Cost Pool shall be allocated and charged to the tenants and occupants within such Cost Pool in otherwise in an equitable manner, in Landlord’s reasonable discretion.
If for any period during the Term less than ninety-five percent (95%) of the Floor Area of the Building is occupied by tenants, then, in calculating Operating Costs that vary based upon occupancy for such period, Landlord may increase those components of Operating Costs that vary based upon occupancy that Landlord reasonably believes would have been incurred during such period had the Building been ninety-five percent (95%) occupied. In addition, if for any period during the Term any part of the Building is leased to a tenant who, in accordance with the terms of its lease, provides its own cleaning services, electricity, and/or any other services otherwise included in Operating Costs, then Operating Costs for such period shall be increased by the additional costs for cleaning, electricity, and/or such other applicable expenses that Landlord reasonably estimates would have been incurred by Landlord if Landlord had furnished and paid for cleaning and/or such other services for the space occupied by such tenant.
Notwithstanding the foregoing, Operating Costs will in no event include the following: (1) costs paid directly by Tenant; (2) depreciation on the Building; (3) debt service and any mortgage or other loan payments of the Landlord; (4) rental under any ground or underlying lease including, without limitation, the Ground Lease; (5) interest unless expressly recoverable under this Lease, (6) attorneys’ fees and expenses or other costs, including brokers’ commissions incurred in connection with lease negotiations or lease disputes with prospective, current or past Building tenants, including the negotiation of letters of intent or leases; (7) the cost of any improvements, equipment or tools that would be properly classified as capital expenditures under generally accepted accounting principles except that the following capital costs may be included in Operating Costs: (i) costs which are intended to effect economies in the operation or maintenance of the Project, or any portion thereof, or to reduce current or future Operating Costs or to enhance the safety or security of the Project or its occupants, (ii) costs are required to comply with present or anticipated LEED, “green” “recycling” or other conservation programs, (iii) costs that are replacements or modifications of nonstructural items located in the Common Areas required to keep the Common Areas in good order or condition, (iv) costs that are required by Law or insurance requirement, or (v) costs to replace items which Landlord is obligated to maintain under this Lease; provided, however, in each instance such capital expenditure shall be amortized over the useful life thereof (as reasonably determined by Landlord to be in accordance with generally accepted industry standards for operation of Class A office buildings), together with interest on the unamortized balance at a rate per annum equal to the actual rate of interest paid by Landlord on funds borrowed for the purpose of
constructing or acquiring such capital improvements or capital assets as reasonably documented by Landlord (and if Landlord does not borrow funds for such construction or acquisition, then interest at the rate of one percent (1%) above the prime rate of Wells Fargo Bank, N.A. or such successor national bank selected by Landlord then in force (the “Imputed Interest Rate”); provided, further, however, that with respect to capital expenditures referenced in subclause (i), above, Landlord may include as an Operating Cost in any calendar year an amount equal to Landlord’s estimate of the amount of reduction of other Operating Costs in such year resulting from such capital expenditure if such amount is greater than the amortization provided above); (8) the cost of decorating, improving for tenant occupancy, painting or redecorating portions of the Building to be demised to tenants; (9) costs of utilities for any tenant’s leased premises if separately metered, (10) costs incurred in connection with the original construction of the Building or Project or in connection with any major change in the Building that is not made at the request of Tenant, or any change to the Building or Project that is required to correct any violation of law not caused by Tenant existing on the Rent Commencement Date, or a breach by Landlord of the Lease; (11) costs for which Landlord is fully reimbursed by any tenant or occupant of the Building or by insurance by its insurance carrier or any tenant’s insurance carrier or by anyone else; (12) any bad debt loss, rent loss, or reserves for bad debts or rent loss; (13) costs associated with the operation of the business of the partnership or limited liability company or other entity that may from time to time constitute Landlord, as the same are distinguished from the costs of operation of the Building or Project, including accounting and legal matters, costs of defending any lawsuits with any Mortgagee (as defined in Section 14.01, below) (except as the actions of Tenant may be the issue), costs of selling, syndicating, financing, mortgaging or hypothecating any of Landlord’s interest in the Building or Project (including, without limitation, attorneys’ fees and costs), costs (including, without limitation, attorneys’ fees and costs of settlement, judgments and payments in lieu thereof) arising from claims, disputes or potential disputes in connection with potential or actual claims, litigation or arbitrations respecting Landlord and/or the Building or Project; (14) the wages and benefits of any employee who does not devote substantially all of his or her time to the Building or Project, unless such wages and benefits are prorated to reflect time spent by any such employee on maintaining, securing, repairing, operating or managing the Building or Project vis-a-vis the total time spent by any such employee on matters unrelated to such activities, and in any case no wages or benefits of any employee of Landlord above Building manager will be included in Operating Costs; (15) costs paid to Landlord or to affiliates of Landlord for services in the Building or Project to the extent the same materially exceed or would materially exceed the costs for such services if rendered by first class unaffiliated third parties on a competitive basis; (16) costs arising from Landlord’s political or charitable contributions; (17) costs for sculpture, paintings or other objects of art; (18) Landlord’s general corporate overhead; (19) costs of removal or remediation of Hazardous Substances (except to the extent or treatment, removal or disposal of de minimis amounts of Hazardous Substances common in the operation of an office building project, such as automotive fluid deposits occurring in parking facilities, removal and disposal of clean products, cleansers, office supplies and the like); (20) the cost of rental for items (except when needed in connection with normal repairs and maintenance or keeping permanent systems in operation while repairs are being made) which if purchased, rather than rented, would constitute a capital improvement or expense except to the extent permitted above; (21) expenses directly resulting from defaults by or the gross negligence or willful misconduct of Landlord, its agents, servants or employees; (22) penalties, fines and late charges resulting from Landlord’s failure to make payments when required under applicable law, unless resulting from the failure of Tenant to pay Rental as and when required herein; (23) costs arising from latent defects in any portion of the Premises Base Building Specifications and Tenant Work described in Exhibit B for a period of one (1) year after Substantial Completion; (24) cost, fees and expenses related to any development of the Project and installation of a new building or improvements as generally shown as the location for a future development of a building on Exhibit A-1 Site Plan attached to this Lease; and (25) self-insured retention and deductibles in cumulative amount in excess of Two Hundred Thousand Dollars ($200,000) in any calendar year.
D. “Taxes” means all governmental or quasi-governmental real estate taxes, fees, charges, impositions and assessments (whether general, special, ordinary, or extraordinary) applicable to the Building and/or Project (including without limitation any assessments or charges by any business improvement district), together with all reasonable costs and fees
(including reasonable appraiser, consultant and attorney’s fees) incurred by Landlord in any tax contest, appeal or negotiation. “Taxes” shall also include that portion of any ground rent payments made by Landlord that represent the pass-through of real estate taxes from any ground lessor to Landlord and all rent or services taxes and/or so-called “gross receipts” or “receipts” taxes (including, but not limited to, any rent, business license, sales, use or similar taxes) whether or not enacted in addition to, in lieu of or in substitution for any other tax. “Taxes” shall also include any personal property taxes incurred on Landlord’s personal property used in connection with the Building. “Taxes” shall not include personal income taxes, personal property taxes, inheritance taxes, or franchise taxes levied against the Landlord, and not directly against said property, even though such taxes might become a lien against said property. If Landlord receives a refund of Taxes for any Lease Year during the Term as result of a reassessment of the Building pursuant to Section 51(a)(2) of the California Revenue and Taxation Code (“Proposition 8”), then Landlord shall credit against subsequent payments of Taxes due hereunder, an amount equal to Tenant’s Proportionate Share of Taxes of any such refund, net of any reasonable out of pocket expenses incurred by Landlord in achieving such refund. Nothing contained herein shall require Landlord to seek any reduction in the Building’s assessed value pursuant to Proposition 8 or otherwise. Taxes also shall not include real estate taxes attributable to construction of a new building at the Project that increases the real estate tax assessment for the Project during the Term.
ARTICLE VII
SERVICES AND UTILITIES
Section 7.01. Services Provided by Landlord.
So long as Tenant is not in Default under this Lease, Landlord shall provide the following facilities and services to Tenant as part of Operating Costs (except as otherwise provided herein), consistent with the Operating Standard:
A. Access to the Building, Tower Parking Garage, and Common Parking Garage, (subject to the rights of other users of the Parking Garage after the Parking Hours) twenty-four (24) hours per day, seven (7) days per week subject only to closures for casualty or public disturbance;
B. Normal and usual janitorial services on Business Days (provided, however, that if Tenant may elect, by delivery of not less than thirty (30) days written notice, to take over the obligation to provide such janitorial services within the Leased Premises, at Tenant’s sole cost and expense by a service provider reasonably acceptable to Landlord, in which event, upon such takeover by Tenant, Landlord shall no longer be required to provide such services within the Leased Premises and such charges for janitorial services within the Leased Premises and incurred by Tenant shall be deducted from Operating Costs which Tenant is required to pay at its sole cost and expense);
C. Rest room facilities and necessary lavatory supplies, including running water at the points of supply, as provided for the general use of all tenants in the Building, and routine maintenance, painting, and electric lighting service for all Common Areas of the Building in such manner as Landlord deems reasonable and necessary in order to meet the Operating Standard;
D. Maintenance of electric bulbs and other lighting elements for Building standard light fixtures in the Common Areas and Parking Garage;
E. Provision of a lobby attendant on Business Days from 6:00 AM through 6:00 PM local time;
F. During Building Hours, central heating and air conditioning to the Operating Standard. Capacity of Building HVAC system will be sized in accordance with cooling and heating load calculation procedures established by ASHRAE and local climatic conditions, and the HVAC system will comply with state and local building codes. Systems for the introduction of outside air for ventilation shall be designed, maintained and operated to meet or exceed the requirements of ASHRAE Standard 62.1-2007, unless local requirements are more demanding.
At a minimum, the system shall provide 1 ton of cooling for every 340 USF and 1.0 CFM per 1 RSF of air circulation capacity, based on a 55°F supply air temperature;
G. Tenant acknowledges, agrees and covenenats that all Tenant lighting within the Leased Premises is required to comply with the prescriptive requirements defined in Table 140.6-C of the 2019 California Energy Code (Title 24 Part 6). Landlord shall ensure that all lighting within the Leased Premsies as of the Term Commencement Date complies with such Title 24 Part 6 standard. Subject to the availability of electricity from Pacific Gas & Electric (or other applicable electrical utilities provider), Landlord shall provide electricity for normal office purposes during normal business hours, including task and task ambient lighting systems, normal office equipment, including, but not limited to, copy machines, computers, terminals, communications and audiovisual equipment, vending machines, and kitchen equipment. Landlord shall furnish to Tenant wattage and electricity up to an amount necessary to operate its business and all equipment of not less than 6.5 watts per usable square foot; and
H. Provision of security services to the Building, Common Areas, Tower Parking Garage, and Common Parking Garage in a manner consistent with those employed by owners of Comparison Buildings (as defined in Exhibit F below), including a manned security desk weekdays from 6am–6pm and 24-hour-per-day periodic patrol and CCTV observation service. Landlord will provide Tenant’s employees RF programmable key fobs that will be used to access Building and Building elevators, which Fobs can be programmed to restrict access to different floors based on Tenant’s direction.
Section 7.02. Landlord’s Access to Leased Premises.
Landlord shall have access to and reserves the right to inspect, erect, use, connect to, maintain and repair pipes, ducts, conduits, cables, plumbing, vents and wires, and other facilities in, to and through the Leased Premises as and to the extent that Landlord may now or hereafter deem to be reasonably necessary or appropriate for the proper operation and maintenance of the Building or the Parking Garage and the right at all times to transmit water, heat, air conditioning and electric current through such pipes, conduits, cables, plumbing, vents and wires and the right to interrupt the same in the event of an Emergency (as defined below) without eviction of Tenant or abatement of Rent. Any failure by Landlord to furnish the services described in Section 7.01 (or any other services as may be required of Landlord under this Lease) resulting from circumstances beyond Landlord’s reasonable control or from interruption of such services due to repairs or maintenance, shall not render Landlord liable in any respect for damages to either Person or property, nor be construed as an eviction of Tenant, nor cause an abatement of Rent hereunder, nor relieve Tenant from any of its obligations hereunder, unless expressly provided to the contrary in this Lease. If any public utility or governmental body shall require Landlord or Tenant to restrict the consumption of any utility or reduce any service for the Leased Premises or the Building, Landlord and Tenant shall comply with such requirements without any liability on the part of Landlord to Tenant or any other Person or any reduction or adjustment in Rent payable hereunder. Landlord and its agents shall be permitted reasonable access to the Leased Premises for the purpose of installing and servicing systems within the Leased Premises deemed reasonably necessary by Landlord to perform Landlord’s obligations under this Lease, provided that, except in the event of an Emergency, Landlord shall provide Tenant not less than twenty-four (24) hours prior notice of work to be performed in the Leased Premises, no such work shall unreasonably interfere with the use of the Leased Premises for the Permitted Use or access to the Leased Premises via the entrances to the Building, or unreasonably disturb the Tenant’s employees during regular office hours of the Building, and Tenant may reasonably condition the entry by the Landlord and its agents and contractors on compliance with Tenant’s reasonable visitor sign in policy and Tenant may have a representative accompany Landlord’s representative, agent or contractor at all times if necessary (except that if no such staff are present or available during such time of Landlord’s entry (e.g., janitorial services provided outside of normal business hours) then such visitor sign in and accompaniment requirements shall not apply. For purposes of this Lease, an “Emergency” shall mean an event that poses an imminent risk to the health or safety of persons or property in the Building or the Project.
Section 7.03. Utilities.
A. If applicable, Tenant shall pay, when due, all charges for water, sewer, electricity, telephone service and other utilities supplied to the Leased Premises (“Utility Charges”).
Electric utility charges shall be based upon submeter readings. Tenant shall also pay Landlord Tenant’s proportionate share of Utility Charges for any non-separately metered or sub-metered utilities as reasonably determined by Landlord, calculated by Landlord reasonably consistent with the Operating Standards and practices of other first class institutional landlords for calculation of such charges.
B. Landlord shall install, at Landlord’s expense, a device to measure electricity usage for and in the Leased Premises. Tenant shall pay Landlord electricity charges based upon such readings, plus a reasonable, non-discriminatory service fee for reading such device(s), within thirty (30) days after billing. It is the intent of the parties that Utility Charges shall be separate from and in addition to Tenant’s Share of Operating Costs.
C. Tenant shall cooperate with Landlord’s compliance with all disclosures and information related to energy disclosures required by applicable Laws with respect to the Leased Premises, including, without limitation, those codified and implemented in the California Public Resources Code and California Public Utilities Code, and associated regulations, or under any similar law, statute, regulation or ordinance (collectively the “Energy Benchmarking Laws”). Without limiting the foregoing, pursuant to Section 1682(b)(4)(A)(i) of the California Code of Regulations, Tenant hereby grants permission to any energy provider to provide Tenant’s applicable energy usage data to Landlord. Notwithstanding anything to the contrary contained in this Lease, Tenant acknowledges and agrees that Landlord shall have the right to disclose the foregoing consent to any energy provider(s) as may be necessary for Landlord to comply with the Energy Benchmarking Laws. Tenant further acknowledges that such information may be submitted by Landlord to the California Energy Commission or other public agency or entity, as required by Energy Benchmarking Laws in effect from time to time.
D. The foregoing notwithstanding, in any instance that the failure of Landlord to provide utilities to the Lease Premises due solely and directly to the gross negligence or willful misconduct of the Landlord or its employees or agents and contractors arises and Tenant’s employees cannot use and do not use the Leased Premises for a period of at least three (3) Business Days, then commencing after expiration of such three (3) Business Day period, Tenant shall be entitled to an abatement of one day of Minimum Rent for each day that Tenant cannot (and does not) use the Lease Premises until the day that Landlord restores the utility supply such that Tenant reasonably could use the Premises for the Permitted Use.
Section 7.04. LEED Standard. Tenant acknowledges and agrees that Landlord has obtained a LEED Gold Core & Shell certification (the “LEED Certification”). Notwithstanding anything to the contrary contained herein, Landlord reserves the right to make alterations, additions, improvements, replacements or modifications to the Common Areas and Building systems for the purposes of sustaining and/or maintaining such LEED Certification or any other like designation or rating related to or associated with the conservation of water, energy or any other natural resource, the use of sustainable or renewable energy sources or products, or the energy efficiency of the Building or any portion thereof, so long as such alterations, additions, improvements, replacements or modifications do not have a material, adverse impact upon Tenant’s use of the Common Areas, Building or Leased Premises. Tenant hereby covenants and agrees at no cost to Tenant to cooperate with Landlord and on a reasonably prompt basis, with respect to any reasonable requests by or associated in connection with Landlord’s efforts to sustain and/or maintain a LEED Certification or any other like designation or rating for the Project (or any part thereof), which cooperation may include, but not be limited to, delivering to Landlord responses to any questionnaires or any other forms or providing any other information related to the Leased Premises or its use, which Landlord may request.
Section 7.05 Amenities.
A. During the Term and any extension or renewal thereof, at no cost to Tenant or Tenant’s employees, Tenant and Tenant’s employees shall have the non-exclusive use of the fitness center (the “Santana West Fit Studio”) in the Building, subject to the Landlord’s reasonable non-discriminatory rules and regulations upon which Landlord offers such use rights to other tenants of the Project. Tenant acknowledges that Landlord may elect to change the terms and conditions of use of the Santana West Fit Studio, including implementation of reasonable, non-discriminatory rules, in Landlord’s reasonable discretion; provided, however, no
change shall require Tenant or Tenant’s employees to pay for the use of the Santana West Fit Studio. Landlord may specifically condition the use of the Santana West Fit Studio by any Person upon such Person’s execution of a commercially reasonable written waiver and release holding Landlord and the Landlord’s Indemnities harmless from any and all Losses arising from injury to such Person occurring in the Santana West Fit Studio or resulting from the use thereof. Neither Landlord nor any Landlord’s Indemnities shall have any liability to Tenant or any of its employees for any Losses whatsoever arising out of the use of the Santana West Fit Studio. Landlord shall not charge Tenant’s employees for use of the Santana West Fit Studio use or membership to use the facility. Any charges related to the maintenance and repair of this amenity shall be included within the Common Area charges under the Tenant’s Share of Operating Expenses.
B. During the Term, Tenant and Tenant’s employees shall have the non-exclusive use of the Fit Studio at Santana Row (the “Santana Row Fit Studio”), subject to the terms and conditions upon which Landlord offers such use rights to other tenants of the Project and Santana Row. Tenant acknowledges that Landlord may elect to change the terms and conditions of use of the Santana Row Fit Studio, including implementation of reasonable, non-discriminatory rules, in Landlord’s reasonable discretion. Landlord may specifically condition the use of the Santana Row Fit Studio by any Person upon such Person’s execution of a commercially reasonable written waiver and release holding Landlord and the Landlord’s Indemnities harmless from any and all Losses arising from injury to such Person occurring in the Santa Row Fit Studio or resulting from the use thereof. Neither Landlord nor any Landlord’s Indemnities shall have any liability to Tenant or any of its employees for any Losses whatsoever arising out of the use of the Santana Row Fit Studio.
C. The parties acknowledge that the Common Areas include a café for the Building (the “Café”). Tenant’s use of the Café shall be on a first-come, first-served basis. Use of the Café shall be subject to payment by Tenant’s employees and guests of the applicable charges for the food and other items purchased therein. The Café shall initially offer “grab and go” food (e.g., pre-packaged salads, sandwiches and canned and bottled beverages) as well as coffee, tea and smoothies; provided, however, that if more than fifty percent (50%) of the Building is leased and occupied on a regular basis, then Landlord may expand the Café’s offerings to include prepared foods. The Café shall also include a board room for meetings that may be reserved by tenants of the Project pursuant to a reservation system and reasonable rules and regulations adopted by Landlord from time to time. Landlord shall initially operate the Café Monday through Friday (excluding non-Business Days) at reasonable hours. All utility and janitorial costs and expenses associated with the Café shall be included in the Operating Costs. Landlord reserves the right to engage an operator (the “Operator”) to operate the Café. Notwithstanding the foregoing, Landlord shall have the right to alter, suspend and/or terminate the Café upon not less than thirty (30) days prior Notice to Tenant due to low use, as reasonably determined by Landlord. Landlord agrees that during the Term the Landlord will not charge Tenant for use of the board room for meeting where reserved by Tenant, except such charges for set up, clean up and any provisions which may be requested or included.
D. Landlord has installed one hundred eight (108) Charge Point dual EV Stations (each a “Charging Station” and, collectively, the “Charging Stations”), twenty-two (22) of which are located in the Tower Parking Garage and eighty-six (86) of which are located in the Common Parking Garage. Subject to such reasonable rules and regulations as Landlord may implement from time to time, Tenant shall have the non-exclusive right to use the Charging Stations throughout the Term on a first-come, first-served basis but Landlord makes no representation or warranty that the Charging Stations will be available for the use by Tenant at any time. Landlord reserves the right to modify, replace, and/or upgrade the Charging Stations and the type, manufacturer and characteristics of the Charging Stations shall be determined by Landlord, in Landlord’s sole discretion. The cost of operating, maintaining, repairing, modifying, replacing and/or upgrading the Charging Stations may be included in Operating Costs.
E. Landlord shall provide Tenant upon request with reasonable secure bicycle storage facilities at the Project for use by Tenant’s employees either in the form of a locked storage room facility or a caged bike storage area within the parking facilities at the Project. Any bicycle storage area shall be part of the Common Area for the purposes of maintenance and repair.
ARTICLE VIII
INDEMNITY AND INSURANCE
Section 8.01. Indemnity.
A. Tenant shall indemnify, defend and hold Landlord, lessors, partners, members and affiliates, and their respective shareholders, partners, members, trustees, agents, representatives, directors, officers, employees and Mortgagee(s) (collectively, “Landlord’s Indemnitees”) harmless from and against all claims, causes of action, suits, proceedings, liabilities, losses, obligations, damages, judgments, penalties, claims, costs, charges and expenses (including, without limitation, reasonable architects’, consultants’ and attorneys’ fees and costs) (collectively, “Losses”) which may be imposed upon, incurred by, or asserted against any of Landlord’s Indemnitees by a third party and arising, directly or indirectly, out of or in connection with (i) Tenant’s breach of its obligations under this Lease, or (ii) the acts or omissions of Tenant, its subtenants or the respective agents, contractors, employees, servants or licensees in, on or about the Leased Premises, Building, Parking Garage, Project or Santana Row Fit Studio. Tenant shall not be obligated to indemnify Landlord’s Indemnitees against loss, liability, damage, cost or expense arising out of a claim for which Tenant is released from liability pursuant to Section 8.07 below, or a claim to the extent arising out of the willful misconduct or negligent acts or omissions of Landlord or its agents, employees or contractors.
B. Landlord shall indemnify, defend and hold Tenant, its partners, officers, shareholders, members, trustees, principals, agents, directors and employees (collectively, “Tenant’s Indemnitees”) harmless from and against all Losses which may be imposed upon, incurred by, or asserted against any of the Tenant’s Indemnitees by a third party and arising, directly or indirectly, out of or in connection with (i) Landlord’s breach of its obligations under this Lease, (ii) the gross negligence or willful misconduct of Landlord or its agents, contractors, servants, employees and/or licensees in, on or about the Building, Parking Garage or Project. Landlord shall not be obligated to indemnify Tenant’s Indemnitees against loss, liability, damage, cost or expense arising out of a claim for which Landlord is released from liability pursuant to Section 8.07 below, or a claim to the extent arising out of the willful misconduct or negligent acts or omissions of Tenant or its agents, employees or contractors.
Section 8.02. Landlord Not Responsible for Acts of Others.
Landlord shall not be liable to Tenant, nor to those claiming through Tenant, for any loss, theft, injury, liability or damage of, for or to Tenant, Tenant’s Indemnitees, Tenant’s business and/or the property of Tenant or Tenant’s Indemnitees which may result from any of the following unless expressly covered under Section 8.01(B), above: (i) any act, omission, fault or negligence of other tenants, occupants or licensees, their respective agents, employees or contractors, or any other Persons (including occupants of adjoining or contiguous buildings, owners of adjacent or contiguous property, or the public); (ii) the breaking, bursting, backup, stoppage or leaking of electrical or phone/internet cables and wires, or water, gas, sewer, HVAC or steam pipes or ducts serving the Leased Premises and/or the Building; (iii) the reduction or interruption of electrical energy, water, gas and/or any other utilities to the Leased Premises; (iv) water, snow or ice being upon the Building or coming into the Leased Premises; and/or (v) earthquake or other acts of God. Tenant acknowledges that its use of the Leased Premises and the Building is at its own risk, subject to Landlord’s indemnity under Section 8.01(B), above.
Section 8.03. Tenant’s Insurance.
Commencing on the earlier of the date Landlord delivers possession of the Leased Premises to Tenant in the Delivery Condition required hereunder or the date Tenant is given earlier access to the Leased Premises in accordance with Exhibit B, and continuing at all times during the Term thereafter, Tenant shall carry and maintain:
A. Commercial General Liability (on a current ISO occurrence form or equivalent) with a deductible of not more than One Hundred Thousand Dollars ($100,000.00) (the “Deductible Cap”), naming Tenant as the named insured and including Landlord and (at Landlord’s request) Landlord’s Mortgagee (and managing agent), if any, Landlord’s property
manager, if any, Federal Realty Investment Trust (“FRIT”), if FRIT is not the Landlord under this Lease, and Ground Lessor, as additional insureds, providing an Additional Insured – Managers or Lessors of Leased Premises Endorsement (#CG-20-11-01-96 or equivalent) protecting Tenant and the additional insureds against liability for bodily injury, death and property damage with respect to liability arising out of the ownership, use, occupancy or maintenance of the Leased Premises and all areas appurtenant thereto, with limits not less than per occurrence limit of Two Million Dollars ($2,000,000.00) and a general aggregate of Five Million Dollars ($5,000,000.00). If the policy also covers locations other than the Leased Premises, the policy shall include a provision to the effect that the aggregate limit of Four Million Dollars ($4,000,000.00) shall apply separately at the Leased Premises. These policy limits may be obtained through any combination of primary, umbrella and excess insurance. If Tenant sells, serves or distributes food in or on the Leased Premises, then such General Liability Insurance shall include products liability with a combined single limit of Two Million Dollars ($2,000,000.00) per occurrence and an aggregate limit of Two Million Dollars ($2,000,000.00). In addition, if Tenant hosts a function in or on the Leased Premises where alcoholic beverages are served, then Tenant agrees to cause any persons or parties providing services for such function to obtain, commercially reasonable host liquor liability coverage naming Landlord, Landlord’s managing agent and those others designated by Landlord as additional insureds and provide Landlord with evidence of the same.
B. “All Risks” or “Special Causes of Loss Form” property insurance covering all of Tenant’s Property, Leasehold Improvements and Specialized Leasehold Improvements (as each are defined in Section 9.05. below), and coverage for those building components for those portions of the Leased Premises that Tenant is responsible to repair pursuant to Section 10.02. below and written for at least the full replacement cost with a deductible of not more than the Deductible Cap.
C. Business interruption, loss of income and extra expense insurance with at least Five Million Dollars ($5,000,000.00) of coverage.
D. Worker’s compensation insurance and employer’s liability insurance with a minimum of One Million Dollars ($1,000,000.00), and statutory worker’s compensation insurance as required by the State of California. Such policy shall provide a waiver of subrogation in favor of Landlord and Landlord’s managing agent.
Notwithstanding anything set forth above, all dollar limits specified in this Section 8.03. may be adjusted not more than once every three (3) years of the Term effective not less than sixty (60) days after the date of any proposed increase, to effect (i) economically equivalent insurance coverage, or coverage deemed adequate in light of then existing circumstances, based on the written recommendations of a reputable insurance consultant retained by Landlord at Landlord’s sole cost and the practices of owners of comparable mixed-projects in the area of the Project, provided the written report containing the consultant’s recommendation will be provided to Tenant together with any proposed increase in coverage, and/or (ii) the requirements of Landlord’s then-Mortgagee.
Section 8.04. Tenant’s Contractor’s Insurance.
Tenant shall cause any contractor performing work on the Leased Premises to obtain, carry and maintain, at no expense to Landlord the following coverages with limits not less than indicated: (i) worker’s compensation insurance, as required by the State of California and employer’s liability with limits not less than Five Hundred Thousand Dollars ($500,000.00) providing a waiver of subrogation in favor of Landlord, Federal Realty Investment Trust, if FRIT is not the Landlord, Landlord’s managing agent (if applicable) and Ground Lessor; (ii) builder’s risk insurance with a deductible no greater than Ten Thousand Dollars ($10,000.00), in the amount of the full replacement cost of Tenant’s Property and Leasehold Improvements; (iii) Commercial General Liability Insurance, including completed operations and contractual liability coverage, providing on an occurrence basis limits not less than Two Million Dollars ($2,000,000.00) per occurrence and Five Million Dollars ($5,000,000.00) general aggregate including Landlord, Federal Realty Investment Trust, if FRIT is not the Landlord, Landlord’s managing agent (if applicable) and Ground Lessor as additional insureds using the current ISO Additional Insured Endorsement forms CG 20 38 for ongoing operations and CG 20 37 for
completed operations or their equivalent providing coverage at least as broad; and (iv) business automobile liability insurance including the ownership, maintenance and operation of the automotive equipment, owned, hired, and non-owned coverage with a combined single limit of not less than One Million Dollars ($1,000,000.00) for bodily injury and property damage. If the contractor fails to acquire such insurance, Tenant shall provide such insurance (except worker’s compensation insurance and employer’s liability). These policy limits may be obtained through any combination of primary, umbrella and excess insurance.
Section 8.05. Policy Requirements.
Any company writing any insurance which Tenant is required to maintain or cause to be maintained under Sections 8.03 and 8.04 as well as any other insurance pertaining to the Leased Premises or the operation of Tenant’s business therein (all such insurance being referred to as “Tenant’s Insurance”) shall at all times be licensed and qualified to do business in the jurisdiction in which the Leased Premises are located and shall have received an A-VII or better rating by the latest edition of A.M. Best’s Insurance Rating Service. All of Tenant’s Insurance may be carried under a blanket policy covering the Leased Premises and any other location of Tenant, if (i) the coverage afforded Landlord and any designees of Landlord shall not be reduced or otherwise adversely affected, and (ii) such blanket policy allocates to the properties and liabilities to be insured under this Article VIII an amount not less than the amount of insurance required to be covered pursuant to this Article VIII, so that the proceeds of such insurance shall not be less than the proceeds that would be available if Tenant were insured under a unitary policy. Tenant’s and Tenant’s contractors Commercial General Liability policies shall name Landlord and/or its designees described in Section 8.03(A), above as additional insured, and Tenant’s property insurance policies shall include Landlord as additional insured for Leasehold Improvements and betterments installed by Landlord. Tenant shall notify Landlord in writing of any cancellation or material reduction of policy limits below those required by this Lease with regard to Tenant’s insurance policies of which Tenant has knowledge at least ten (10) Business Days before any such insurance shall be cancelled or modified. Tenant shall be solely responsible for payment of premiums for all of Tenant’s Insurance. Tenant shall deliver to Landlord at least ten (10) Business Days prior to the time Tenant’s Insurance is first required to be carried by Tenant, and upon renewals within three (3) days from the expiration of the term of any such insurance policy (provided, however, in no event shall Tenant allow any such insurance to lapse at any time during the Term), a copy of the certificate of insurance, or binder of insurance, of all policies of Tenant’s Insurance. The limits of Tenant’s Insurance shall not limit Tenant’s liability under the Lease, at law, or in equity. Tenant’s Commercial General Liability Insurance shall be primary and non-contributory with respect to Landlord’s liability arising out of the act or omission of Tenant, its officers, agents, contractors, employees. If Tenant fails to deposit reasonable evidence of insurance with Landlord (which shows compliance with the provisions of this Article VIII) within three (3) Business Days after Notice from Landlord, Landlord may acquire such insurance, and Tenant shall pay Landlord the amount of the premium applicable thereto within thirty (30) days following receipt of invoice for the same.
Neither the insurance requirements set forth in the Lease nor the Landlord’s review and approval of any insurer or insurance policy shall be deemed to limit the Tenant’s obligations under this Lease or the Tenant’s underlying liability in any manner. The insurance requirements herein merely prescribe the minimum amounts and forms of insurance coverage that the Tenant and their contractors are required to carry. Any failure by the Landlord to enforce in a timely manner any of the Tenant’s insurance provisions of the Lease shall not act as a waiver to enforcement of any of such provisions at a later date.
Section 8.06. Increase in Insurance Premiums.
Tenant shall not keep or do anything in the Leased Premises, the Building, the Common Areas (including, without limitation, the Parking Garage) or the Project that will: (i) cause an increase in the rate of any insurance on the Building and/or Project; (ii) violate the terms of any insurance coverage on the Building or Project carried by Landlord or any other tenant; (iii) prevent Landlord from obtaining such policies of insurance acceptable to Landlord or any Mortgagee of the Building; or (iv) violate the rules, regulations or recommendations of Landlord’s insurers, loss prevention consultants, safety engineers, the National Fire Protection Association, or any similar body having jurisdiction over the Leased Premises. If Tenant does so, and Tenant does not correct the relevant condition within thirty (30) days after Notice, Tenant
shall pay to Landlord upon demand the amount of any increase in any such insurance premium. In determining the cause of any increase in insurance premiums, the schedule or rate of the organization issuing the insurance or rating procedures shall be conclusive evidence of the items and charges which comprise the insurance rates and premiums on such property. Notwithstanding anything to the contrary in the foregoing, Landlord hereby represents to Tenant that general office use and the use described in Section 4.02 of this Lease will neither cause an increase in Landlord’s insurance premiums or violate the terms of Landlord’s insurance coverage; provided, however, that Landlord has no knowledge of and makes no representations, actual or implied, of Tenant’s actual use and operations within the Leased Premises.
Section 8.07. Waiver of Right of Recovery.
Except for the indemnification for Hazardous Substances as set forth in Section 17.22, neither Landlord nor Tenant shall be liable to the other party or to any insurance company (by way of subrogation or otherwise) insuring such other party for loss or damage to any building, structure or other tangible property, or any resulting loss of income, or losses under worker’s compensation Laws or benefits, even though such loss or damage might have been occasioned by the negligence of Landlord or Tenant, or their respective managing agents, officers, directors and employees; provided, however, the mutual release contained herein shall not apply to damage to property or loss of income caused by the intentional willful misconduct of the other party or that other party’s officers, directors, or employees. This Section 8.07 shall not expand, limit or supersede the indemnification to third parties as provided in Section 8.01. The provisions of this Section 8.07 shall apply to any Transferee pursuant to Article XV of this Lease, and the Transferee shall expressly agree in writing to be bound by the provisions of this Section 8.07 (as if such Transferee were Tenant hereunder) for the benefit of Landlord.
Section 8.08. Landlord’s Insurance.
All insurance maintained by Landlord shall be for the sole benefit of Landlord and under Landlord’s sole control. Landlord shall maintain throughout the Term (i) “all risk” or “special causes of loss form” property insurance including, at Landlord’s election, standard earthquake and flood insurance, insuring the structural components of the Building and the Project, to the extent of the full replacement value of such Building and Project (excluding the Leasehold Improvements and Specialized Leasehold Improvements); and (ii) Commercial General Liability Insurance (ISO form or equivalent) covering Landlord’s activities in and about the Project with policy terms providing not less than a per occurrence limit of Two Million Dollars ($2,000,000.00) and a general aggregate of Ten Million Dollars ($10,000,000.00). Landlord will carry commercially reasonable insurance with policy limits that are consistent with the standard of a reasonably prudent landlord covering loss of rental income coverage and automobile coverage for any vehicles owned by Landlord. Provided the insurance coverage carried by Landlord pursuant to (i) above shall not be reduced or otherwise adversely affected, all of Landlord’s insurance may be carried under a blanket policy covering the Project and any other property owned, leased or operated by Landlord or its affiliates, provided the insurance requirements in this Lease are fulfilled and the insurance coverage is not diminished in any way. The cost of all such insurance is included in Operating Costs. Landlord shall not be obligated to insure, and shall have no responsibility whatsoever for any damage to, any Leasehold Improvements, Specialized Leasehold Improvements or Tenant’s Property that Tenant may make, keep or maintain in the Leased Premises during the Term.
The Landlord’s insurance requirements set forth in Section 8.08 of the Lease, and the Landlord’s insurer or insurance policy shall not limit the Landlord’s obligations or liability under the terms and conditions of this Lease. The Landlord’s insurance requirements prescribe the minimum amounts and forms of insurance coverage that Landlord and its agents and contractors are required to carry. Any failure by the Tenant to enforce in a timely manner any of the provisions of the Lease regarding insurance to be carried by the Landlord, its agents and contractors shall not act as a waiver to enforcement of any of such provisions at a later date.
ARTICLE IX
CONSTRUCTION AND ALTERATIONS
Section 9.01. Condition of Leased Premises Upon Delivery.
Tenant agrees to accept possession of the Leased Premises in the Delivery Condition (when the Tenant Work has been Substantially Completed), subject only to Landlord’s express representations and warranties set forth in this Section 9.01. Except for Landlord’s express representations and warranties contained in this Lease, neither Landlord nor any agent of Landlord has made any representation or warranty regarding the condition of the Leased Premises, the Building, or the Project, the suitability of the Leased Premises for Tenant’s use, or the identity of other tenants or potential tenants of the Project. Landlord represents and warrants that upon the Delivery Date (i) Landlord shall not have received any written notice from any governmental agency that the Building, Land or Leased Premises are in violation of any Laws which remain uncorrected where such violation would have a material and adverse impact on Tenant’s ability to obtain a building permit for the completion of the Tenant’s work and a certificate of occupancy for the Premises, and (ii) to Landlord’s actual knowledge, the Leased Premises and Building will comply in all material respects with all applicable Laws, including, but not limited to, the Americans With Disability Act and Title 24 (as such Laws are applied and interpreted by the applicable governmental authorities or quasi-governmental authorities as of the date of this Lease) applicable to the condition in which the Leased Premises is being delivered, without regard to any specific use of the Leased Premises or the improvements to be installed by Tenant, (b) the Building systems shall be in good working order, condition and repair. If (i) the Tenant Work completed by Landlord pursuant to Exhibit B hereto, or (ii) the Building or Premises roofs, doors, skylights, windows, seals as well as the plumbing, fire sprinkler/life safety, lighting, heating, ventilation and air conditioning, electrical and elevator systems serving the Leased Premises are not in good operating condition and repair during the Landlord Warranty Period (as defined below), then Landlord shall not be liable to Tenant for any damages, but as Tenant’s sole remedy, Landlord, at no cost to Tenant (and not charged as Operating Costs), shall promptly perform such corrective work or take such other actions as may be necessary to put such condition (as set forth in subsection (i) or (ii) above) in good operating condition and repair. Notwithstanding the foregoing, Landlord shall not be responsible for any condition that arises due to the construction of any Tenant modifications, alterations and/or improvements or the installation of any of Tenant’s furniture, fixtures, equipment or property, or that are due to Tenant’s particular use of the Leased Premises or the particular manner in which Tenant conducts its business in the Leased Premises. Landlord shall have the right to apply for and obtain a waiver or deferment of compliance, the right to contest any violation in good faith, including, but not limited to, the right to assert any and all defenses allowed by applicable Laws, and the right to appeal any decisions, judgments or rulings to the fullest extent permitted by applicable Laws, and Landlord’s obligation to perform corrective work or take other action to cure a violation under this Section 9.01 shall not apply until after the exhaustion of any and all rights to appeal or contest, provided no such contest may materially, adversely affect Tenant’s ability to use and operate any portion of the Leased Premises during the progress of any such contest, or result in the expiration of the Landlord Warranty Period so long as Notice of the initial claim is given to Landlord during the Landlord Warranty Period. If Tenant does not notify Landlord in writing on or before the earlier of (A) ten (10) Business Days after learning of any violation or alleged violation of subsection (i) or (ii) above, or (B) on or before the first (1st) anniversary of Term Commencement Date (the period of time from Term Commencement Date to the first (1st) anniversary thereof being referred to herein as the “Landlord Warranty Period”) of any violation of subsections (i) or (ii), above, then Landlord shall not be responsible for correcting such condition pursuant to this Section 9.01 but rather such condition shall be corrected as otherwise provided in the Lease and the cost of performing such correction shall be included in Operating Costs, or performed by Tenant as required under Section 10.02
Section 9.02. Tenant Improvements.
Landlord and Tenant, at their respective sole cost and expense, agree to provide all improvements to the Building and Leased Premises in accordance with their respective obligations set forth in Exhibit B. If Landlord has not delivered the Lease Premises to Tenant in the Delivery Condition on or before the first anniversary of the Effective Date, provided such date shall be extended on a day-for-day basis as a result of Force Majeure and Tenant Delay (as
may be extended, the “Termination Election Date”), then the Tenant shall have the right, but not the obligation, to deliver a written notice of termination of this Lease within five (5) Business Days of the Termination Election Date; provided however, if (i) Tenant fails to deliver such written termination notice within such five (5) Business Day period, or (ii) Landlord delivers the Leased Premises in the Delivery Condition prior to Tenant’s delivery of such written termination notice, then Tenant shall be deemed to have affirmatively elected not to so terminate this Lease, and Tenant’s termination right hereunder shall expire and be of no further force or effect. If Tenant timely delivers such termination notice prior to the occurrence under subsection (i) or (ii) in the preceding sentence, then this Lease shall terminate and the parties hereto shall be immediately released of all obligations and liabilities under the terms of this Lease except those that expressly survive termination or expiration of this Lease, and Landlord shall within ten (10) Business Days refund to Tenant all of the Security Deposit and prepaid Rent delivered to the Landlord.
Section 9.03. Alterations.
Following the Term Commencement Date, Tenant shall not make or cause to be made any alterations, additions, renovations, improvements or installations in or to the Leased Premises (“Alterations”) without Landlord’s prior consent, which such consent will not be unreasonably withheld, condition or delayed by the Landlord. Tenant shall in no event make or permit to be made any Alterations that affect (i) any of the Building Systems, (ii) the structural components of the Building including, without limitation, the roof, (iii) the exterior appearance of the Building, or (iv) the Tower Parking Garage or Common Parking Garage (collectively, the “Restricted Alterations”), without the prior written consent of Landlord, which may be granted or withheld in Landlord’s sole and absolute discretion. Notwithstanding the foregoing, Tenant may make cosmetic Alterations within the Leased Premises that are not otherwise Restricted Alterations that cost up to One Hundred Thousand Dollars ($100,000.00) in the aggregate annually as long as such cosmetic Alterations comply with all applicable Laws, are consistent in appearance with the Operating Standard and such Alterations where practicable are removed, and any damage to the Leased Premises repaired as required hereunder, prior to the expiration of the Term; provided, however, that such repair and restoration obligation shall not apply to any cosmetic Alternations that are paint or carpet or floor finishes. If Landlord consents to any such Alterations by Tenant and such Alterations are Restricted Alterations, then Landlord shall have the right (but not the obligation) in its sole discretion to manage or supervise such work and Tenant shall pay to Landlord a reasonable fee to reimburse Landlord for overhead and administrative costs and expenses incurred in connection with the management or supervision of such work by Landlord, not to exceed two percent (2%) of the hard costs of construction of any such Restricted Alterations. If, however, such Alterations are not Restricted Alterations, then Landlord shall have the right (but not the obligation) in its sole discretion to review the plans, specifications and design drawings with respect to such work, and Tenant shall pay to Landlord a reasonable fee to reimburse Landlord for the actual out of pocket costs incurred by Landlord not to exceed Five Thousand Dollars ($5,000.00). At any time Landlord approves any plans for Alterations the Landlord shall provide Tenant in writing the description of any Alterations that Landlord shall require Tenant to remove from the Lease Premises and restore the same to substantially the same condition upon the expiration Lease. Approval of the Alternations by Landlord or approval of Restricted Alterations shall not require Tenant to implement and perform the same and at all times Tenant shall have the right to withdraw any plans for Alterations to the Leased Premises.
Section 9.04. Work Requirements.
All Alterations performed by Tenant in the Leased Premises shall be performed (i) promptly and in a workmanlike manner with first-class materials; (ii) by duly qualified or licensed Persons; (iii) without unreasonable interference with, or disruption to, the operations of Landlord or other tenants or occupants of the Building; and (iv) in accordance with (a) plans and specifications approved in writing in advance by Landlord (as to both design and materials) which such approval shall not be unreasonably delayed, except as otherwise provided in Section 9.03 above, and (b) all applicable governmental permits, rules and regulations.
Section 9.05. Ownership of Improvements.
All Alterations and Specialized Leasehold Improvements made by Tenant (collectively the “Leasehold Improvements”), that are accepted by Landlord in accordance herewith, shall
become property of Landlord upon Tenant’s vacation or abandonment of the Leased Premises and, unless Landlord directs otherwise, shall remain upon and be surrendered with the Leased Premises in good order, condition and repair, reasonable wear and tear and damage due to casualty not to be repaired by Tenant or condemnation excepted. Notwithstanding the foregoing or anything to the contrary contained in this Lease, Tenant, at its sole cost and expense, shall be required to remove all alterations, additions, renovations, improvements and installations made to the Leased Premises that constitute Specialized Leasehold Improvements, or which constitute Alterations that Landlord has indicated upon approval thereof pursuant to Section 9.03 above will be required to be removed upon surrender, no later than the Termination Date and repair all damage to the Leased Premises and the Building resulting from such removal; provided, however, in no event shall Landlord require Tenant to remove any Tenant Work (as defined in Exhibit B attached hereto) unless the same are Specialized Leasehold Improvements. For purposes of this Lease, “Specialized Leasehold Improvements” shall mean Leasehold Improvements that are not general office improvements in Comparison Buildings; provided, however, that without limitation to the foregoing, in all events the following shall constitute Specialized Leasehold Improvements: any alterations or improvements that materially and adversely affect the Building Structure or Building systems or are located outside of the Leased Premises; any alterations requiring floor reinforcement or enhanced systems requirements; reinforced flooring or raised flooring at the end of the Lease Term, so long as the same shall then be in good condition, (ordinary wear and tear accepted), floor penetrations, stone flooring and structural reinforcements; kitchens; private or executive bathrooms, showers and similar facilities that are not part of the base Building; interstitial staircases, installed by or on behalf of Tenant after the Effective Date; all supplemental HVAC systems (including chillers); atriums; auditoriums; vaults; safes; generators; rack systems; back-up energy supply systems; generators, fuel tanks and UPS (and all related gear and equipment); all built in or embedded artwork that is subject to the Visual Artists Rights Act, all Tenant Lines and all electrical and telecommunications risers (and all related gear and equipment); Rooftop Installations, and Rooftop Equipment and Tenant Security Systems (each as defined below); provided, further, however, that the foregoing shall not constitute Landlord’s consent to the installation of any of the foregoing. All movable goods, inventory, office furniture, equipment, trade fixtures, signs, Tenant Lines, Rooftop Installations, Rooftop Equipment and other movable personal property belonging to Tenant that are not permanently affixed to the Leased Premises (collectively, “Tenant’s Property”), shall remain Tenant’s property and shall be removable by Tenant at any time, provided that Tenant repairs any damage to the Leased Premises or the Building caused by the removal of any of Tenant’s Property.
Section 9.06. Removal of Tenant’s Property.
Tenant shall remove all of Tenant’s Property (and any Leasehold Improvements as Landlord may direct, consistent with Section 9.05, above) prior to the Termination Date or the termination of Tenant’s right to possession. Tenant shall repair any damage to the remaining Leasehold Improvements, the Leased Premises or any other portion of the Building caused by such removal to a condition reasonably comparable to the condition delivered or the initial condition of the Leasehold Improvements, as applicable, reasonable wear and tear and damage by casualty to be repaired by Landlord excepted. If Tenant fails to timely remove said items, they shall be considered as abandoned and shall become the property of Landlord, or Landlord may remove and dispose of them.
Section 9.07. Mechanic’s Liens.
No mechanic’s or other lien shall be allowed against the Building as a result of Tenant’s Alterations to the Leased Premises. Tenant shall give Landlord Notice not less than thirty (30) days prior to commencement of any work in, on or about the Leased Premises, and Landlord shall have the right to record and post notices of non-responsibility in or on the Leased Premises. Tenant shall promptly pay all Persons furnishing labor, materials or services with respect to any work performed by Tenant on the Leased Premises. If any mechanic’s or other lien shall be filed against the Leased Premises or the Building by reason of work, labor, services or materials performed or furnished, or alleged to have been performed or furnished, to or for the benefit of Tenant, Tenant shall cause the same to be discharged of record or bonded in the manner required by statute to remove the effect of the relevant lien within ten (10) days subsequent to Notice by Landlord. If Tenant fails to discharge or bond any such lien, Landlord, in addition to all other rights or remedies provided in this Lease, may bond said lien or claim (or payoff said lien or
claim if it cannot with reasonable effort be bonded) without inquiring into the validity thereof and all expenses incurred by Landlord in so discharging said lien, including reasonable attorney’s fees, shall be paid by Tenant to Landlord as Additional Rent on ten (10) Business Days demand.
Section 9.08. Cabling; Rooftop Installations.
A. All voice, data, video, audio and other low voltage control transport system cabling and/or cable bundles (“Tenant Lines”) installed in the Building by Tenant or its contractor shall be (i) in compliance with all applicable Laws and have a composition makeup suited for its environmental use in accordance with NFPA 70/National Electrical Code; (ii) reasonably identifiable as Tenant Lines; (iii) installed in accordance with all EIA/TIA standards and the National Electric Code; and (iv) installed and routed in accordance with a routing plan showing “as built” or “as installed” configurations of cable pathways, outlet identification numbers, locations of all wall, ceiling and floor penetrations, riser cable routing and conduit routing (if applicable), and such other reasonable information as Landlord may request. The routing plan shall be available to Landlord and its agents at the Leased Premises upon request. Upon Landlord’s written request and at Tenant’s sole cost and expense, Tenant shall cause all Tenant Lines (or such Tenant Lines as Landlord shall request) to be removed at the expiration or earlier termination of this Lease; provided, however, Landlord, at Landlord’s option, shall have the right within ten (10) Business Days following Notice, to cause such Tenant Lines to be removed by Landlord’s contractors at the expiration or earlier termination of this Lease, and in such event, Tenant shall reimburse Landlord (within thirty (30) days following Landlord’s written demand) for all reasonable out of pocket costs and expenses incurred by Landlord in connection therewith, as reasonably demonstrated by Landlord (which obligation shall survive the expiration or earlier termination of this Lease). Tenant and its telecommunications companies, including local exchange telecommunications companies and alternative access vendor services companies, shall have no right of access to and within the Building (including the roof of the Building), for the installation and operation of telecommunications systems, including voice, video, data, Internet, and any other services provided over wire, fiber optic, microwave, wireless, and any other transmission systems (“Telecommunications Services”), for part or all of Tenant’s telecommunications within the Building and from the Building to any other location without Landlord’s prior written consent, not be unreasonably withheld, provided in all cases such providers will have access to the Minimum Point of Entry (“MPOE”) of the Building for the purposes of initiating such service. All providers of Telecommunications Services must be on the then-current pre-approved list for the Project, if any, which Landlord shall provide upon request by Tenant, or shall be approved by Landlord in advance, which approval shall not be unreasonably withheld if Tenant selects a national provider of such services, and shall be required to comply with the rules and regulations of the Building, all applicable Laws, and Landlord’s reasonable, nondiscriminatory policies and practices for the Building. Tenant acknowledges that Landlord shall not be required to provide or arrange for any Telecommunications Services and that Landlord shall have no liability to Tenant in connection with the installation, operation or maintenance of Telecommunications Services or any equipment or facilities relating thereto, subject to the indemnity provision hereof. Tenant, at its cost and for its own account, shall be solely responsible for obtaining all Telecommunications Services.
B. Subject to the terms and conditions of this Lease including, without limitation, the Rooftop Rules and Regulations (as defined below), Tenant may during the Term, at no additional charge to Tenant, install, operate, maintain and repair on a location of the roof of the Building designated by Landlord, solely in connection with the conduct of Tenant’s business in the Leased Premises, the Rooftop Equipment (as defined below) (collectively, “Rooftop Installations”). All costs associated with the design, fabrication, engineering, permitting, installation, screening, maintenance, repair, operation, use and removal of the Rooftop Installations shall be borne solely by Tenant except to the extent that the Rooftop Installations are part of the Tenant Work and are paid for out of the Tenant Work Allowance. For purposes of this Lease, “Rooftop Equipment” shall mean (i) telecommunications antennae, microwave dishes and other communications and information technology equipment to serve Tenant’s business in the Leased Premises, (ii) equipment required for any supplemental heating, ventilation or air conditioning system (supplemental to the Leased Premises HVAC system) for cooling of any server room or racking of information technology equipment in a size as calculated and reasonably determined by
Tenant’s engineer to be necessary to meet cooling requirements, and (iii) connections for such equipment for electrical wiring to the Building’s existing electrical supply and cable (including the Tenant Lines) or similar connections necessary to connect the Rooftop Equipment with Tenant’s related equipment located in the Leased Premises.
C. The routes or paths for wiring and connections serving the Rooftop Equipment shall be through the Building’s risers, plenums, conduits and shafts, subject to reasonable space limitations and Landlord’s reasonable requirements for use of such areas, and in all events subject to Landlord’s approval of plans and installation pursuant to other provisions of this Lease (such routes or paths are collectively referred to herein as “Cable Paths” and all such electrical and other connections, including the Tenant Lines, are collectively referred to herein as “Connections”) with respect to any Rooftop Installations installed after the Tenant Work is completed. If the Rooftop Equipment or other Rooftop Installations or Connections, or any part thereof, constitute part of the Tenant Work, then Landlord’s approvals or disapprovals above shall be given by Landlord in connection with, and subject to the time periods governing, its approval or disapproval of the Working Plans or other construction drawings pursuant to the Work Agreement.
D. Without limiting the generality of any other provision hereof, Tenant shall install, maintain, use and operate its Rooftop Equipment in compliance with all applicable Laws and the Rooftop Rules and Regulations attached hereto as Exhibit E, and shall not interfere with or otherwise impair the use and operation of any of the following that is operating within the manufacturer’s specifications therefor or any license granted in connection therewith: (i) television or radio equipment in or about the Project; (ii) transmitting, receiving or master television, telecommunications or microwave antennae equipment located in any portion of the Project; or (iii) radio communication system located on any portion of the Project.
E. If roof repairs and/or roof replacements to the Building (the “Roof Repairs”) are reasonably necessary at any time, and such roof repairs are conducted by Landlord, Landlord shall give Tenant at least ten (10) Business Days’ prior Notice of the date Landlord intends to commence such Roof Repairs (except that no prior Notice shall be required in the event of an Emergency), along with a description of the work scheduled to be performed, where it is scheduled to be performed on the roof, and an estimate of the time frame required for that performance. Tenant shall, at its sole expense, within ten (10) Business Days following receipt of such Notice, use reasonable effort to arrange for removal or relocation of the Rooftop Installations on a temporary basis if Landlord reasonably determines such removal of relocation is reasonably necessary or appropriate for the expeditious performance of any Roof Repairs, provided Landlord and Tenant will reasonably cooperate to minimize any interference in or loss of service from Rooftop Equipment critical to Tenant’s business operations that may otherwise be cause by such relocation or Roof Repairs.
F. Notwithstanding anything to the contrary set forth in this Section 9.08 or elsewhere in this Lease, except as approved in writing in advance by Landlord, Tenant shall not be entitled to use more than a proportionate share of the roof area of the Building designated by Landlord for the installation of such type of equipment, calculated based on the total number of square feet available on the roof for the installation of such equipment, and the proportion of the Floor Area of the Leased Premises to the total Floor Area in the Building.
Section 9.09. Tenant Security Systems.
Tenant shall have the right, at Tenant’s sole cost and expense, to install a separate security system for the Leased Premises (“Tenant Security System”), provided that any such Tenant Security System shall be subject to Landlord’s reasonable prior review and approval of the plans and specifications for such Tenant Security System in accordance herewith. Tenant shall coordinate the installation and operation of the Tenant Security System with Landlord to assure that the Tenant Security System is compatible with Landlord’s security system and the Building’s systems and equipment. Landlord shall coordinate with Tenant to install the Lease Premises Security System that is compatible with Landlord’s security system for the entry to the Building security systems, including the use of a single key fob or other key card access badge to operate said Tenant Security System. Tenant shall monitor, keep and maintain the Tenant Security System in good working order, condition and repair throughout the Term. The
installation, maintenance, use and operation of the Tenant Security System shall comply with all applicable Laws and the terms of the Lease. Tenant shall provide Landlord with key cards or access codes, as applicable to permit Landlord access to the Leased Premises at all times. Tenant acknowledges and agrees that the Tenant’s use of the Tenant Security System and the installation, operation, maintenance and use thereof shall be at Tenant’s sole risk and Landlord shall have no liability whatsoever in connection therewith. Tenant hereby waives any and all Losses against Landlord for any damages arising from Tenant’s exercise of its rights under this Section. On or before the Termination Date, unless otherwise indicated in writing by Landlord, Tenant shall, at Landlord’s option, remove the Tenant Security System, at Tenant’s cost, in accordance with the terms of this Lease. If Tenant is required to remove the Tenant Security System from the Lease Premises at the expiration of the Lease then the Leased Premises shall be secured by the Landlord at the Landlord’s sole cost and expense.
ARTICLE X
REPAIRS, MAINTENANCE, AND LANDLORD’S ACCESS
Section 10.01. Repairs by Landlord.
Landlord covenants to keep, maintain, repair, replace, manage and operate the Common Areas of the Project in manner consistent with the Operating Standard. Subject to the terms of this Lease, Landlord agrees to maintain the roof, the exterior including plate glass and structural portions of the Building, and the central or base Building mechanical, electrical, HVAC and plumbing systems (specifically excluding any supplemental HVAC system, sprinkler system or any other system exclusively servicing the Leased Premises). The costs incurred by Landlord to perform such repairs, maintenance and replacements shall constitute Operating Costs and shall be reimbursed to Landlord in accordance with Article VI above, subject to the exclusions and limitations therein. Notwithstanding the foregoing, if any such repairs, maintenance or replacements are necessitated by Tenant’s Default under this Lease, or by any act or negligence of Tenant, its agents, employees, assigns, concessionaires, contractors, subcontractors or invitees, Tenant shall reimburse to Landlord the reasonable cost incurred in completing such repairs within thirty (30) days after demand therefor, which demand will be accompanied by a reasonable itemization and invoices to evidence the relevant charges.
Section 10.02. Repairs and Maintenance by Tenant.
A. Except for the performance of repairs and maintenance that are expressly the responsibility of Landlord under Section 10.01 above, Tenant shall at all times during the Term at Tenant’s sole cost and expense maintain the entire interior of the Leased Premises, including any Tenant Work, Leasehold Improvements, Alterations or other improvements therein, in a first-class, good, clean, and secure condition and promptly make all necessary repairs and replacements with materials and workmanship of the same character, kind and quality as the original, including, without limitation, the repair and replacement of appliances and equipment installed specifically for Tenant such as refrigerators, disposals, computer room, air conditioning, sinks and special plumbing fixtures, special fixtures and bulbs for those fixtures, and any non-standard outlets. Tenant shall not be required to maintain and repair any of the Building systems above the drop ceiling within the Leased Premises that are part of the Landlord’s maintenance and repair responsibility for the Building, or maintain, repair or replace any cables or lines running through the interior of the Leased Premises or duct located within the Leased Premises belonging to Landlord or any other tenant of the Building.
Section 10.03. Inspections, Access and Emergency Repairs by Landlord.
Upon reasonable prior Notice (not less than one (1) Business Day) and without materially adversely affecting Tenant’s business within the Leased Premises, Tenant shall permit Landlord to enter all parts of the Leased Premises to inspect the same and to perform its obligations under this Lease, provided no such entry will unreasonably interfere with access to, or use of the Leased Premises. In the event of an Emergency, Landlord may enter the Leased Premises at any time and make such inspection and repairs as Landlord deems necessary, at the risk and for the account of Tenant. The foregoing Landlord access rights shall remain subject to any restrictions described in Section 7.02 of this Lease except in the event of an Emergency.
Section 10.04. California Accessibility Compliance.
Landlord hereby discloses to Tenant, in accordance with California Civil Code Section 1938, and Tenant hereby acknowledges that the Leased Premises have not undergone an inspection by a Certified Access Specialist (“CASp”) to determine whether the Leased Premises meet all applicable construction-related accessibility standards pursuant to California Civil Code §55.51 et seq. As required by Section 1938(e) of the California Civil Code, Landlord hereby states as follows: “A Certified Access Specialist (CASp) can inspect the subject Leased Premises and determine whether the subject Leased Premises comply with all of the applicable construction-related accessibility standards under state law. Although state law does not require a CASp inspection of the subject Leased Premises, the commercial property owner or lessor may not prohibit the lessee or tenant from obtaining a CASp inspection of the subject Leased Premises for the occupancy or potential occupancy of the lessee or tenant, if requested by the lessee or tenant. The parties shall mutually agree on the arrangements for the time and manner of the CASp inspection, the payment of the fee for the CASp inspection, and the cost of making any repairs necessary to correct violations of construction-related accessibility standards within the Leased Premises.” In furtherance of the foregoing, and notwithstanding anything to the contrary contained in this Lease, Landlord and Tenant hereby agree as follows: (i) any CASp inspection requested by Tenant shall be conducted, at Tenant’s sole cost and expense, by a CASp approved in advance by Landlord, subject to Landlord’s rules and requirements; (ii) Landlord shall have no obligation to perform any work or repairs identified in any such CASp inspection, unless required to correct a defect in the improvements performed by Landlord in accordance with the Work Letter; (iii) to the extent that any work, repairs, replacements, or Alterations are recommended or required by the CASp (or otherwise required as a result of any such CASp inspection or anything done by Tenant in its use or occupancy of the Leased Premises), and do not arise solely from a failure of Landlord to complete the Leased Premises Delivery Condition, then, at Landlord’s election, Tenant shall be required to perform the same at Tenant’s sole cost and expense (subject to the terms and conditions of this Lease, including Landlord’s right to approve of detailed plans and specifications in advance); provided, however, Landlord shall have the option to perform any or all of the foregoing at Tenant’s sole cost and expense (with Tenant to reimburse Landlord upon demand for the costs and expenses incurred by Landlord in performing the same, provided Landlord will use contractors who charge market rates and Tenant will have reasonable approval rights over the cost of such alterations); and (iv) Tenant agrees to keep the information in the CASp Report confidential except as necessary for the Tenant to complete such Alterations.
ARTICLE XI
CASUALTY
Section 11.01. Fire or Other Casualty.
Tenant shall give prompt Notice to Landlord in case of fire or other casualty (“Casualty”) to the Leased Premises or the Building.
Section 11.02. Right to Terminate.
A. If (i) the Leased Premises are damaged to the extent of fifty percent (50%) or more of the cost of replacement thereof (i.e., more than fifty percent (50%) of the Floor Area of the Leased Premises immediately before such Casualty is rendered untenantable) and Landlord determines that such damage cannot be repaired to the condition required hereunder within two hundred seventy (270) days from the date of such occurrence; or (ii) during the last two (2) Lease Years or in any Partial Lease Year at the end of the Term, the Leased Premises are damaged to the extent of more than twenty-five percent (25%) of the cost of replacement thereof; then (x) Landlord may terminate this Lease by Notice to Tenant within sixty (60) days after the date of the Casualty, subject to Tenant’s rights hereunder to negate such Notice, provided Landlord’s Notice will include reasonable substantiation of Landlord’s cost of repair and the time required to repair. If Landlord so terminates this Lease and Tenant does not negate Landlord’s Notice as provided herein, then the Termination Date shall be the date set forth in the Notice to Tenant, which date shall not be more than ninety (90) days after the giving of said Notice. Rent shall be abated from the date of the Casualty. The “cost of replacement” shall be determined by the company or companies insuring Landlord against the Casualty, or, if there shall be no such
determination, by a qualified Person selected by Landlord to determine such “cost of replacement.”
B. If (i) at any time during the Term of this Lease, the Leased Premises or the Common Areas (to the extent such Common Areas are insured by Landlord and only if Tenant is unable to access the Leased Premises) are damaged and Landlord, in good faith, determines after consultation with Landlord’s architect that such damage cannot be repaired within three hundred and sixty five (365) days from the date of such occurrence, or (ii) during the last two (2) Lease Years or in any Partial Lease Year at the end of the Term either the Leased Premises are damaged to the extent of more than twenty-five percent (25%) of the cost of replacement thereof, or more than twenty five percent (25%) of the Floor Area of the Leased Premises immediately before such Casualty is rendered untenantable and Landlord, in good faith, determines that such damage cannot be repaired within one hundred eighty (180) days from the date of such occurrence, Tenant may, notwithstanding any right Landlord may have hereunder to elect that this Lease continue, terminate this Lease by giving Landlord sixty (60) days’ prior Notice given within sixty (60) days after the date of the Casualty. If Tenant so terminates this Lease then the Termination Date shall be the date set forth in the Notice to Landlord.
Section 11.03. Landlord’s Duty to Reconstruct.
Landlord shall repair the Leased Premises (excluding Tenant’s Property, the Leasehold Improvements (including Specialized Leasehold Improvements) and Tenant Work, which shall be Tenant’s obligation to repair, restore or replace) and the Common Areas to a substantially similar condition as existed prior to the Casualty except for modifications required by zoning and building codes and other applicable Laws that do not materially reduce Floor Area. Unless this Lease is terminated as provided in this Article XI, Landlord shall to the extent the insurance proceeds are received by Landlord therefor (or would have been available to Landlord had Landlord carried the insurance required to be carried pursuant to this Lease and complied with the terms thereof), proceed with reasonable diligence and promptness, given the nature of the damage to be repaired, to effect the Landlord’s restoration work, all subject to reasonable delays for insurance adjustments, zoning and building codes, and other applicable Laws then in effect, and Force Majeure. Under no circumstance shall Landlord’s restoration work include repairs and restoration of any Tenant Work, Leasehold Improvements (including Specialized Leasehold Improvements) or Tenant’s Property. Unless this Lease is terminated as provided in this Article XI, if and to the extent that any damaged Tenant Work, Leasehold Improvements (including Specialized Leasehold Improvements) or Tenant’s Property must be removed in order for Landlord to prosecute Landlord’s restoration work or to eliminate any hazard or nuisance resulting from such damaged Tenant Work, Leasehold Improvements (including Specialized Leasehold Improvements) or Tenant’s Property then, after Landlord gives Tenant access for that purpose, Tenant shall proceed with reasonable diligence, given the nature of the work, to remove such damaged Tenant Work, Leasehold Improvements (including Specialized Leasehold Improvements) and/or Tenant’s Property in accordance with applicable Laws, subject to reasonable delays for insurance adjustments and Force Majeure, unless removal is covered by Landlord’s insurance if Landlord removes such items, in which case Landlord shall remove such items.
Section 11.04. Tenant’s Duty to Reconstruct.
Unless this Lease is terminated as provided in this Article XI, in the event of a Casualty, Tenant shall, to the extent that insurance proceeds are available to Tenant therefor (or would have been available to Tenant had Tenant carried the insurance required to be carried pursuant to this Lease and complied with the terms thereof) restore the Tenant Work, Leasehold Improvements (including Specialized Leasehold Improvements) and Tenant’s Property to substantially the same condition existing prior to the Casualty except for modifications required by zoning and building codes and other applicable Laws. Tenant shall proceed with reasonable diligence, given the nature of the work, to effect such restoration in a good and workmanlike manner and in accordance with applicable Laws, subject to Force Majeure. If this Lease is terminated as provided in this Article XI, Tenant, no later than the expiration or sooner termination of this Lease, shall apply insurance proceeds to remove the damaged Tenant Work, Leasehold Improvements (including Specialized Leasehold Improvements) and Tenant’s Property unless the Building is to be razed and/or demolished, in which case Tenant shall have no obligation to remove any such improvements or personal property.
Section 11.05. Insurance Proceeds.
In the event of any damage to the Leased Premises or the Building (or any equipment, furniture, furnishings, trade fixtures or personal property therein) from any Casualty, Landlord shall be entitled to the full proceeds of any insurance coverage carried by Landlord in connection with such loss or damage, and Tenant shall be entitled to the full proceeds of any insurance coverage carried by Tenant in connection with such loss or damage; provided, however, in the event Tenant shall exercise any right to terminate this Lease as a result of a Casualty in accordance with this Article XI, then Tenant shall have the obligation to remit to Landlord, from (and to the extent of) the proceeds of any of Tenant’s insurance covering the Tenant Work, an amount equal to the unamortized cost of the Tenant Work (or other allowances afforded Tenant by Landlord hereunder with respect to construction of improvements to any portion of the damaged Leased Premises) if Landlord advises Tenant that Landlord intends in good faith to restore the Building to substantially the condition and substantially the same use existing prior to such loss or damage. Landlord restoration work to the Leased Premises shall be performed by Landlord in a timely manner and without unreasonable delay. Tenant delivery of any insurance proceeds shall be conditioned upon Landlord performance of restoration work (or portion thereof to which such delivery of proceeds applies) to the Leased Premises.
Section 11.06. Landlord Not Liable For Business Interruption.
Notwithstanding any provision in this Lease to the contrary, Landlord shall not be liable for any loss of business, inconvenience or annoyance arising from any repair, restoration or rehabilitation of any portion of the Leased Premises or the Building as a result of any damage from a Casualty; provided that the foregoing shall not be deemed to excuse or otherwise modify Landlord’s continuing obligation to perform Landlord’s restoration work, all as and to the extent otherwise provided in this Article XI, nor impair Tenant’s right to abatement of Rent as provided herein.
Section 11.07. Rent Abatement.
Whether or not Landlord or Tenant elect to terminate this Lease under this Article XI, while this Lease shall remain in full force after a Casualty, Tenant shall be entitled to a reduction of Minimum Rent and Tenant’s Share of Operating Costs and Taxes in proportion that the Floor Area of the Leased Premises not actually used by Tenant in good faith after the Casualty bears to the total Floor Area of the Leased Premises as reasonably determined by Tenant, during the period beginning with the date such Floor Area becomes untenantable and Tenant ceases to use such Floor Area for the normal conduct of its business and ending either thirty (30) days after substantial completion of Landlord’s restoration work or on the effective date of any termination, as applicable. For purposes of this Article XI, the term “Substantial Completion” shall have the same meaning as provided in Exhibit B with respect to substantial completion of the Landlord’s restoration work. If fifty percent (50%) or more of the Leased Premises are damaged and Tenant determines in its sole reasonable discretion that it is not in its best interest to operate from the remainder of the Leased Premises, and Tenant in fact does not operate from the Leased Premises, then all Rent shall be abated as to the entire Lease Premises as of the date of the Casualty (or such later date as Tenant ceases operations in the Leased Premises) until the delivery of the Leased Premises to the Tenant with Landlord’s restoration obligations completed.
Section 11.08. Casualty Prior To Term Commencement Date.
The terms and provisions of this Article XI shall apply to any damage to the Building caused as a result of a Casualty, regardless of whether such damage occurs prior to or after the Term Commencement Date.
Section 11.09. Waiver.
This Article XI shall be Tenant’s sole and exclusive remedy in the event of damage or destruction to the Leased Premises or the Building. As a material inducement to Landlord entering into this Lease, Tenant hereby waives any rights it may have under Sections 1932, 1933(4), 1941 or 1942 of the Civil Code of California with respect to any destruction of the Leased Premises, Landlord’s obligation for tenantability of the Leased Premises and Tenant’s
right to make repairs and deduct the expenses of such repairs, or under any similar law, statute or ordinance now or hereafter in effect.
ARTICLE XII
CONDEMNATION
Section 12.01. Taking of Leased Premises.
A. If more than twenty-five percent (25%) of the Floor Area of the Leased Premises shall be appropriated or taken under the power of eminent domain, or conveyance shall be made in anticipation or in lieu thereof (“Taking”), either party may terminate this Lease as of the effective date of the Taking by giving Notice to the other party of such election within thirty (30) days prior to the date of such Taking.
B. If there is a Taking of a portion of the Leased Premises and this Lease is not terminated pursuant to Section 12.01.A, above, then (i) as of the effective date of the Taking, this Lease shall terminate only with respect to the portion of the Leased Premises taken; (ii) after the effective date of the Taking, the Rent shall be reduced by multiplying the same by a fraction, the numerator of which shall be the Floor Area not useable by Tenant after the Taking and the denominator of which shall be the Floor Area of the Leased Premises immediately prior to the Taking; and (iii) as soon as reasonably possible after the effective date of the Taking, Landlord shall, to the extent feasible, restore the remaining portion of the Leased Premises to a complete unit of a similar condition as existed prior to any work performed by Tenant, provided, however, Landlord shall not be required to expend more on such alteration or restoration work than the condemnation award received and retained by Landlord for the Leased Premises.
Section 12.02. Taking of Building.
If there is a Taking of any portion of the Building so as to render, in Landlord’s reasonable judgment, the remainder unsuitable for use as an office building, Landlord shall have the right to terminate this Lease upon thirty (30) days’ Notice to Tenant. Provided Tenant is not then in Default, Tenant shall receive a proportionate refund from Landlord of any Rent paid in advance by Tenant.
Section 12.03. Condemnation Award.
All compensation awarded for a Taking of any part of the Leased Premises (including the Leasehold Improvements) or a Taking of any other part of the Building shall belong to Landlord. Tenant hereby assigns to Landlord all of its right, title and interest in any such award. Tenant shall have the right to collect and pursue any separate award as may be available under local procedure for moving expenses or Tenant’s Property and loss of goodwill, so long as such award does not reduce the award otherwise belonging to Landlord as aforesaid.
Section 12.04. Waiver of CCP § 1265.130.
Each party waives the provisions of California Civil Code Procedure Section 1265.130 allowing either party to petition the superior court to terminate this Lease as a result of a partial taking. The rights contained in this Article XII shall be Tenant’s sole and exclusive remedy in the event of a Taking. Tenant waives the provisions of Sections 1265.130 and 1265.150 of the California Code of Civil Procedure and the provisions of any successor or other law of like import.
ARTICLE XIII
PARKING GARAGE; PARKING RIGHTS & BUILDING AMENITIES
Section 13.01. Parking Rights.
Provided that Tenant is not in Default under this Lease, Tenant shall have the right to use the number of parking spaces on the Tower Parking Garage and in the Common Parking Garage set forth in Section 1.01(L), above, which right shall include (a) the non-exclusive right to use up to 0.8 parking spaces per 1,000 square feet of Floor Area (i.e., initially, 18 spaces) in the Tower Parking Garage; and (b) the non-exclusive right to use 2.2 parking spaces per 1,000 square feet of Floor Area (i.e., initially, 51 spaces) in the Common Parking Garage; provided, however, that
Tenant acknowledges and agrees that (i) the parking spaces in the Common Parking Garage may be made available to the public after 5:00 p.m. Pacific Time; and (ii) Landlord shall have the right to designate up to one hundred (100) of the parking spaces in the Common Parking Garage as reserved exclusive parking for Ground Lessor and the patrons of the Winchester Mystery House (if applicable, the “WMH Reserved Parking”) and to ratably designate parking spaces for use by other tenants of the Building in the Tower Parking Garage and Common Parking Garage. If Tenant or any Permitted Transferee or assignee or sublessee of Tenant approved by Landlord no longer leases the entire Leased Premises originally leased hereunder, then the number of parking spaces allocated to Tenant shall be proportionately reduced based on a fraction the numerator of which is the Floor Area then leased by Tenant and the denominator of which is the Floor Area of the entire Leased Premises. Tenant acknowledges and agrees that (1) neither Tenant nor its employees, business invitees, and permitted sublessees and assignees shall park in the WMH Reserved Parking; (2) the parking spaces in the Tower Parking Garage and in the Common Parking Garage shall be used solely for the parking of passenger vehicles by Tenant and its employees, business invitees, and permitted sublessees and assignees hereunder only; (3) Tenant’s parking passes shall not be assigned or transferred separate and apart from this Lease, or any sublease or license hereunder, and upon the expiration or earlier termination of this Lease, Tenant’s parking rights (including its right to the parking passes) shall immediately terminate; (4) with the exception of the WMH Reserved Parking, if applicable, the parking spaces in the Common Parking Garage shall be available for use, on a non-exclusive, first come/first served basis; and (5) with the exception of the parking spaces designated for exclusive use by tenants of the Building, the parking spaces in the Tower Parking Garage shall be available for use on a non-exclusive, first come/first served basis. Landlord may reasonably regulate the access to the Tower Parking Garage and Common Parking Garage, including, without limitation, installing such equipment, including gates and card key access, as may be required to regulate access thereto, provided the cost of such gates and access control systems shall be included in Operating Costs. Landlord will use commercially reasonable efforts to enforce Tenant’s parking rights hereunder in a manner consistent with Landlord’s enforcement efforts throughout the balance of the Project. Tenant acknowledges and agrees that (A) those areas identified on Exhibit K attached hereto (the “Ground Lessor Retained Property”) are for the sole use of Ground Lessor, its affiliates and the patrons of the Winchester Mystery House; (B) neither Tenant nor its employees, business invitees, permitted sublessees or assignees shall park on the Ground Lessor Retained Property or use either side of Olsen Drive for any use other than permitted ingress or egress; and (C) Ground Lessor has the right to institute parking controls on the Ground Lessor Retained Property, including towing of offending vehicles, if Tenant or any employees, business invitees, permitted sublessees or assignees park or otherwise use the Ground Lessor Retained Property or use either side of Olsen Drive for any use other than permitted ingress or egress.
Section 13.02. Parking Rules and Conditions.
Use of the Tower Parking Garage and any other parking facilities of the Project by Tenant, its employees, business invitees, and permitted subleesses and assignees is further subject to the reasonable non-discriminatory parking rules and regulations of Landlord as may be promulgated or amended by Landlord from time to time in Landlord’s reasonable discretion that are not inconsistent with the foregoing.
ARTICLE XIV
SUBORDINATION AND ATTORNMENT
Section 14.01. Subordination.
Tenant’s rights under this Lease are subordinate to (i) all present and future ground or underlying leases affecting all or any part of the Building including, without limitation, the Ground Lease, and (ii) any easement, license, mortgage, deed of trust or other security instrument now or hereafter affecting the Building (those documents referred to in (i) and (ii) above being collectively referred to as a “Mortgage” and the Person or Persons having the benefit of same being collectively referred to as a “Mortgagee”). Tenant’s subordination provided in this Section 14.01 is self-operative and no further instrument of subordination shall be required; provided, however, (a) any such subordination is conditioned on the Mortgagee’s agreement not to disturb Tenant in possession of the Leased Premises after a foreclosure of any Mortgage for so long as there shall be no Default under the Lease and (b) if requested by Tenant,
Landlord agrees to use commercially reasonable efforts to obtain a commercially reasonable subordination, non-disturbance and attornment agreement from any future Mortgagee recognizing Tenant’s rights under this Lease; provided, however, that Landlord’s inability to obtain such an agreement shall neither constitute a default herein or release Tenant from its obligations hereunder. Except for the Ground Lease, Landlord represents and warrants that, as of the Effective Date of this Lease, the Leased Premises is not encumbered by any Mortgage or other interest superior to that of Tenant, the foreclosure or termination of which could give rise to a termination of this Lease.
Section 14.02. Attornment.
If any Person succeeds to all or part of Landlord’s interest in the Leased Premises, whether by purchase, foreclosure, deed in lieu of foreclosure, power of sale, termination of lease or otherwise, Tenant shall, without charge, attorn to such successor-in-interest upon request from Landlord, provided such successor agrees to recognize this Lease for so long as there is no Default beyond applicable notice and cure period hereunder.
Section 14.03. Estoppel Certificate.
Each of Landlord and Tenant, within twenty (20) days after receiving Notice from, and without charge or cost to, the other, shall certify by written instrument to the other or any other Person designated by Landlord or Tenant: (i) that this Lease is in full force and effect and unmodified (or if modified, stating the modification); (ii) the dates, if any, to which each component of the Rent due under this Lease has been paid; (iii) whether Landlord or Tenant, to the knowledge of the certifying party, has failed to perform any covenant, term or condition under this Lease, and the nature of Landlord’s or Tenant’s failure, if any; and (iv) such other relevant information as Landlord or Tenant may reasonably request.
Section 14.04. Quiet Enjoyment.
Landlord covenants that it has full right, power and authority to enter into this Lease and that Tenant, upon performing all of Tenant’s obligations under this Lease and timely paying all Rent, shall, subject to the terms of this Lease, the Ground Lease and all matters of record affecting the Leased Premises, peaceably and quietly have, hold and enjoy the Leased Premises during the Term without hindrance, ejection or molestation by any Person lawfully claiming by, through or under Landlord. The foregoing rights of Tenant in this Section 14.04 shall include, to the extent applicable, such rights provided by California Civil Code Section 1927.-2023 where necessary to enforcement this covenant.
ARTICLE XV
ASSIGNMENT AND SUBLETTING
Section 15.01. Landlord’s Consent Required.
A. Tenant, shall not voluntarily or involuntarily, by operation of law or otherwise: (i) transfer, assign, mortgage, encumber, pledge, hypothecate, or assign all or any of its interest in this Lease; (ii) sublet or permit the Leased Premises, or any part thereof, to be used by others, including, but not limited to, concessionaires or licensees; (iii) issue new stock (or partnership shares or membership interests), create additional classes of stock (or partnership shares or membership interests), or sell, assign, hypothecate or otherwise transfer the outstanding voting stock (or partnership shares or membership interests) so as to result in a change in the present control of Tenant, provided, however, that this subsection (iii) shall not be applicable to Tenant so long as it is a publicly owned corporation whose outstanding voting stock is listed on a national securities exchange (as defined in the Securities Exchange Act of 1934, as amended) or is traded actively in the over-the-counter market; without the prior consent of Landlord, in each instance, which consent Landlord may not unreasonably withhold, which reasonableness is subject to the provisions set forth in Section 15.01.D and subject to Section 15.03, below. All of the foregoing transactions shall be referred to collectively or singularly as a “Transfer”, and the Person to whom Tenant’s interest is transferred shall be referred to as a “Transferee”.
B. Any Transfer requiring consent hereunder and made without Landlord’s consent shall not be binding upon Landlord, shall confer no rights upon any third Person, and shall, without Notice or grace period of any kind, constitute an immediate Default by Tenant under this Lease.
Acceptance by Landlord of Rent following any Transfer shall not be deemed to be a consent by Landlord to any such Transfer, acceptance of the Transferee as a tenant, release of Tenant from the performance of any covenants herein, or waiver by Landlord of any remedy of Landlord under this Lease, although amounts received shall be credited by Landlord against Tenant’s Rent obligations. Consent by Landlord to any one Transfer shall not be a waiver of the requirement for consent to any other Transfer. No reference in this Lease to assignees, concessionaires, subtenants or licensees shall be deemed to be a consent by Landlord to occupancy of the Leased Premises by any such assignee, concessionaire, subtenant or licensee. Nothing herein shall require Tenant to sublease all or any portion of the Leased Premise or otherwise transfer its interest to Landlord as a condition of permitting occupancy of the Leased Premises by Transferee where Tenant shall remain liable for performance under this Lease.
C. Landlord’s consent to any Transfer shall not operate as a waiver of, or release of Tenant from, Tenant’s covenants and obligations hereunder; nor shall the collection or acceptance of Rent or other performance from any Transferee have such effect. Rather, Tenant shall remain fully and primarily liable and obligated under this Lease for the entire Term in the event of any Transfer, and in the event of a Default by the Transferee, Landlord shall be free to pursue Tenant, the Transferee, or both, without prior Notice or demand to either.
D. Landlord reserves the right to withhold its consent to a Transfer if any of the following conditions are applicable and it shall be deemed reasonable for Landlord to deny such consent if any of the following conditions are applicable:
(i) Tenant is in Default of this Lease;
(ii) The Net Worth (as defined below) of the Transferee immediately prior to the Transfer is insufficient to fulfill the financial obligations arising under the Lease or the relevant sublease, as reasonably determined by Landlord, based on financial information provided by Tenant or the Transferee taking in to consideration any information provided by any accountant of either party;
(iii) The inability of Transferee to continue to operate the business conducted in the Leased Premises for general office purposes or the other purposes permitted in this Lease; or
(iv) Transferee is an existing tenant in the Project and Landlord has sufficient available space in the Building not subject to Lease to satisfy such proposed subtenant’s space requirements.
(v) The Transferee would be any of the following parties (A) Ernst & Young LLP, (B) Deloitte and Touche LLP, (C) KPMG LLP, (D) BDO Seidman LLP, (E) Grant Thornton LLP, (F) Accenture, (G) McKinsey & Company, (H) Boston Consulting Group (BCG), (I) Bain & Company, (J) Baker Tilly, (K) Schneider Downs, and (L) Moss Adams, or any entity resulting from a merger or consolidation of any of the forgoing entities or any entity primarily engaged in the delivery of “top-tier” accounting, tax, advisory or related business consulting services; or
(vi) The Transferee would be any of the following parties (A) Huawei Technologies Co., Ltd. (“Huawei”), ZTE Corporation (“ZTE”) or any of their respective affiliates or subsidiaries.
E. Notwithstanding the foregoing, the following conditions shall apply to any proposed Transfer:
(i) Each and every covenant, condition, or obligation imposed upon Tenant by this Lease and each and every right, remedy, or benefit afforded Landlord by this Lease shall not be impaired or diminished as a result of such Transfer.
(ii) The Tenant to which the Leased Premises were initially leased shall continue to remain liable under this Lease for the performances of all terms, including, but not limited to, payment of Rent due under this Lease.
(iii) The Transferee must expressly assume in a written instrument delivered and reasonably acceptable by Landlord all the obligations of Tenant under the Lease.
(iv) Landlord shall furnish the appropriate documentation in connection with any such Transfer and be entitled to a reasonable administrative fee therefor, as set forth in Section 17.03.
(v) At the time Tenant requests approval of the Transfer, Landlord shall receive the following information in connection with such Transfer: the name of the proposed Transferee, a copy of the financial statement of the proposed Transferee and any guarantor, information regarding the proposed Transferee’s business history and experience and the proposed Transferee’s business plan and projections for the Leased Premises.
(vi) If Landlord consents to a Transfer, as a condition thereto, Tenant shall pay to Landlord monthly, as Additional Rent, following receipt of the same from Transferee, fifty percent (50%) of any Transfer Premium within thirty (30) days of receipt. The term “Transfer Premium” shall mean all rent, additional rent and other consideration payable by such Transferee which either initially or over the term of the Transfer exceeds the Rent or pro rata portion of the Rent, as the case may be, for the applicable space in the case of a subletting, or any amount allocated in writing to the value of the leasehold in the Building, in the case of an assignment, and (a) the actual third party brokers’ commissions paid by Tenant, (b) reasonable attorneys’ fees incurred by Tenant to effect such Transfer, (c) reasonable tenant improvement costs incurred by Tenant to effect such Transfer, and (d) reasonable ”free” rent incentives. “Transfer Premium” shall also include, but not be limited to, key money and bonus money paid by Transferee to Tenant in connection with such Transfer. Notwithstanding anything herein to the contrary, this Section 15.01.E(vi) shall not apply to, and no Transfer Premium shall be payable in connection with, any Permitted Transfer (as defined below).
(vii) In the case of a subletting of less than all of the Leased Premises, Tenant, at is sole cost and expense, shall be solely responsible for constructing any and all necessary demising improvements (collectively, the “Demising Improvements”); provided, however, that (A) such Demising Improvements shall be constructed in accordance with this Lease, and (B) notwithstanding anything to the contrary contained herein, Tenant shall remove the Demising Improvements and restore the Leased Premises to condition in which it existed prior to the construction thereof upon the earlier of the termination or expiration of the sublease of the Term. The foregoing shall not obligate Tenant to construct Demising Improvements in the event of a proposed sublease of space less than the Leased Premises where Tenant and proposed Transferee reach sublease terms acceptable to the parties on how the Leased Premises space is to be allocated and used by Transferee.
Landlord shall approve or disapprove of such proposed Transfer within fifteen (15) Business Days following receipt of Tenant’s Notice of its intent to Transfer the Lease together with the required information set forth above.
Section 15.02. Tenant Remedies.
Notwithstanding anything to the contrary in this Lease, if Tenant claims that Landlord has unreasonably withheld, conditioned, or delayed its consent under this Article XV or otherwise has breached or acted unreasonably under this Article XV, Tenant’s sole remedies shall be declaratory judgment and an injunction for the relief sought, or an action for compensatory monetary damages, and Tenant hereby waives all other remedies, including, without limitation, any right provided under California Civil Code Section 1995.310 or other applicable Laws to terminate this Lease.
Section 15.03. [Intentionally omitted.]
Section 15.04. Landlord Consent Not Required.
Notwithstanding anything to the contrary contained in this Article XV, as long as no Default by Tenant has then occurred and is continuing, Tenant may assign this Lease or sublet any portion of the Leased Premises (hereinafter collectively referred to as a “Permitted Transfer”) to (i) an affiliate of Tenant (an entity which is controlled by, controls, or is under common control with, Tenant), (ii) any successor entity to Tenant by way of merger, consolidation or other non-bankruptcy corporate reorganization, (iii) an entity which acquires all or substantially all of Tenant’s assets or stock and continuing Tenant’s business operations at or from the Leased Premises, or (iv) any entity resulting from a spin-off or roll-up of any former,
current and/or future division or group of Tenant (collectively, “Permitted Transferees,” and, individually, a “Permitted Transferee”); provided that (a) at least ten (10) Business Days prior to the Transfer (or three (3) Business Days after the Transfer if prior notice of such Transfer is prevented by applicable Laws or confidentiality restrictions), Tenant notifies Landlord of such Transfer, and supplies Landlord with any documents or information reasonably requested by Landlord regarding such Transfer or Permitted Transferee, including, but not limited to, copies of any sublease or instrument of assignment and copies of documents establishing to the reasonable satisfaction of Landlord that the transaction in question is one permitted under this Section 15.03; (b) if the transaction is an assignment, or acquisition of all or substantially all of the assets of Tenant, promptly after the Permitted Transfer, Tenant furnishes Landlord with a written document executed by the proposed Permitted Transferee in which, in the case of an assignment, such entity assumes all of Tenant’s obligations under this Lease thereafter to be performed, and, in the case of a sublease, such entity agrees to sublease the applicable space subject to this Lease; (c) in the case of an assignment pursuant to clauses (ii), (iii) or (iv) above, the successor entity must have a net worth (computed in accordance with generally accepted accounting principles, except that intangible assets such as goodwill, patents, copyrights, and trademarks shall be excluded in the calculation (“Net Worth”)) at the time of the Transfer of at least One Hundred Million and 00/100 Dollars ($100,000,000.00) together with a debt to market capitalization ratio of twenty five percent (25%) or less; (d) any such proposed Transfer is not, whether in a single transaction or in a series of transactions, entered into as a subterfuge to evade the obligations and restrictions relating to Transfers set forth in this Article 15; and (e) the Tenant to which the Leased Premises were initially leased shall continue to remain liable under this Lease for the performances of all terms, including, but not limited to, payment of Rent due under this Lease. “Control,” as used in this Section 15.03, shall mean the ownership, directly or indirectly, of at least fifty-one percent (51%) of the voting securities of, or possession of the right to vote, in the ordinary direction of its affairs, of at least fifty-one percent (51%) of the voting interest in, any person or entity.
ARTICLE XVI
DEFAULT AND REMEDIES
Section 16.01. Default.
Each of the following events shall constitute a default (“Default”) by Tenant under this Lease: (i) Tenant’s failure to pay, or make available as required by this Lease, any Rent (including, without limitation, the Prepaid Minimum Rent and Security Deposit) by the date such Rent is due and such failure is not cured within five (5) Business Days following receipt of Notice from the Landlord; (ii) if Tenant breaches or fails to observe or perform any term, condition or covenant of this Lease, other than those involving the payment of Rent or the timely delivery by Tenant of an estoppel certificate, documents in connection with a Transfer or insurance certificates, and such breach or failure is not cured within thirty (30) days after Tenant’s receipt of Notice thereof, unless such condition cannot reasonably be cured within such thirty (30) days, in which case Tenant must commence such cure within said thirty (30) days and diligently pursue said cure to its completion (provided, however, if such breach or failure creates a hazard, public nuisance or dangerous situation, said thirty (30) day grace period shall be reduced to forty-eight (48) hours after Tenant’s receipt of Notice); (iii) Tenant’s failure to timely deliver an estoppel certificate, a document in connection with a Transfer or any insurance certificate and such failure continues for ten (10) Business Days after Tenant’s receipt of Notice thereof; or (iv) if Tenant fails to carry and maintain the insurance required by this Lease and such failure continues for ten (10) Business Days after Tenant’s receipt of Notice thereof. Notwithstanding the preceding sentence, if Landlord shall give Notice of two (2) such monetary Defaults within any twelve (12) month period, then thereafter, Tenant shall be in Default under this Lease if it fails to pay any Rent within ten (10) days after the same shall be due and payable, without the necessity of Notice.
Section 16.02. Remedies and Damages.
A. If a Default described in Section 16.01, above, occurs, Landlord shall have all the rights and remedies provided in this Section 16.02, in addition to all other rights and remedies available under this Lease or provided at law or in equity.
B. Landlord may, upon Notice to Tenant, terminate this Lease, or terminate Tenant’s right to possession without terminating this Lease (as Landlord may elect). If this Lease or Tenant’s right to possession under this Lease are at any time terminated under this Section 16.02 or otherwise, Tenant shall immediately surrender and deliver the Leased Premises peaceably to Landlord. If Tenant fails to do so, Landlord shall be entitled to re-enter, without process and without Notice (any Notice to quit or of re-entry being hereby expressly waived), using such force as may be necessary, and, alternatively, Landlord shall have the benefit of all provisions of law respecting the speedy recovery of possession of the Leased Premises (whether by summary proceedings or otherwise).
C. Landlord may also perform, on behalf and at the expense of Tenant, any obligation of Tenant under this Lease which Tenant fails to perform, the cost of which (together with an administrative fee of ten percent (10%) to cover Landlord’s overhead in connection therewith) shall be paid by Tenant to Landlord within five (5) Business Days after demand therefor. In performing any obligations of Tenant, Landlord shall incur no liability for any loss or damage that may accrue to Tenant, the Leased Premises or Tenant’s Property by reason thereof, except if caused by Landlord’s willful and malicious act. The performance by Landlord of any such obligation shall not constitute a release or waiver of any of Tenant’s obligations under this Lease.
D. Upon termination of this Lease or of Tenant’s right to possession under this Lease, Landlord may at any time and from time to time relet all or any part of the Leased Premises for the account of Tenant or otherwise, at such rentals and upon such terms and conditions as Landlord shall deem appropriate. Landlord shall receive and collect the rents therefor, applying the same first to the payment of such expenses as Landlord may incur in recovering possession of the Leased Premises, including legal expenses and attorneys’ fees, in placing the Leased Premises in good order and condition and in preparing or altering the same for re-rental; second, to the payment of such expenses, commissions and charges as may be incurred by or on behalf of Landlord in connection with the reletting of the Leased Premises; and third, to the fulfillment of the covenants of Tenant under this Lease, including the various covenants to pay Rent. Any such reletting may be for such term(s) as Landlord elects. Thereafter, Tenant shall pay Landlord until the end of the Term of this Lease the equivalent of the amount of all the Rent and all other sums required to be paid by Tenant, less the net avails of such reletting, if any, on the dates such Rent and other sums above specified are due. Any reletting by Landlord shall not be construed as an election by Landlord to terminate this Lease unless Notice of such intention is given by Landlord to Tenant. Notwithstanding any reletting without termination of this Lease, Landlord may at any time thereafter elect to terminate this Lease. In any event, Landlord shall not be liable for, nor shall Tenant’s obligations hereunder be diminished by reason of, any failure by Landlord to relet the Leased Premises or any failure by Landlord to collect any sums due upon such reletting.
E. In addition to all other remedies provided in this Lease and at law, if there occurs a Default by Tenant, in addition to any other remedies available to Landlord at law or in equity, Landlord may terminate this Lease and all rights of Tenant hereunder by Notice to Tenant, in which event Tenant shall immediately surrender the Leased Premises to Landlord. In the event that Landlord shall elect to so terminate this Lease, then Landlord may recover from Tenant:
(i) The worth at the time of award of any unpaid rent which had been earned at the time of such termination; plus
(ii) The worth at the time of award of the amount by which the unpaid rent which would have been earned after termination until the time of award exceeds the amount of such rental loss that Tenant proves could have been reasonably avoided; plus
(iii) The worth at the time of award of the amount by which the unpaid rent for the balance of the Lease Term after the time of award exceeds the amount of such rental loss that Tenant proves could have been reasonably avoided; plus
(iv) Any other amount necessary to compensate Landlord for all the detriment proximately caused by Tenant’s failure to perform its obligations under this Lease or which in the ordinary course of events would likely result therefrom, specifically including, but not limited to, brokerage commissions and advertising expenses incurred, expenses of remodeling the Leased Premises or any portion thereof for a new tenant, whether for the same or a different
use, and any special concessions made to obtain a new tenant, and the unamortized balance of such reimbursements paid by Landlord to Tenant pursuant to Section 17.31 below; and
(v) At Landlord’s election, such other amounts in addition to or in lieu of the foregoing as may be permitted from time to time by applicable law.
As used in subsections (i) and (ii) above, the “worth at the time of award” is computed by allowing interest at the Interest Rate. As used in subsection (iii) above, the “worth at the time of award” is computed by discounting such amount at the discount rate of the Federal Reserve Bank of San Francisco at the time of award plus one percent (1%).
Efforts by Landlord to mitigate damages caused by Tenant’s Default or breach of this Lease shall not waive Landlord’s right to recover damages under this Section. If termination of this Lease is obtained through an unlawful detainer action, Landlord shall have the right to recover in such proceeding the unpaid rent and damages as are recoverable thereon, or Landlord may reserve the right to recover all or any part thereof in a separate suit for such rent and/or damages.
F. At Landlord’s option and in addition to all other remedies provided in this Lease and at law, if there occurs a Default, Landlord may elect to continue this Lease and Tenant’s right to possession in effect under California Civil Code Section 1951.4 after Tenant’s breach or Default and recover the rent as it becomes due. Landlord and Tenant agree that the limitations on assignment and subletting set forth in Article XV in this Lease are reasonable. Acts of maintenance or preservation, efforts to relet the Leased Premises or the appointment of a receiver to protect Landlord’s interest under this Lease, shall not constitute a termination of Tenant’s right to possession.
Section 16.03. Remedies Cumulative.
No reference to any specific right or remedy in this Lease shall preclude Landlord from exercising any other right, from having any other remedy, or from maintaining any action to which it may otherwise be entitled under this Lease, at law or in equity.
Section 16.04. Waiver.
A. Landlord shall not be deemed to have waived any provision of this Lease, or the breach of any such provision, unless specifically waived by Landlord in a writing executed by an authorized officer of Landlord. No waiver of a breach shall be deemed to be a waiver of any subsequent breach of the same provision, or of the provision itself, or of any other provision.
B. Tenant hereby expressly waives any and all rights of redemption and any and all rights to relief from forfeiture which would otherwise be granted or available to Tenant under any present or future statutes, rules or case law.
C. IN ANY LITIGATION (WHETHER OR NOT ARISING OUT OF OR RELATING TO THE LEASE) IN WHICH LANDLORD AND TENANT SHALL BE ADVERSE PARTIES, BOTH LANDLORD AND TENANT KNOWINGLY, VOLUNTARILY, INTENTIONALLY AND TO THE FULLEST EXTENT PERMITTED BY LAW, WAIVE THEIR RESPECTIVE RIGHTS TO TRIAL BY JURY.
D. Notwithstanding anything to the contrary contained in this Lease, Tenant waives the right to make repairs at Landlord’s expense under Sections 1941 and 1942 of the California Civil Code and all other Laws now or hereafter in effect. Furthermore, Tenant hereby waives the provisions of California Civil Code Sections 1932(2) and 1933(4) and the provisions of any successor or other law of like import.
ARTICLE XVII
MISCELLANEOUS PROVISIONS
Section 17.01. Notices.
A. Whenever any demand, request, approval, consent or Notice (singularly and collectively, “Notice”) shall or may be given by one party to the other, such Notice shall be in
writing and addressed to the parties at their respective addresses as set forth in Section 1.01.I, above, and served by (i) hand, (ii) a nationally recognized overnight express courier, or (iii) registered or certified mail return receipt requested. The date the Notice is received shall be the date of service of Notice. If an addressee refuses to accept delivery, however, then Notice shall be deemed to have been served on either (i) the date hand delivery is refused, (ii) the next business day after the Notice was sent in the case of attempted delivery by overnight courier, or (iii) five (5) Business Days after mailing the Notice in the case of registered or certified mail. Either party may, at any time, change its Notice address by giving the other party Notice, in accordance with the above, stating the change and setting forth the new address.
B. If any Mortgagee shall notify Tenant that it is the holder of a Mortgage affecting the Leased Premises, no Notice thereafter sent by Tenant to Landlord shall be effective unless and until a copy of the same shall also be sent to such Mortgagee, in the manner prescribed in this Section 17.01, to the address as such Mortgagee shall designate.
Section 17.02. Recording.
Neither this Lease nor a memorandum thereof shall be recorded without the prior written consent of Landlord.
Section 17.03. Interest and Administrative Costs.
A. If (i) Tenant fails to make any payment under this Lease when due, or (ii) Landlord incurs any costs or expenses in performing any obligation of Tenant or as a result of Tenant’s Default under this Lease, then Tenant shall pay, within five (5) Business Days after demand, such costs and/or expenses plus Interest from the date such payment was due or from the date Landlord incurs such costs or expenses relating to the performance of any such obligation or Tenant’s Default.
B. If (i) Landlord fails to make any payment under this Lease when due, or (ii) Tenant incurs any costs or expenses in performing any obligation of Landlord or as a result of Landlord’s Default under this Lease, then Landlord shall pay, within five (5) Business Days after demand, such costs and/or expenses plus Interest from the date such payment was due or from the date Tenant incurs such costs or expenses relating to the performance of any such obligation or Landlord’s Default.
C. If Tenant requests that Landlord review and/or execute any documents in connection with any Transfer, Tenant shall pay to Landlord, upon demand, as an administrative fee for the review and/or execution thereof, all costs and expenses, including reasonable attorney’s fees (which shall include the cost of time expended by in-house counsel) incurred by Landlord and/or Landlord’s agent.
Section 17.04. Legal Expenses.
If Landlord or Tenant institutes any suit against the other in connection with the enforcement of their respective rights under this Lease, the violation of any term of this Lease, the declaration of their rights hereunder, or the protection of Landlord’s or Tenant’s interests under this Lease, the non-prevailing party shall reimburse the prevailing party for its reasonable expenses incurred as a result thereof including court costs, consultant and witness fees and expenses and attorneys’ fees within five (5) Business Days after demand therefor. Notwithstanding the foregoing, if Landlord files any legal action for collection of Rent or any eviction proceedings, whether summary or otherwise, for the non-payment of Rent, and Tenant pays such Rent prior to the rendering of any judgment, the Landlord shall be entitled to collect, and Tenant shall pay, all court filing fees and the reasonable fees of Landlord’s attorneys. Notwithstanding the entry of any judgment related to this Lease, this Section 17.04 shall not be merged with such judgment, but shall survive the entry of such judgment and shall continue to be binding and conclusive on the parties for all time. Post-judgment attorneys’ fees and costs related to the enforcement of any such judgment shall be recoverable in the same or a separate action.
Section 17.05. Successors and Assigns.
This Lease and the covenants and conditions herein contained shall inure to the benefit of and be binding upon Landlord and Tenant, and their respective permitted successors and assigns.
Upon any sale or other transfer by Landlord of its interest in the Leased Premises, Landlord shall be relieved of any obligations under this Lease occurring for the period after such sale or other transfer.
Section 17.06. Limitation on Right of Recovery Against Landlord; Transfer of Landlord’s Interest.
No shareholder, member, trustee, partner, director, officer, employee, representative or agent of Landlord shall be personally liable in respect of any covenant, condition or provision of this Lease. If Landlord breaches or defaults in any of its obligations in this Lease, Tenant shall look solely to the equity of the Landlord in the Building and Project and any insurance proceeds arising from the insurance required hereunder for satisfaction of Tenant’s remedies. Further, Tenant acknowledges that Landlord has the right to transfer all or any portion of its interest in the Leased Premises, Building and/or this Lease. Tenant expressly agrees that in the event of any such transfer, Landlord shall automatically be released from all liability under this Lease arising after the date of any such transfer and Tenant agrees to look solely to such transferee for the performance of Landlord’s obligations hereunder after the date of such transfer, except as provided in Section 17.07, below, provided that successor Landlord has assumed the obligations as landlord under the Lease. Any transferee shall agree to perform Landlord’s obligations hereunder arising or accruing after the date of such transfer, including, without limitation, the right to a return of the Security Deposit. Tenant’s foregoing release of Landlord upon a transfer of this Lease shall not apply to Landlord’s breach of the Lease terms and conditions during Landlord’s period of ownership prior to the date of transfer except in the instance that successor landlord agrees in writing to assume the obligations of landlord under the Lease. Landlord shall transfer the Security Deposit to the transferee in the event of such transfer. A ground lease or similar long term lease by Landlord of the entire Building, of which the Leased Premises are a part, shall be deemed a sale within the meaning of this Section 17.06. Tenant agrees to attorn to such new owner provided such new owner does not disturb Tenant’s use, occupancy or quiet enjoyment of the Leased Premises so long as Tenant is not in Default of this Lease. In no event shall Landlord be responsible for consequential damages (e.g., lost profits), punitive damages or any damages other than direct, actual and compensatory damages incurred by Tenant.
Section 17.07. Security Deposit; Letter of Credit.
A. Security Deposit. Unless Tenant elects to deliver a Letter of Credit pursuant to Section 17.07.B, below, contemporaneously with Tenant’s execution and delivery of this Lease, Tenant shall deposit with Landlord, for Landlord’s general account, the Security Deposit set forth in Section 1.01.H hereof as security for the performance of each and every term, covenant, agreement and condition of this Lease to be performed by Tenant. Landlord may use, apply on Tenant’s behalf or retain (without liability for interest) during the Term all or any part of the Security Deposit to the extent required for the payment of any Rent which may be owed hereunder which is not paid when due, or for any sum which Landlord may expend to cure any Default of Tenant. In this regard, Tenant hereby waives any restriction on the uses to which the Security Deposit may be applied as contained in Section 1950.7(c) of the California Civil Code and/or any successor statute. After each application from the Security Deposit, Tenant shall, within ten (10) Business Days after of Notice from Landlord, restore said Security Deposit to the amount required in accordance with the terms of this Lease. The use, application or retention of the Security Deposit by Landlord shall not be deemed a limitation on Landlord’s recovery in any case, or a waiver by Landlord of any Default, nor shall it prevent Landlord from exercising any other right or remedy for a Default by Tenant. Landlord shall not be deemed a trustee of the Security Deposit. Landlord may use the Security Deposit in Landlord’s ordinary business and shall not be required to segregate it from Landlord’s general accounts. Tenant shall not be entitled to any interest on the Security Deposit. If Landlord transfers the Building during the Term, Landlord must pay the Security Deposit to any subsequent owner in conformity with the provisions of Section 1950.7 of the California Civil Code and/or any successor statute, in which event the transferring landlord shall be released from all liability for the return of the Security Deposit. Tenant specifically grants to Landlord (and Tenant hereby waives the provisions of California Civil Code Section 1950.7 to the contrary) a period of sixty (60) days following the later of (i) the Termination Date, and (ii) when Tenant surrenders possession of the Leased Premises to Landlord in accordance with the terms of this Lease within which to inspect the Leased Premises, make required restorations and repairs, receive and verify workmen’s billings therefor, and prepare a final accounting with respect to the Security Deposit and return any
unused portion. In no event shall the Security Deposit or any portion thereof, be considered prepaid rent.
B. Letter of Credit.
1. In lieu of a Security Deposit, Tenant shall have the right to deliver to Landlord, as protection for the full and faithful performance by Tenant of all of its obligations under this Lease and for all losses and damages Landlord may suffer (or that Landlord reasonably estimates it may suffer) as a result of any breach or default by Tenant under this Lease, an irrevocable and unconditional negotiable standby Letter of Credit (“Letter of Credit”), in the form attached to this Lease as Exhibit I and containing the terms required in this provision, payable in the cities of Washington, D.C. or San Jose, California, running in favor of Landlord and issued by a solvent, nationally recognized bank with a rating of (i) “A3” or better by Moody’s Investors Service, (ii) “A-” or better by Standard & Poor’s Rating Service, or its successor; or (iii) “A-” or better by Fitch Ratings, in the amount of the Two Hundred Eighty-Six Thousand Two Hundred Twenty Five and 50/100ths Dollars ($286,225.50) (“Letter of Credit Amount”). Tenant shall deliver the Letter of Credit to Landlord no later than five (5) Business Days after the mutual execution and delivery of this Lease. Tenant shall pay all expenses, points, or fees incurred by Tenant in obtaining the Letter of Credit. The Letter of Credit shall (1) be “callable” at sight, irrevocable, and unconditional; (2) be maintained in effect, whether through renewal or extension, for the period from the Lease Commencement Date and continuing until the date (“Letter of Credit Expiration Date”) that is sixty (60) days after the expiration of the Term, and Tenant shall deliver a new Letter of Credit or certificate of renewal or extension to Landlord on or before the expiration of the Letter of Credit then held by Landlord, without any action whatsoever on the part of Landlord; (3) be fully assignable by Landlord, its successors, and assigns; (4) permit partial draws and multiple presentations and drawings; (5) be honored by the bank issuing the same (“Issuing Bank”) regardless of whether Tenant disputes Landlord’s right to draw on the Letter of Credit; and (6) be otherwise subject to Uniform Customs and Practice for Documentary Credits, International Chamber of Commerce Publication No. 600 (UCP600) or International Standby Practices-ISP98, International Chamber of Commerce Publication No. 590 (1998). In addition, the form and terms of the Letter of Credit and the Issuing Bank shall be acceptable to Landlord, in Landlord’s sole discretion. Landlord, or its then managing agent, shall have the right to draw down an amount up to the face amount of the Letter of Credit if any of the following shall have occurred or be applicable: (1) such amount is due to Landlord under the terms and conditions of this Lease; (2) Tenant has filed a voluntary petition under any chapter of the U.S. Bankruptcy Code or any similar state law (collectively, “Bankruptcy Code”); (3) Tenant has assigned any or all of its assets to creditors in accordance with any federal or state Laws; (4) an involuntary petition has been filed against Tenant under any chapter of the Bankruptcy Code; or (5) the Issuing Bank has notified Landlord that the Letter of Credit will not be renewed or extended through the Letter of Credit Expiration Date.
2. The Letter of Credit shall also provide that Landlord, its successors, and assigns, may, at any time and without notice to Tenant and without first obtaining Tenant’s consent, transfer (one or more times) all or any portion of its interest in and to the Letter of Credit to another party, person, or entity, regardless of whether such transfer is separate from or a part of the assignment by Landlord of its rights and interests in and to this Lease. In the event of a transfer of Landlord’s interest in the Leased Premises, Landlord shall transfer the Letter of Credit, in whole or in part, to the transferee and Landlord shall then, without any further agreement between the parties, be released by Tenant from all liability therefor, and it is agreed that the provisions of this Article shall apply to every transfer or assignment of the whole or any portion of the Letter of Credit to a new landlord. In connection with any such transfer of the Letter of Credit by Landlord, Tenant shall, at Tenant’s sole cost and expense, execute and submit to the Issuing Bank such applications, documents, and instruments as may be necessary to effectuate such transfer, and Tenant shall be responsible for paying the Issuing Bank’s transfer and processing fees in connection with any such transfer.
3. If, as a result of Landlord drawing on the Letter of Credit, the amount of the Letter of Credit shall be less than the Letter of Credit Amount, Tenant shall, within five (5) Business Days after the drawdown by Landlord, provide Landlord with additional letter(s) of credit, or cash security deposit, in an amount equal to the deficiency, and any such additional
letter(s) of credit shall comply with all of the provisions of this Section 17.07.B. If Tenant fails to comply with this requirement, despite anything to the contrary contained in this Lease, the same shall constitute an incurable default by Tenant.
4. Tenant covenants and warrants that it will neither assign nor encumber the Letter of Credit or any part of it and that neither Landlord nor its successors or assigns will be bound by any such assignment, encumbrance, attempted assignment, or attempted encumbrance. Without limiting the generality of the foregoing, if the Letter of Credit expires earlier than the Letter of Credit Expiration Date, Landlord will accept a renewal of the letter of credit (such renewal letter of credit to be in effect and delivered to Landlord, as applicable, not later than sixty (60) days before the expiration of the Letter of Credit), which shall be irrevocable and automatically renewable as required in Section 17.07.B.1 above through the Letter of Credit Expiration Date on the same terms as the expiring Letter of Credit or such other terms as may be acceptable to Landlord in its reasonable discretion taking into account Tenant’s net worth and credit rating. However, if the Letter of Credit is not timely renewed, or if Tenant fails to maintain the Letter of Credit in the amount and in accordance with the terms set forth above, Landlord shall have the right to present the Letter of Credit to the Issuing Bank in accordance with the terms hereof, and the proceeds of the Letter of Credit may be applied by Landlord against any Rent payable by Tenant under this Lease that is not paid when due and to pay for all losses and damages that Landlord has suffered or that Landlord reasonably estimates that it will suffer as a result of any breach or default by Tenant under this Lease. Any unused and unapplied proceeds shall constitute the property of Landlord and need not be segregated from Landlord’s other assets; provided, however, Letter of Credit proceeds drawn by Landlord and applied to cure a Default that result in excess proceeds held by the Landlord shall be held as a security for the Tenant performance under this Lease in accordance with the terms of Section 17.07 A. above. Landlord agrees to pay to Tenant within thirty (30) days after the Letter of Credit Expiration Date the amount of any proceeds of the Letter of Credit received by Landlord and not (1) applied against any Rent payable by Tenant under this Lease that was not paid when due or (2) used to pay for any losses and damages suffered by Landlord (or reasonably estimated by Landlord that it will suffer) as a result of any breach or Default by Tenant under this Lease; provided, however, that if before the Letter of Credit Expiration Date a voluntary petition under the Bankruptcy Code is filed by Tenant, or an involuntary petition is filed against Tenant by any of Tenant’s creditors, then Landlord shall not be obligated to make such payment in the amount of the unused Letter of Credit proceeds until either (x) all preference issues relating to payments under this Lease have been resolved in such bankruptcy or reorganization case or (y) such bankruptcy or reorganization case has been dismissed.
5. Tenant acknowledges and agrees that Landlord is entering into this Lease in material reliance on the ability of Landlord to draw on the Letter of Credit on the occurrence of any breach or Default on the part of Tenant under this Lease. If Tenant shall breach any provision of this Lease or otherwise be in Default under this Lease, Landlord may, but without obligation to do so, and without notice to Tenant, draw on the Letter of Credit, in part or in whole, to cure any breach or Default of Tenant and to compensate Landlord for any and all damages of any kind or nature sustained or which Landlord reasonably estimates that it will sustain resulting from Tenant’s breach or Default, including any damages that accrue upon termination of the Lease under the Lease and/or California Civil Code §1951.2 or any similar provision. Landlord’s use, application, or retention of any proceeds of the Letter of Credit, or any portion of it, shall not prevent Landlord from exercising any other right or remedy provided by this Lease or by any applicable law, it being intended that Landlord shall not first be required to proceed against the Letter of Credit, and shall not operate as a limitation on any recovery to which Landlord may otherwise be entitled. Tenant agrees not to interfere in any way with payment to Landlord of the proceeds of the Letter of Credit, either before or following a draw by Landlord of any portion of the Letter of Credit, regardless of whether any dispute exists between Tenant and Landlord as to Landlord’s right to draw on the Letter of Credit. No condition or term of this Lease shall be deemed to render the Letter of Credit conditional to justify the issuer of the Letter of Credit in failing to honor a draw on such Letter of Credit in a timely manner. Tenant agrees and acknowledges that (1) the Letter of Credit constitutes a separate and independent contract between Landlord and the Issuing Bank; (2) Tenant is not a third party beneficiary of such contract; (3) Tenant has no property interest whatsoever in the Letter of Credit or the proceeds of it; and (4) if Tenant becomes a debtor under any chapter of the Bankruptcy Code,
neither Tenant, any trustee, nor Tenant’s bankruptcy estate shall have any right to restrict or limit Landlord’s claim or rights to the Letter of Credit or the proceeds of it by application of 11 USC §502(b)(6) or otherwise.
6. Tenant may, from time to time, replace any existing Letter of Credit with a new Letter of Credit if the new Letter of Credit: (1) becomes effective at least sixty (60) days before expiration of the Letter of Credit that it replaces; (2) is in the required Letter of Credit amount; (3) is issued by a Letter of Credit bank acceptable to Landlord; and (4) otherwise complies with the requirements of this Section 17.07.B.
7. Landlord and Tenant acknowledge and agree that in no event or circumstance shall the Letter of Credit or any renewal or proceeds of it be (1) deemed to be or treated as a “security deposit” within the meaning of California Civil Code §1950.7, (2) subject to the terms of §1950.7, (3) intended to serve as a “security deposit” within the meaning of §1950.7, or (4) limit Landlord’s remedies hereunder. Landlord and Tenant (x) confirm that the Letter of Credit is not intended to serve as a security deposit and §1950.7 and any and all other Laws applicable to security deposits in the commercial context (“Security Deposit Laws”) shall have no applicability or relevancy to the Letter of Credit.
8. Notwithstanding the foregoing or anything to the contrary contained herein, if at any time during the Term, Landlord determines that (i) the Issuing Bank is closed for any reason, whether by the Federal Deposit Insurance Corporation (“FDIC”), by any other governmental authority, or otherwise, or (ii) the Issuing Bank fails to meet any of the following three ratings standards as to its unsecured and senior, long-term debt obligations (not supported by third party credit enhancement): (a) “A3” or better by Moody’s Investors Service, or its successor, (b) “A-” or better by Standard & Poor’s Rating Service, or its successor; or (c) “A-” or better by Fitch Ratings, or its successor, or (c) the Issuing Bank is no longer considered to be well capitalized under the “Prompt Corrective Action” rules of the FDIC (as disclosed by the Issuing Bank’s Report of Condition and Income (commonly known as the “Call Report”) or otherwise), or (d) the Issuing Bank has been placed into receivership by the FDIC, or has entered into any other form of regulatory or governmental receivership, conservatorship or other similar regulatory or governmental proceeding, or is otherwise declared insolvent or downgraded by the FDIC or other governmental authority (any of the foregoing, an “Issuing Bank Credit Event”), then, within ten (10) Business Days following Landlord’s notice to Tenant, Tenant shall deliver to Landlord a new Letter of Credit meeting the terms of this Section issued by an Issuing Bank meeting Landlord’s credit rating standards set forth above and otherwise acceptable to Landlord, in which event, Landlord shall return to Tenant the previously held Letter of Credit. If Tenant fails to timely deliver such replacement Letter of Credit to Landlord, such failure shall be deemed a default by Tenant under this Lease, without the necessity of additional notice or the passage of additional grace periods, entitling Landlord to draw upon the Letter of Credit.
C. Burndown. If, as of the first day of the thirty first (31st) month following the Term Commencement Date, and upon the first anniversary thereof (such date, and such anniversary thereof, being referred to herein as a “Reduction Date” (for avoidance of doubt, it being agreed that there shall be up to two (2) total Reduction Dates, as applicable)), no Default by Tenant has occurred, the Security Deposit, or the face amount of the Letter of Credit if Tenant has delivered a Letter of Credit pursuant to Section 17.07(B) above, shall be reduced by Ninety-Five Thousand Four Hundred Eight and 50/100ths Dollars ($95,408.50) on each Reduction Date. Provided Tenant is entitled to a reduction as provided above, then within thirty (30) days after the applicable Reduction Date, Tenant may request, in writing, that Landlord deliver (i) that portion of the Security Deposit in such reduction amount, or (ii) if Tenant has delivered a Letter of Credit pursuant to Section 17.07(B) above, a written authorization of the applicable reduction to the Issuing Bank, which authorization shall be delivered within fifteen (15) days following receipt of Tenant’s written request, and Tenant shall then have thirty (30) days following delivery of such authorization by Landlord to deliver Landlord a replacement Letter of Credit or certificate of amendment to the then existing Letter of Credit conforming in all respects to the requirements of Section 17.07(B) and otherwise in form and substance acceptable to Landlord, in the applicable face amount as of such Reduction Date.
Section 17.08. Entire Agreement; No Representations; Modification.
This Lease is intended by the parties to be a final expression of their agreement and as a complete and exclusive statement of the terms thereof. All prior negotiations, considerations and representations between the parties (oral or written) are incorporated herein. No course of prior dealings between the parties or their officers, employees, agents or affiliates shall be relevant or admissible to supplement, explain or vary any of the terms of this Lease. No representations, understandings, agreements, warranties or promises with respect to the Leased Premises or the Building with respect to past, present or future tenancies, rents, expenses, operations, or any other matter, have been made or relied upon in the making of this Lease, other than those specifically set forth herein. This Lease may only be modified, or a term thereof waived, by a writing signed by an authorized officer of Landlord and Tenant expressly setting forth said modification or waiver.
Section 17.09. Severability.
If any term or provision of this Lease, or the application thereof to any Person or circumstance, shall be invalid or unenforceable, the remainder of this Lease, or the application of such term or provision to Persons or circumstances other than those as to which it is held invalid or unenforceable, shall not be affected thereby, and each term and provision of this Lease shall be valid and be enforced to the fullest extent permitted by law.
Section 17.10. Joint and Several Liability.
If two or more Persons shall sign this Lease as Tenant, the liability of each such Person to pay the Rent and perform all other obligations hereunder shall be deemed to be joint and several, and all Notices, payments and agreements given or made by, with or to any one of such Persons shall be deemed to have been given or made by, with or to all of them. In like manner, if Tenant shall be a partnership or other legal entity, the partners or members of which are, by virtue of any applicable law, rule, or regulation, subject to personal liability, the liability of each such partner or member under this Lease shall be joint and several and each such partner or member shall be fully obligated hereunder and bound hereby as if each such partner or member had personally signed this Lease.
Section 17.11. Broker’s Commission.
Other than Newmark, representing Landlord, and Jones Lang LaSalle, representing Tenant (collectively, “Broker”), Landlord and Tenant each warrants and represents to the other that no broker, finder or agent has acted for or on its behalf in connection with the negotiation, execution or procurement of this Lease. Subject to the next sentence, Landlord and Tenant each agrees to indemnify and hold the other harmless from and against all liabilities, obligations and damages arising, directly or indirectly, out of or in connection with a claim from a broker, finder or agent with respect to this Lease or the negotiation thereof, including costs and attorneys’ fees incurred in the defense of any claim made by a broker alleging to have performed services on behalf of the indemnifying party. Landlord agrees to pay Broker a commission with respect to this Lease in accordance with a separate written agreement between Landlord and Broker.
Section 17.12. No Option; Irrevocable Offer.
The submission of this Lease by Landlord, its broker, agent or representative, for examination or execution by Tenant, does not constitute an option or offer to lease the Leased Premises upon the terms and conditions contained herein or a reservation of the Leased Premises in favor of Tenant; it being intended hereby that notwithstanding the preparation of space plans and/or tenant improvements plans, etc., and/or the expenditure by Tenant of time and/or money while engaged in negotiations in anticipation of it becoming the Tenant under this Lease, or Tenant’s forbearing pursuit of other leasing opportunities, or even Tenant’s execution of this Lease and submission of same to Landlord, that this Lease shall become effective and binding upon Landlord only upon the execution hereof by Landlord and its delivery of a fully executed counterpart hereof to Tenant. No exception to the foregoing disclaimer is intended, nor shall any be implied, from expressions of Landlord’s willingness to negotiate with respect to any of the terms and conditions contained herein. Tenant’s execution of this Lease shall be deemed an offer by Tenant.
Section 17.13. Inability to Perform.
Except for the payment of monetary obligations, in any case where either party hereto is required to do any act, and the performance of such act is prevented, delayed or stopped due to any of the following (“Force Majeure”): acts of God or nature, war, terrorism, civil commotion, fire, flood or other Casualty, labor difficulties (provided each party shall use commercially reasonable efforts to resolve such labor difficulties), shortages of labor or materials or equipment, government regulations, delay by government or regulatory agencies with respect to approval or permit process, unusually severe weather or other reasonably unforeseeable circumstances not within the control of the party or its agents delayed in performing work or doing acts required under the terms of this Lease, the time for performance of such act (whether designated by a fixed date, a fixed time or a “reasonable time”) shall be deemed to be extended by the period of such prevention, delay or stoppage. Notwithstanding anything contained in this Lease to the contrary, if either party is unable to perform or delayed in performing any of its obligations under this Lease to the extent due to a foregoing event, such party shall not be in default under this Lease; provided, however, that nothing contained in this Section shall (i) extend the time at which Tenant is entitled to terminate this Lease pursuant to any express termination right under this Lease, or (ii) permit Tenant to holdover in the Leased Premises after the Termination Date. It shall be a condition of the right to claim an extension of time or other consequence as a result of any of the foregoing events that the party seeking such extension or consequence shall notify the other party thereof, specifying the nature and (to the extent known) the estimated length thereof. If such Notice is given later than five (5) Business Days after the notifying party first has actual knowledge of the existence of the event, then the event occurring during the period commencing on such fifth (5th) Business Day and ending on the date of such Notice, shall be disregarded and deemed not to have occurred.
Section 17.14. Survival.
Occurrence of the Termination Date shall not relieve either party from its obligations accruing prior to the expiration of the Term. All such obligations shall survive termination of this Lease.
Section 17.15. Corporate Tenants.
If Tenant is not an individual, the individual(s) executing this Lease on behalf of Tenant, without incurring any personal liability, hereby covenant(s) and warrant(s) that: (i) Tenant is duly formed, qualified to do business and in good standing in the State of California; and (ii) such Person(s) are duly authorized by Tenant to execute and deliver this Lease on behalf of Tenant. Tenant shall remain qualified to do business and in good standing in the State of California throughout the Term.
Section 17.16. Construction of Certain Terms.
The term “including” shall mean in all cases “including, without limitation.” Wherever Tenant is required to perform any act hereunder, such party shall do so at its sole cost and expense, unless expressly provided otherwise. All payments to Landlord, other than Minimum Rent, whether as reimbursement or otherwise, shall be deemed to be Additional Rent, regardless of whether denominated as “Additional Rent.” The parties acknowledge that this Lease has been agreed to by both the parties, that both Landlord and Tenant have consulted with attorneys with respect to the terms of this Lease and that no presumption shall be created against Landlord because Landlord drafted this Lease.
Section 17.17. Showing of Leased Premises.
Landlord may enter upon the Leased Premises for purposes of showing the Leased Premises to Mortgagees, prospective Mortgagees, insurers, prospective insurers, investors, underwriters, and purchasers and prospective purchasers at any time during the Term and to prospective tenants during the last twelve (12) months of the Term, subject to execution of a reasonable and customary nondisclosure agreement by any person other than Landlord having access to the Leased Premises, and after providing at least two (2) Business Days’ Notice. Notwithstanding the foregoing, if any Mortgagee, prospective Mortgagee, insurer or prospective insurer refuses to execute a nondisclosure agreement, then such Mortgagee, prospective Mortgagee, insurer or prospective insurer shall nevertheless be permitted to access the Leased
Premises for purposes of completing customary underwriting activities (i.e., seismic and property condition reports) in the Leased Premises.
Section 17.18. Relationship of Parties.
This Lease shall not create any relationship between the parties other than that of Landlord and Tenant.
Section 17.19. Rule Against Perpetuities.
Notwithstanding any provision in this Lease to the contrary, if the Term has not commenced within twenty-one (21) years after the date of this Lease, this Lease shall automatically terminate on the twenty-first (21st) anniversary of the date of this Lease. The sole purpose of this provision is to avoid any possible interpretation of this Lease as violating the Rule Against Perpetuities, or any other rule of law or equity concerning restraints on alienation.
Section 17.20. Choice of Law.
This Lease shall be construed, and all disputes, claims, and questions arising hereunder shall be determined in accordance with the laws of the State of California without reference to its choice of law principles.
Section 17.21. Choice of Forum.
Any action involving a dispute relating in any manner to this Lease, the relationship of Landlord/Tenant, the use or occupancy of the Leased Premises, and/or any claim of injury or damage shall be filed and adjudicated solely in the state or federal courts of the jurisdiction in which the Leased Premises are located.
Section 17.22. Hazardous Substances.
No Hazardous Substances (as hereafter defined) shall be used, generated, stored, treated, released, disposed or otherwise managed by or on behalf of Tenant or any invitee at the Leased Premises or the Building with the exception of appropriate amounts of office and cleaning products customarily and lawfully used in conjunction with an office use and/or any materials used in connection with any maintenance required to be performed by Tenant hereunder. Tenant shall immediately notify Landlord upon discovery of any Hazardous Substance release affecting the Leased Premises and, at its sole expense and at Landlord’s option, commence and thereafter diligently pursue remediation to Landlord’s satisfaction or reimburse Landlord’s costs of investigation or remediation of any release of Hazardous Substances arising from any act or omission of Tenant, its employees, agents, contractors or invitees within five (5) Business Days after demand therefor. Tenant shall cooperate with Landlord and provide access to the Leased Premises from time to time for inspections and assessments of environmental conditions and shall remove all Hazardous Substances from the Leased Premises upon expiration or termination of the Lease. Tenant agrees to indemnify, defend and hold Landlord and Landlord’s Indemnitees harmless from and against all Losses which may be imposed upon, incurred by or asserted against Landlord or Landlord’s Indemnitees by a third party and arising, directly or indirectly, out of or in connection with the presence of Hazardous Substances at or affecting the Building due to any act or failure to act of Tenant, its agents, servants, employees or contractors.
Landlord warrants to Tenant that, to Landlord’s actual knowledge as of the Delivery Date, the Leased Premises will not contain any asbestos or asbestos-containing materials in quantities that violate any applicable Laws in effect on the Delivery Date. Landlord shall, at Landlord’s sole cost, comply with all applicable Laws relating to the investigation, monitoring, disposal, remediation and/or removal of Hazardous Substances in violation of any applicable Laws except for which Tenant is responsible pursuant to the terms hereon (a) present in the Leased Premises prior to the Term Commencement Date except to the extent brought thereon by Tenant or any of Tenant’s employees, assignees, subtenants, agents, contractors and representatives (“Pre-Existing Hazardous Substances”), or (b) brought, used, generated, emitted or disposed of by Landlord in the Leased Premises (“Landlord Hazardous Materials”). Further, if any Hazardous Substances are released in the Leased Premises by a Person other than Landlord, Landlord’s Indemnities, Tenant or any of Tenant’s or any of Tenant’s employees, assignees, subtenants, agents, contractors and representatives, then Landlord shall not be in breach hereof or liable to Tenant for damaged but Landlord, at its sole cost, shall use commercially reasonable efforts to cause such Person to investigate, monitor, dispose, remediate
and/or remove such Hazardous Substances to the extent required by applicable Laws. Subject to the terms and conditions of this Lease, Landlord agrees to indemnify, defend and hold Tenant harmless from and against all Losses which may be imposed upon, incurred by or asserted against Tenant by a third party and arising solely and directly out of any Pre-Existing Hazardous Substances or any Landlord Hazardous Materials.
As used herein, “Hazardous Substances” shall mean (i) hazardous or toxic substances, wastes, materials, pollutants and contaminants which are included in or regulated by any federal, state or local law, regulation, rule or ordinance, including CERCLA, Superfund Amendments and Reauthorization Act of 1986, the Resource Conservation and Recovery Act, and the Toxic Substances Control Act, as any of the foregoing may be amended from time to time, (ii) petroleum products, (iii) halogenated and non-halogenated solvents, and (iv) all other regulated chemicals, materials and solutions which, alone or in combination with other substances, are potentially harmful to the environment, public health or safety or natural resources, and (v) black mold or other toxic fungus.
Section 17.23. OFAC Certification.
Tenant certifies that: (i) it is not acting, directly or indirectly, for or on behalf of any Person, group entity, or nation named by any Executive Order or the United States Treasury Department as a terrorist, “Specially Designated National and Blocked Person,” or other banned or blocked Person, entity, nation, or transaction pursuant to any law, order, rule or regulation that is enforced or administered by the Office of Foreign Assets Control; and (ii) it is not engaging in, instigating or facilitating this transaction, directly or indirectly, on behalf of any such Person, group, entity, or nation.
Tenant hereby agrees to defend, indemnify, and hold harmless Landlord from and against any and all claims, damages, losses, risks, liabilities, and expenses (including attorneys’ fees and costs) arising from or related to any breach of the foregoing certification.
Section 17.24. Time is of the Essence.
Time is of the essence with respect to each and every obligation of either party arising under this Lease.
Section 17.25. Counterparts; Electronic Signature.
This Lease and any amendments hereto may be executed in counterparts with the same effect as if the parties had executed one instrument, and each such counterpart shall constitute an original of this Lease. Further, the parties hereto consent and agree that this Lease, any amendment hereto and/or any notice to be delivered in accordance herewith may be signed and/or transmitted by electronic mail of a .PDF document and/or using electronic signature technology (e.g., DocuSign or similar electronic signature technology), and that such signed electronic record shall be valid and effective to bind the party so signing as a paper copy bearing such party’s hand-written signature. The parties further consent and agree that (a) to the extent a party signs this Lease using such electronic signature technology, by clicking “Sign” is signing this Lease electronically, and (b) the electronic signatures appearing on this Lease, shall be treated, for purposes of validity, enforceability and admissibility, the same as hand-written signatures.
Section 17.26. Confidentiality.
Tenant and Landlord each acknowledges that the contents of this Lease and any related documents are confidential information. Tenant and Landlord each shall keep and maintain such information strictly confidential and shall not disclose such confidential information to any person or entity; provided, however, each such party may disclose the terms and conditions of this Lease if required by law (including without limitation, as deemed necessary or desirable in connection with its status as a public traded company or a subsidiary of a publicly traded company) or court order or in connection with any effort or action to enforce or interpret the terms of this Lease, and to its attorneys, insurance consultants or providers, accountants, employees, auditors, and existing or prospective financial partners, investors, purchasers or lenders provided same are advised by such party of the confidential nature of such terms and conditions as well as to its brokers or other real estate advisors, appraisers, contractors, architects or engineers in connection with the negotiation, administration, or performance of or the exercise
of any rights of such party under this Lease, and to any prospective transferees of any or all of such party’s interest in this Lease or the Leased Premises.
Section 17.27. Right of First Offer to Lease.
A. If any spaces in excess of ten thousand (10,000) contiguous square feet of Floor Area of the third (3rd) floor the Building (the “3rd Floor”) becomes available for lease to third parties (each and any such portion is herein referred to as “First Offer Space”) at any time during the Term hereof, but only after initial “lease-up” of the 3rd Floor, Tenant shall have an on-going right of first offer to lease such First Offer Space, subject to, and in accordance with, the terms and conditions set forth in this Section 17.28. For purposes of this Section 17.28, “available for lease” shall mean First Offer Space which Landlord has determined that it will place on the market for lease and which Landlord is free to lease to the general public, unencumbered by any existing lease, renewal rights, expansion rights, rights of first offer or other similar rights in favor of other tenants in the Building or the Project.
B. Offering Notice. Prior to leasing to a third party any First Offer Space that is available for lease for which Tenant has a right of first offer to lease under Section 17.27.A above, Landlord will give notice to Tenant (an “Offering Notice”) setting forth the material terms upon which Landlord is willing to lease the First Offer Space to Tenant, including, but not limited to, (i) the location and approximate rentable square footage of the First Offer Space, (ii) the Minimum Rent (which may include periodic increases) Landlord proposes to charge, based upon Landlord’s assessment of current market conditions, and which amount may be more or less than the Minimum Rent set forth in this Lease; (iii) the tenant improvements, if any, Landlord proposes to install and/or the tenant improvement allowance, if any, that Landlord proposes to pay in connection with a lease of the First Offer Space; (iv) the anticipated date upon which possession of the First Offer Space will be available; (v) the term for which Landlord proposes to lease the First Offer Space; (vi) the period of free or abated rent, if any; and (vii) any other material conditions or provisions relating to the leasing of the First Offer Space which materially vary from the provisions of this Lease.
C. Acceptance of Offer. If Tenant wishes to lease the First Offer Space on the terms specified by Landlord in the Offering Notice, Tenant shall so notify Landlord within ten (10) Business Days after receipt thereof, which notice (the “First Offer Election Notice”) shall be unconditional and irrevocable and binding upon the parties. Tenant may exercise its right of first offer only with respect to all, but not less than all, of the First Offer Space identified in any Offering Notice.
D. Lease of First Offer Space.
1. If Tenant timely exercises its right to lease the First Offer Space, then Landlord and Tenant shall enter into an amendment to this Lease for the First Offer Space on all of the terms and conditions of this Lease, provided that (a) the Minimum Rent for the First Offer Space shall be as set forth in the Offering Notice, (b) Tenant’s Share shall be adjusted to reflect the addition of the First Offer Space, (c) except as specified in the Offering Notice (which shall govern to the extent of any conflict with this Lease), the First Offer Space shall be delivered in its then existing “as is” condition, without obligation on the part of Landlord to make any repairs or construct any improvements to the First Offer Space in connection with Tenant’s contemplated use, or to demolish existing improvements therein, and Tenant shall be responsible for the construction and installation in accordance with the provisions of Section 9.03 above of any tenant improvements it desires to install within the First Offer Space, at Tenant’s sole cost and expense, and (d) all other terms of the Offering Notice shall be incorporated. Except as may be specified in the Offering Notice, Tenant shall commence paying Minimum Rent and all Additional Rent with respect to the First Offer Space on the date of delivery of the First Offer Space to Tenant in the condition required pursuant to the terms of the Offering Notice if other than “as is” as provided above in clause (c) above. Landlord shall promptly prepare and Landlord and Tenant shall promptly execute an amendment to lease reflecting the terms of this Section 17.27.D.1.
2. If Tenant (a) fails to timely notify Landlord that it wishes to lease the First Offer Space identified in any Offering Notice, or (b) fails to execute and deliver to Landlord the
amendment for the First Offer Space within thirty (30) days following receipt thereof by Tenant, then Landlord may lease the First Offer Space to any third party on terms and conditions Landlord may deem appropriate. Notwithstanding the foregoing, if Landlord desires to consummate a lease of (i) the First Offer Space with Net Effective Economic Terms (as defined below) which are less than ninety five percent (95%) of the Net Effective Economic Terms listed in the initial First Offer Notice, or (ii) more than five percent (5%) more or less Floor Area than set forth in the initial First Offer Notice, the Landlord must first offer the applicable First Offer Space to Tenant on such revised terms, and Tenant shall have the right to deliver a First Offer Election Notice on the terms and conditions set forth in above with respect to such space based on such revised terms, except that Tenant shall make such election, if at all, within five (5) Business Days after the date of receipt of the revised First Offer Notice. “Net Effective Economic Terms” shall mean the base rental rate, as adjusted to reflect the value of any free rent, tenant improvement allowance or similar monetary concessions and economic terms contained in the initial First Offer Notice doing a net present value comparison using a seven percent (7%) annual discount rate. Further, if Landlord does not lease the applicable First Offer Space within one hundred eighty (180) days after Tenant’s election (or deemed election) not to lease the First Offer Space, then Tenant’s rights shall be fully reinstated with respect to the applicable First Offer Space on the terms and conditions set forth above and Landlord shall not thereafter lease the applicable First Offer Space without first complying with the procedures set forth in this Article.
E. Conditions to Exercise. Notwithstanding anything to the contrary set forth herein, if Tenant is in Default at the time an Offering Notice would otherwise be required to be sent under this Section 17.27, then Landlord shall have, in addition to any other remedies, the right (but not the obligation) to refrain from delivering the Offering Notice to Tenant. Nothing contained in this Section 17.27 shall be deemed to impose any obligation on Landlord to refrain from negotiating with the existing tenant(s) of the First Offer Space, to withhold the First Offer Space from the market, or to take any other action or omit to take any other action in order to make the First Offer Space available to Tenant.
F. Rights Personal to Original Tenant. Tenant’s rights pursuant to this Section 17.27 are personal to, and may be exercised only by, the original tenant under this Lease (i.e. Calix, Inc. (the “Original Tenant”)) or a Permitted Transferee, and only if the Original Tenant or Permitted Transferee continues to occupy the entire Leased Premises initially leased hereunder at the time of such exercise. If Tenant shall assign this Lease or sublet the Leased Premises (as the same may be expanded hereunder), except to a Permitted Transferee, then immediately upon such assignment or subletting, Tenant’s rights pursuant to this Section 17.27 shall simultaneously terminate and be of no further force or effect. No assignee or subtenant, except a Permitted Transferee, shall have any right to lease First Offer Space pursuant to this Section 17.27.
Section 17.28. Future Development.
A. Tenant understands and agrees that Landlord is, will or may be engaged in the design, development, demolition, construction and leasing activities in connection with additional development of the Project and the Common Areas within areas adjacent to or near the Leased Premises and that these activities may result in, among other things, the creation of temporary periods of noise, vibrations, dust, lights, and odors. Tenant acknowledges that it has received notification of these activities. In addition to Landlord’s rights set forth elsewhere in this Lease, Tenant covenants and agrees that Landlord shall have the right, in the nature of an easement, to subject the Leased Premises and areas adjacent to or near to the Leased Premises to such temporary nuisances during such activities. Landlord shall use its reasonable efforts to minimize any interference with or disruption of Tenant’s business in the Leased Premises, but neither Landlord nor its related entities or affiliates shall be liable to Tenant for any inconvenience or disruption resulting from such construction nor shall any such inconvenience serve as the basis for any abatement in Rent. Tenant further agrees that Tenant shall take no action to limit or delay Landlord’s activities in connection with the design, development, demolition, construction or leasing of such areas in the Project.
B. Landlord reserves the right to subdivide all or a portion of the Project so long as the same does not materially interfere with Tenant’s use of or access to the Leased Premises or Tenant’s parking rights hereunder. Tenant agrees to execute and deliver, upon demand by
Landlord and in the form requested by Landlord, any additional documents needed to conform this Lease to the circumstances resulting from a subdivision and any all maps, reciprocal easement agreements or other instruments, documents, and agreements in connection therewith, so long as the same does not materially increase Tenant’s obligations or materially decrease Tenant’s rights under this Lease. Notwithstanding anything to the contrary set forth in this Lease, the separate ownership of any buildings and/or Common Area by an entity other than Landlord shall not affect the calculation of Operating Costs, Insurance Costs or Taxes or Tenant’s payment of Tenant’s Share of any Operating Costs, Insurance Costs or Taxes, except that Operating Costs attributable to Common Areas utilized by both the Building and any such new building in the Project shall be proportionally allocated amongst the Building and such new building, and tenants in the Building shall not be responsible for payment of any real estate taxes attributable to such new building improvements.
[Remainder Of Page Intentionally Left Blank; Signature Page To Follow.]
SIGNATURE PAGE TO
OFFICE LEASE AGREEMENT
BETWEEN
SR WINCHESTER, LLC
AND
CALIX, INC.
IN WITNESS WHEREOF, the parties hereto intending to be legally bound hereby have executed this Lease under their respective hands and seals as of the day and year first above written.
LANDLORD:
SR WINCHESTER, LLC, a Delaware limited liability company
By: Street Retail, LLC,
a Maryland limited liability company
Its: Sole Member
| | | | | | | | |
| By: | /s/ Becca Walker |
| Name: | Becca Walker |
| Title: | Vice President - Head of Legal, Real Estate |
| | |
| | |
| | |
| | |
| | |
| | |
TENANT:
CALIX, INC.,
a Delaware corporation
| | | | | | | | |
| By: | /s/ Cory Sindelar |
| Name: | Cory Sindelar |
| Title: | CFO |
| | |
| | |
| | |
| | |
| | |
| | |
EXHIBIT A-2
LEASED PREMISES

This Work Agreement is attached to and made a part of that certain Office Lease (the “Lease”) by and between SR WINCHESTER, LLC, a Delaware limited liability company, as landlord (“Landlord”) and CALIX, INC., a Delaware corporation, as tenant (“Tenant”) for the Leased Premises (the “Leased Premises”) described therein and consisting of approximately 22,990 rentable square feet of Floor Area in the building in the City of San Jose, California commonly known as One Santana West (the “Building”). This Work Agreement sets forth the understandings and agreements of Landlord and Tenant regarding the performance by Landlord of work in and to the Leased Premises in connection with the preparation of the Leased Premises for Tenant’s original occupancy and use (all such work, excluding the Premises Base Building Specifications work, shall be referred to herein as “Tenant Work”). Any capitalized terms used herein, not otherwise defined herein, shall have the meanings set forth elsewhere in the Lease.
1. Landlord Work. Landlord shall construct the “Premises Base Building Specifications” set forth on Exhibit B-2 attached hereto, at Landlord’s sole cost and expense, which construction work shall not be deemed to be part of any Tenant Work. No part of the Tenant Work Allowance shall be utilized for any of the Premises Base Building Specifications. For purposes of this Exhibit B, Landlord Work costs shall include, without limitation, the following Landlord out-of-pocket costs incurred in connection with the Premises Base Building Specifications only: (a) all design fees, engineering fees, and consultants’ fees incurred by Landlord in connection with the design and engineering of the Landlord Work; (b) governmental agency plan check, permit, and other fees; (c) sales and use taxes; (d) Title 24 fees; (e) testing and inspection costs; (f) the cost of materials, labor, and supplies; (vii) the General Contractor’s overhead and profit; (g) all other costs expended or to be expended in connection with the construction of the Premises Base Building Specifications.
2. Tenant Work. Landlord shall construct the Tenant Work, at Landlord’s sole cost and expense (subject to the Tenant Work Allowance (as hereafter defined) and Tenant’s obligation to fund any Deficit (as hereafter defined)) through the General Contractor (as hereinafter defined) in accordance with the Final Plans (as hereinafter defined) and the provisions of this Exhibit B; provided, however, in no event shall the Tenant Work include (a) any costs of any Finishing Work (as defined below), and (b) any costs or expenses of any consultants retained by Tenant with respect to design, procurement, installation or construction of improvements or installations, whether real or personal property, for the Leased Premises. For purposes of this Agreement, “Substantial Completion,” “substantially complete” (or any variation thereof) shall have the meaning as defined below. Substantial Completion shall be deemed to have occurred upon receipt of a temporary certificate of occupancy and, if timely requested by Tenant, an architect certificate of substantial completion, notwithstanding a requirement to complete “punch list” or similar minor corrective work. Substantial Completion shall not be deemed to have occurred in any instance that more than five percent (5%) of the value of the Tenant Work remains outstanding and still to be performed. Upon Substantial Completion of the Premises Base Building Specifications and the Tenant Work, Landlord shall have no further obligation to construct improvements or construct modifications to or changes in the Premises Base Building Specifications or the Tenant Work, except to correct any defects, to
complete the punchlist of Premises Base Building Specifications and Tenant Work remaining to be completed, and except as otherwise provided in the Lease.
3. Plans.
(A) Prior to the execution of the Lease, Landlord and Tenant approved a space plan for the Tenant Work (the “Space Plan”). A copy of the Space Plan is attached hereto as Exhibit B-1 and incorporated herein by this reference. Landlord and Tenant acknowledge that the Space Plan may not depict certain structural elements of the Building and/or various elements of the Building systems that may result in material modifications to the final plans and specifications for the Tenant Work (collectively “Structural Modifications”). Furthermore, any final plans and specifications for the construction of the Landlord Work and the Tenant Work may require modification to account for the requirements of building codes and other Legal Requirements including, but not limited to, Title 24 and the Americans with Disabilities Act (collectively the “Building Codes”). Landlord shall use commercially reasonable efforts to cause to be prepared within ninety (90) days following the Effective Date of this Lease the final plans and specifications in substantial conformity with the Space Plan taking into account (i) Structural Modifications, (ii) the requirements of the Building Codes, and (iii) other modifications resulting from physical constraints of the Leased Premises (the “Working Plans”). Tenant agrees that, in addition to other factors and considerations Landlord may take into account, it shall not be unreasonable for Landlord to withhold its consent to any requested modifications to the Space Plan (1) if such requested modifications would not comply with the Building Codes, (2) if such requested modifications would cause a materially undue burden on the General Contractor, the subcontractors, or Landlord’s personnel, (3) if such requested modifications would materially and adversely increase the burden on the Building systems, either during construction or after completion of same, (4) if such requested modifications would actually delay the completion of the Tenant Work unless Tenant agrees in writing that all such delays shall constitute a Tenant Delay hereunder; or (5) such requested modifications would result in a Deficit unless Tenant agrees in writing to pay such Deficit and actually delivers such deficit amount to Landlord. Upon completion of the Working Plans, Landlord shall submit the same to Tenant for its review and approval, which approval shall not be unreasonably withheld, delayed or conditioned. Any disapproval by Tenant shall be accompanied by a written statement of the disapproved item, the reasons for disapproval, and the specific changes required to make the item acceptable. If Tenant’s written notice of disapproval is not delivered within five (5) Business Days of its receipt of such Working Plans, then Tenant shall be deemed to have approved the same. Tenant shall be permitted a maximum of three (3) disapprovals, and thereafter Landlord shall complete the Working Plans in accordance with the Space Plan as reasonably determined by Landlord and its architect and engineer and such modified Working Plans shall be deemed approved by Tenant. Once approved (or deemed approved) by Landlord and Tenant, the Working Plans shall thereafter be referred to herein as the “Final Plans.”
4. Tenant Work Costs.
(A) For purposes of this Exhibit B, “Tenant Work Costs” shall include, without limitation, the following out-of-pocket costs: (i) all design fees, engineering fees, and consultants’ fees incurred by Landlord in connection with the design and engineering of the Tenant Work; (ii) governmental agency plan check, permit, and other fees; (iii) sales and use taxes; (iv) Title 24 fees; (v) testing and inspection costs; (vi) the cost of materials, labor, and supplies; (vii) the General Contractor’s overhead and profit; (viii) all other costs expended or to be expended in connection with the construction of the Tenant Improvements; and (ix) Landlord’s administration and supervisory fee of two percent (2%) of the Tenant Work Allowance.
(B) Notwithstanding anything in this Work Letter to the contrary, Landlord shall perform Premises Base Building Specifications at Landlord’s sole cost and expense, and such costs shall not be included as Tenant Work Costs. In addition, Tenant acknowledges that, as an accommodation to Tenant and its desired scheduling for completion of the Tenant Work, Landlord has commenced certain Tenant Work (i.e., in excess of the Premises Base Building Specifications) prior to the Effective Date of the Lease and has incurred Tenant Work Costs in the amount of approximately One Million Four Hundred Seventy Eight Thousand Seven Hundred Ninety Five and 00/100 Dollars ($1,478,795.00) in connection therewith, and Tenant agrees that such amounts so actually incurred shall constitute Tenant Work Costs hereunder and shall be applied against the Tenant Work Allowance accordingly as set forth below.
(C) Landlord shall pay all Tenant Work Costs associated with the Tenant Work depicted on the Final Plans, not to exceed One Hundred Fifty and 00/100 ($170.00) per square foot of rentable Floor Area of the Leased Premises (i.e., $3,908,300.00) (the “Tenant Work Allowance”). Landlord shall solicit a bid from South Bay Construction (the “General Contractor”) for the Tenant Work. Upon receipt of the bid, Landlord shall enter into a contract with the chosen general contractor for the construction of the Tenant Work as shown on the Final Plans. Promptly upon Tenant’s request, Landlord shall provide Tenant with the amount of fee and general conditions as a percentage of the cost of the work that Landlord is obligated to pay to the General Contractor and the amount Landlord anticipates will be paid to the General Contractor for fees and general conditions from the Tenant Work Allowance. If the General Contractor’s bid for the Tenant Work exceeds the amount of the Tenant Work Allowance remaining after deducting for architect’s fees and city permits, then Tenant shall have the right, within five (5) business days after receipt of such bid, and at Tenant’s option, to either (i) modify or value engineer the Final Plans or implement other means to reduce the Tenant Work Costs with Landlord agreeing to work with reasonable diligence and cooperation to approve the same, and cause Landlord’s General Contractor to promptly submit a revised bid, or (ii) agree in writing to pay the amount of the Tenant Work Costs in excess of the Tenant Work Allowance (the “Deficit”). Each day of the aforementioned 5-business day election period Tenant uses before notifying Landlord of its election shall constitute a Tenant Delay hereunder. If Tenant elects to pay the Deficit, then Tenant shall pay fifty percent (50%) of such amount to Landlord concurrently with its Notice electing to pay such amount; provided, however, that if upon completion of the construction work which is Tenant Work the actual cost to complete the Tenant Work was greater than the Tenant Work Allowance and the Deficit, then Tenant shall
promptly pay to Landlord any additional amounts which were incurred or otherwise paid by Landlord with thirty (30) business days of its receipt of Landlord’s Notice (which Notice shall be accompanied by reasonable supporting documentation) together with the balance of any Deficit funds due Landlord. Deficit funds shall be expended by Landlord proportionally (based on the proportion of the Deficit to the total Tenant Work Costs) with the Tenant Work Allowance in the payment of Tenant Work Costs as such payments become due and payable. If Tenant does not affirmatively elect to pursue either option (i) or (ii) above within such 5-business day period, then Tenant shall be deemed to have elected to proceed in accordance within option (ii), above. Landlord and Tenant agree and acknowledge that the Tenant Work Allowance will be used only for the purpose of that work depicted in the Final Plans, and that the Tenant Allowance, and all of it, shall be utilized only for the benefit of the Leased Premises.
(D) If any of the Tenant Work necessitates changes to the base Building or Building systems, or the design thereof, any such changes shall be subject to prior written approval of Landlord, in its sole discretion, and Tenant shall be responsible for all costs resulting from such changes to the extent the same exceeds the Tenant Work Allowance, including architectural and engineering charges, and any special permits or fees attributed thereto. Any delay resulting from such changes shall be deemed a Tenant Delay. Before any such changes are made, Tenant shall pay to Landlord the Deficit to be incurred by Landlord in connection with such changes. Furthermore, to the extent any Tenant Work requires the modification, repair, replacement, or redesign to the Building structure due to the requirements of any applicable Legal Requirements, including but not limited to the Americans with Disabilities Act, Tenant shall be solely responsible for any such costs to the extent the same exceeds the Tenant Work Allowance.
(E) The Tenant Work Allowance shall be distributed by Landlord directly to the architects, engineers, city for permits and fees, contractors, and other professionals retained to design and construct the Tenant Work. Under no circumstances will any portion of the Tenant Work Allowance be paid directly to Tenant by Landlord. If the full amount of the Tenant Work Allowance has not been used in accordance with the foregoing as of the date the final invoice of the General Contractor is paid by the Landlord after the Tenant Work is complete, then the balance thereof up to a maximum sum of one hundred thousand dollars ($100,000.00) shall be applied by the Landlord to the Tenant’s contractors performing the installation of the Tenant’s furniture, trade fixtures and equipment install. Any final balance of the Tenant Work Allowance not applied under the terms of this Work Letter may then be retained by Landlord, and Tenant shall have no rights whatsoever with respect thereto. Notwithstanding the foregoing, Landlord shall have the right, without the obligation, to apply all or any portion of the undisbursed Tenant Work Allowance to remedy any Default by Tenant occurring hereunder; provided, however, it is expressly covenanted and agreed that such remedy by Landlord shall not be deemed to waive, or release, the Default of Tenant. The foregoing remedy of Landlord is in addition to, and not in substitution for, all other rights and remedies of Landlord in the event of a Tenant Default under the Lease.
(F) Landlord will cooperate with Tenant to provide Tenant copies of the bids from the subcontractors for all main trades sought by the General Contractor.
5. Delays.
(A) The term “Tenant Delay” as used in this Exhibit B shall mean any delay that Landlord may encounter in the performance of Landlord’s obligations under this Exhibit B which actually causes a delay in the Substantial Completion of the Tenant Work because of any of Tenant’s acts or omissions of any nature, whether committed willfully, negligently, intentionally, or otherwise, that result in an actual delay including, without limitation, any: (i) delay attributable to Change Orders as well as any delays actually incurred in investigating and processing any Change Order or otherwise caused by a Change Order issued at Tenant’s request; (ii) delay attributable to postponement of any Tenant Work at the sole request of Tenant; (iii) delay by Tenant in furnishing information or giving any other approvals or authorizations within the time limits set forth in this Exhibit B, or if no time is set forth for such performance in this Exhibit B, then a reasonable time, time being of the essence; (iv) delay attributable to the failure of Tenant to pay, when due, any amounts required to be paid by Tenant pursuant to this Exhibit B or the Lease including, without limitation, any Deficit; (v) Tenant’s request for materials, finishes or installations which are out of the ordinary or which take a longer-than-normal time to obtain or install that are above building standard items (“long lead time items”) except where such long lead time items were known to the Landlord and the General Contractor that failed to order the same reasonably in advance in order to align with the building program and milestone dates; (vi) the performance of, or failure to timely complete, work by Tenant or any person, firm, or entity hired or employed by Tenant, including without limitation, the failure to timely complete the installation or construction of any systems furniture to be installed or constructed by Tenant or any person, firm, or entity hired or employed by Tenant; (vii) the failure of any equipment, materials or other items that are provided by Tenant and installed by Landlord to be delivered to Landlord in the time necessary for their installation or use, or the failure of any such equipment, materials or other items to comply with all required specifications; (viii) any other delays resulting from the actions or inactions of Tenant; or (ix) any other delays expressly stated herein or in the Lease to constitute a Tenant Delay. Tenant shall pay to Landlord all additional costs reasonably determined to have been incurred by Landlord as a direct result from any Tenant Delay in excess of the Tenant Work Allowance. The Term Commencement Date shall be adjusted earlier on a day-for-day bases as a result of such actual Tenant Delay.
(B) For purposes of this Exhibit B only, the term “Force Majeure Delay” shall mean any (i) delay in the design and/or completion of the construction work attributable to any strike, lockout, or other labor or industrial disturbance (whether or not on the part of the employees of either party hereto), civil disturbance, further order claiming jurisdiction, act of public enemy, war, riot, terrorism, sabotage, blockade, or embargo; (ii) delay in the design and/or completion of Premises Base Building Specifications or Tenant Work due to changes in any Legal Requirements, including the Americans with Disabilities Act; (iii) delays due to the inability to obtain materials or equipment necessary to complete such Premises Base Building Specifications or Tenant Work in accordance with the Final Plans at normal pricing due to pandemic, foreign
supplier failures, geopolitical risk, labor disruption, insufficient capacity at ports, delay or loss of inventory in transit, excess demand, insufficient inventory, or other supply chain issues beyond General Contractor’s reasonable control; and (iv) delay in the design and/or completion of improvements attributable to terrorist act, lightning, earthquakes, fire, storm, hurricane, tornado, flood, washout, unusually inclement weather, explosion, or any other similar industry-wide or Building-wide cause beyond the reasonable control of the party from whom performance is required, or any of its contractors, or other representatives. Any prevention, delay, or stoppage due to any Force Majeure Delay shall excuse the performance of the party affected for a period of time equal to any such prevention, delay, or stoppage, except the obligations of either party to pay money, including Rent, and all other charges, pursuant to the terms of the Lease.
(C) For purposes of this Exhibit B and the Lease, the term “Landlord Delay” shall mean a delay that is not a Tenant Delay nor a Force Majeure Delay which arises in the design and construction of the Premises Base Building Specifications or the Tenant Work performed in the Leased Premises that results in the late delivery of work.
6. Change Orders. If Tenant shall request or authorize changes or additions to the Tenant Work being performed by Landlord after approval of the Final Plans and Landlord’s acceptance of cost estimates from the selected General Contractor, Tenant shall be responsible for the cost of revising the Final Plans (to the extent such cost is in excess of the Tenant Work Allowance) to reflect such changes or additions, and such changes or additions to the Tenant Work and the revisions to the Final Plans shall be subject to Landlord’s written approval, not to be unreasonably withheld, conditioned or delayed. Landlord shall have no obligation to perform such changes or additions if, in Landlord’s reasonable opinion, such changes cannot reasonably be accommodated in Landlord’s construction schedule for completion of Tenant Work. Landlord shall not be required to perform any such changes or additions until Landlord receives written authorization from Tenant and payment of 100% of Landlord’s estimate of the cost of the new Tenant Work (to the extent such cost is in excess of the Tenant Work Allowance), it being expressly understood that due to time requirements Landlord may not deliver to Tenant a final price for such Tenant Work until after it has been performed, and that Tenant shall be required to make final payment of the difference between Landlord’s estimate and actual price (to the extent such cost is in excess of the Tenant Work Allowance) as Additional Rent within forty five (45) days upon being invoiced therefor, subject to reasonable verification that charges are actual charges of General Contractor but not subject to dispute as to the reasonableness of such charges. Any delays caused by any such changes or additions to the Tenant Work, any such revisions to the Final Plans or any delay in Tenant providing Landlord with authorization to perform the new Tenant Work or paying any amount required to be paid hereunder shall be deemed a Tenant Delay if and to the extent Substantial Completion of the Tenant Work is actually delayed thereby.
7. Substantial Completion and Possession of the Leased Premises. Landlord will notify Tenant in writing when Landlord considers Substantial Completion (as defined below) to have occurred. Within five (5) Business Days thereafter, Landlord’s agent and Tenant’s representative shall conduct a walk-through of the Leased Premises and identify any necessary
touch-up work, repairs and minor completion items that are necessary for final completion of the Tenant Work (the “Punchlist Items”). Neither Landlord’s agent nor Tenant’s representative shall unreasonably withhold his or her agreement on Punchlist Items provided such Punchlist Items do not materially and adversely affect Tenant’s use of the Leased Premises for the Permitted Use. Landlord shall use commercially reasonable efforts to complete all Punchlist Items within thirty (30) days after agreement thereon; however, Landlord shall not be obligated to engage overtime labor in order to complete such items. Tenant, by taking possession of the Leased Premises to commence business operations therein (and not merely to install any Fixturing Work), is deemed to acknowledge that Landlord has satisfactorily performed all work to be performed by it as hereinabove set forth, subject to such Punchlist Items and/or any latent defects. The existence of such Punchlist Items shall not postpone the Term Commencement Date. For purposes hereof, “Substantial Completion” of the Tenant Work shall occur upon the completion of construction of the Tenant Work in the Leased Premises pursuant to the Final Plans, in accordance with the terms of the Lease and all applicable Laws, and the issuance of a temporary certificate of occupancy by appropriate governmental officials for the Leased Premises (if legally required as a condition of occupancy), delivery of an architect certificate that the work has been substantially completed and the Tenant Work has reached a state of completion that Tenant can reasonably use the Leased Premises for the Permitted Use without unreasonable interference on account of those items remaining to be completed, with the exception only of any Punchlist Items and any Fixturing Work; provided, Substantial Completion shall have occurred even though minor details of finishing decoration or mechanical adjustments remain to be completed; provided further, if, after the Delivery Date (as defined in the Lease), Tenant discovers that Substantial Completion was not in fact satisfied (“Condition Deficiencies”) despite confirmation of the Delivery Date, then the Delivery Date shall not be modified but Landlord shall remain responsible for correcting such Condition Deficiencies at its sole cost and expense.
8. Finishing Work. Any item or work not shown in the Final Plans, including, for example, Tenant’s trade fixtures, equipment, furniture, furnishings, telephone equipment, cabling for any of the foregoing or other personal property to be used in the Leased Premises by Tenant (hereinafter “Finishing Work”), shall be procured and constructed by Tenant at its sole cost and expense in accordance with the terms and conditions of this Lease and Landlord’s reasonable rules, policies, procedures and schedules and shall be conducted in such a way as not to hinder, cause any disharmony with, or delay construction of the Premises Base Building Specifications or Tenant Work. Tenant’s suppliers, contractors, workmen, and mechanics shall be subject to reasonable approval by Landlord prior to the commencement of their work and shall be subject to Landlord’s administrative control while performing their work. Tenant shall have provided Landlord with adequate proof of that insurance required to be maintained by Tenant’s contractors pursuant to the terms of the Lease, prior to commencing any Finishing Work.
9. Tenant’s Access to the Premises.
(A) Provided that Tenant has provided Landlord with its contractor(s) certificates of insurance required under the Lease, Landlord shall allow Tenant and its contractor(s) access to
the Leased Premises thirty (30) days prior to the Substantial Completion of the Tenant Work, as estimated by Landlord in good faith, solely for the purpose of installing Tenant’s Finishing Work in the Leased Premises. Any such early occupancy shall be on all the terms and conditions contained in this Lease, except Tenant shall not be obligated for the payment of Minimum Monthly Rent and Additional Rent.
(B) Should Tenant elect to enter the Leased Premises under the terms of this Section 9 for construction of Tenant’s Finishing Work, it is hereby agreed that Tenant, its employees, its agents, its independent contractors, its suppliers and any other person under Tenant’s direct control (collectively, “Tenant’s Early Access Parties”) installing the Finishing Work shall be subject to the reasonable direction of the Landlord and General Contractor. If, in the reasonable judgment of Landlord, the presence of Tenant’s Early Access Parties or the Finishing Work that is being performed thereby shall materially interfere with the completion of the Tenant Work, then, Landlord shall have the right to order any or all of Tenant’s Finishing Work to cease on twenty four (24) hours’ written notice. If Landlord requires such cessation of the Finishing Work because there exists a material interference with the completion of the Tenant’s Work, then Tenant shall have Tenant’s Early Access Parties removed from the Leased Premises until such material interference is remedied.
10. Tenant’s Representative. Tenant shall designate to Landlord in writing, upon execution of the Lease, the name of one or more individual representative(s) who will work with Landlord’s representatives throughout the period of construction of the Tenant Improvements. In the event of a change in personnel, Tenant shall promptly notify Landlord of its replacement representative. In the event the designated Tenant representative will not be available, due to a vacation or any other extended absence from the office, Tenant shall notify Landlord of an interim Tenant representative, and the dates such interim representative are expected to be Tenant’s representative.
11. Tenant’s Default. Notwithstanding any provision to the contrary contained in the Lease, upon the occurrence of a Default on the part of Tenant under the Lease, or upon a default by Tenant under this Exhibit B prior to Substantial Completion of the Tenant Improvements, then (i) in addition to all other rights and remedies granted to Landlord pursuant to the Lease, Landlord shall have the right to cause any and all engineers, architects, contractors, and any other persons associated with the design or construction of the Tenant Work to cease work thereon, and any delay in completion of the Tenant Work caused by such Tenant Default shall be deemed a Tenant Delay; and (ii) all other obligations of Landlord under the Lease and this Exhibit B shall be abated until such time as such Default is cured in accordance with the terms of the Lease, or this Exhibit B, as applicable.
12. Landlord’s Representative. Landlord shall designate in writing, upon execution of the Lease, the name of one or more individual representative(s) who will work with Tenant’s representatives throughout the period of construction of the Tenant Improvements. In the event of a change in personnel, Landlord shall promptly notify Tenant of its replacement representative. In the event the designated Landlord representative will not be available, due to a
vacation or any other extended absence from the office, Landlord shall notify Tenant of an interim representative, and the dates such interim representative are expected to be Landlord’s representative.
The Tenant Work shall be completed in accordance with the foregoing space plan and the Final Plans, with finishes consistent with the “market-ready” space located on the second (2nd) floor of the Building (and previously inspected by Tenant).
FEDR-59948\3003987.2 Exhibit B-1 – Page 1
EXHIBIT B-2
PREMISES BASE BUILDING SPECIFICATIONS
| | | | | | | | |
iRef | Condition | Description |
| 1 | GENERAL | All construction and demolition to be completed by Landlord with respect to the Premises will meet or exceed the following USGBC LEED CI Indoor Environmental Quality Credits: (a) Construction Indoor Air Quality Management Plan, During Construction; (b) Construction Indoor Air Quality Management Plan, Before Occupancy; and (c) Indoor Chemical and Pollutant Source Control. Concrete floor slabs will be level to within 1/4" cumulative deviation within ten (10) feet between any two points in the Premises and two (2) inches cumulative deviation between any two corners of the Building. Landlord will ensure fireproofing of any exposed structural steel and any firestopping of any perforations in any fire-rated walls or areas. Landlord will deliver the Premises with all existing cabling removed (if any). The Premises will be separately metered for electricity (with digital meters). Landlord will ensure that the meters have an accuracy class suitable for customer billing and the meter register is readily accessible for billing. |
| 2 | PLUMBING/ FIXTURES/ WATER USAGE | All full floor tenants will have water sub metered. |
| 3 | ELECTRICAL | Landlord will provide electrical capacity to the Premises of not less than six (6) watts, demand load, per rentable square foot of Floor Area, exclusive of the Building’s HVAC system and “house” loads. Of the six (6) watts per rentable square foot of Floor Area, no less than 1.0 watt shall be supplied at 480/277 volts for lighting and mechanical and no less than 5.0 watts shall be supplied at 120/208 volts for utilization for general power circuits as described in the preceding paragraph.
Circuits for lighting fixtures in the tenant spaces are required to be connected to the emergency generator to illuminated paths of egress, of ample capacity to provide code required illumination at floor level. The Building uses lighting control systems, including occupancy sensors, to control lighting during unoccupied periods and these systems will be operating and in good repair. |
| | | | | | | | |
| 4 | MECHANICAL (HVAC) | Landlord shall install an air cooled variable refrigerated flow (VRF) system with compressor with outdoor coils on the roof piped down to the Premises to the following criteria: During the normal heating season, to maintain indoor temperature between 72 degrees F. and 75 degrees F. when the outdoor temperature is between 0 degrees F. and 55 degrees F. During the normal cooling season, to maintain indoor temperature between 72 degrees F. and 75 degrees F. when the outdoor temperature is between 55 degrees F. and 96 degrees F. Humidity not to exceed 50 percent within the Premises. During the intermediate seasons, to maintain indoor temperature between 72 degrees F. and 75 degrees F. when the outdoor temperature is between 55 degrees F. and 74 degrees F., whether by 100 percent air or refrigeration. To furnish not less than 0.33 cubic feet of fresh air, and not less than 1.0 cubic feet of total air, per minute per square foot or usable interior occupied space. Fresh air levels shall be maintained in accordance with prevailing standards for Comparable Buildings and current ASHRAE-62 Standards (ventilation for acceptable indoor air quality) in effect from time to time. Landlord shall also provide adequate thermal environmental comfort and air velocity limits in accordance with current ASHRAE-55 No CFC-based refrigerants will be used in the HVAC systems serving the Premises. PwC will be able to utilize the Building Management Systems (if any). Base Building HVAC systems will be in good operating condition. Landlord shall install the units and Tenant shall install fan coil units, the ductwork and diffusers to distribute the air throughout the Premises. Capacity of Base Building HVAC system will be sized in accordance with cooling and heating load calculation procedures established by ASHRAE and local climatic conditions, and the HVAC system will comply with state and local building codes. Systems for the introduction of outside air for ventilation shall be designed, maintained and operated to meet or exceed the requirements of ASHRAE Standard 62.1-2007, unless local requirements are more demanding. At a minimum, the system shall provide 1 ton of cooling for every 340 USF and 1.0 CFM per 1 RSF of air circulation capacity, based on a 55°F supply air temperature. |
| | | | | | | | |
| 5 | LIFE SAFETY | All required life safety systems shall be in place and operating, including but not limited to: fire sprinkler system, emergency generator for fire pump, elevators, life safety HVAC systems, and fire alarm and communication system, egress and emergency lighting, and other items required by code |
| 6 | HAZARDOUS MATERIALS | Landlord will deliver the Premises free from any and all Environmentally Hazardous Materials (as defined below) in quantities in violation of Environmental Laws (as defined hereinafter). Prior to delivery of the Leased Premises, Landlord will remove therefrom all asbestos and asbestos containing materials in accordance with Environmental Laws. “Environmental Laws" means all applicable federal, state and local laws, statutes, ordinances, permits, orders, decrees, guidelines, rules, regulations and orders pertaining to health or the environment, including, without limitation, the Comprehensive Environmental Response, Compensation and Liability Act of 1980 and the Resource Conservation and Recovery Act and regulations promulgated thereunder, as the foregoing shall have been amended or may be amended from time to time. “Environmentally Hazardous Materials” means asbestos and asbestos containing materials and any chemical, material or substance at any time included in the definition of “hazardous substances", "hazardous wastes" or hazardous materials as defined by or under applicable Environmental Laws. |
| 7 | COMPLIANCE WITH LEGAL REQUIREMENTS | Landlord will deliver the Leased Premises in compliance with all applicable federal, state and local laws, statutes, ordinances, permits, orders, decrees, guidelines, rules, regulations and orders, including, without limitation, the Americans With Disabilities Act of 1991 and the regulations promulgated thereunder as the foregoing are applied and interpreted by the applicable governmental authorities as of the Delivery Date applicable to the delivery condition hereunder, without regard to any specific use of the Premises or the tenant improvements to be installed by Tenant. |
EXHIBIT C
RULES AND REGULATIONS
Tenant expressly covenants and agrees, at all times during the Term, and at such other times as Tenant occupies the Leased Premises or any part thereof, to comply, at its own cost and expense, with the following:
1. Tenant shall not obstruct or permit its agents, clerks or servants to obstruct, in any way, the sidewalks, entry passages, corridors, halls, stairways or elevators of the Building, or use the same in any other way than as a means of passage to and from the offices of Tenant; bring in, store, test or use any materials in the Building which could cause a fire or an explosion or produce any fumes or vapor; make or permit any disruptive noises in the Building; smoke in the elevators; throw substances of any kind out of the windows or doors, or in the halls and passageways of the Building; sit on or place anything upon the window sills; or clean the exterior of the windows.
2. Waterclosets and urinals shall not be used for any purpose other than those for which they are constructed; and no sweepings, rubbish, ashes, newspaper or any other substances of any kind shall be thrown into them. Waste and excessive or unusual use of electricity or water is prohibited.
3. Tenant shall not (i) obstruct the windows, partitions and lights that reflect or admit light into the halls or other places in the Building, or (ii) inscribe, paint, affix, or otherwise display signs, advertisements or notices in, on, upon or behind any windows or on any door, partition or other part of the interior or exterior of the Building, without the prior written consent of Landlord, which consent shall not be unreasonably withheld. If such consent be given by Landlord, any such sign, advertisement, or notice shall be inscribed, painted or affixed by Tenant, or a company approved by Tenant, and the cost of the same shall be charged to and paid by Tenant, and Tenant agrees to pay the same promptly, on demand.
4. No contract of any kind with any supplier of towels, water, ice, toilet articles, waxing, rug shampooing, venetian blind washing, furniture polishing, lamp servicing, cleaning of electrical fixtures, removal of waste paper, rubbish or garbage, or other like services shall be entered into by Tenant, nor shall any vending machine of any kind be installed in the Building, without the prior written consent of Landlord which consent shall not be unreasonably withheld.
5. When electric wiring of any kind is introduced after Tenant’s Work is complete, it must be connected as directed by Landlord, and no stringing of any kind or cutting of wires will be allowed, except with the prior written consent of Landlord, which consent shall not be unreasonably withheld. The number and location of telephones, telegraph instruments, electric appliances, call boxes, etc., shall be subject to Landlord’s approval. No tenants shall be in direct contact with the rough floor of the Leased Premises; and if linoleum or other similar floor covering is desired to be used, an interlining of builder’s deadening felt shall be first affixed to the floor by a paste or other material, the use of cement or similar adhesive material being expressly prohibited.
6. Except as otherwise expressly set forth in the Lease, no additional lock or locks shall be placed by Tenant on any door in the Building without prior written consent of Landlord, which consent shall not be unreasonably withheld.
7. Tenant shall not employ any Person or Persons other than Landlord’s janitors for the purpose of cleaning the Leased Premises, without prior written consent of Landlord, which consent shall not be unreasonably withheld. Landlord shall not be responsible to Tenant for any loss of property from the Leased Premises however occurring, or for any damage done to the effects of Tenant by such janitors or any of its employees, or by any other Person or any other cause.
8. No bicycles, vehicles or animals of any kind shall be brought into or kept in or about the Leased Premises, except in bicycle storage rooms.
9. Tenant shall not conduct, or permit any other Person to conduct, any auction upon the Leased Premises except occasional charitable events; manufacture or store goods, wares or merchandise upon the Leased Premises, without the prior written approval of Landlord, which
EXHIBIT C
RULES AND REGULATIONS
approval shall not be unreasonably withheld, and except the storage of usual supplies and inventory to be used by Tenant in the conduct of its business; permit the Leased Premises to be used for gambling except occasional charitable events; make any disruptive noises in the Building; permit to be played any musical instruments, recorded or wired music in such a loud manner as to disturb or annoy other tenants; or permit any unusual odors to be produced upon the Leased Premises. No awnings or other projections shall be attached to the outside walls of the Building. No curtains, shades or screens shall be attached to or hung in, or used in connection with, any window or door of the Leased Premises, without the prior written consent of Landlord. Such curtains, blinds and shades must be of a quality, type, design, and color, and attached in a manner, approved by Landlord.
10. Canvassing, soliciting and peddling in the Building are prohibited, and Tenant shall cooperate to prevent the same. Retail sales will be limited to the ground level and lower level retail store areas.
11. There shall not be used in the Leased Premises or in the Building, either by Tenant or by others in the delivery or receipt of merchandise, any hand trucks, except those equipped with rubber tires and side guards.
12. Tenant, before closing and leaving the Leased Premises, shall ensure that all entrance doors are locked.
13. Landlord shall have the right to prohibit any advertising by Tenant which in Landlord’s opinion tends to impair the reputation of the Building or its desirability as a building for offices, and upon Notice from Landlord, Tenant shall refrain from or discontinue such advertising.
14. Landlord hereby reserves to itself any and all rights not granted to Tenant hereunder, including, but not limited to, the following rights which are reserved to Landlord for its purpose in operating the Building, subject to any rights in such area expressly granted to Tenant in the Lease:
(i) the exclusive right to the use of the name of the Building for all purposes, except that Tenant may use the name as its business address and for no other purpose and as customary in Tenant’s public reports and press releases;
(ii) the right to change the name or address of the Building without incurring any liability to Tenant for so doing, except that Landlord agrees to compensate Tenant for three (3) months of Tenant’s replacement stationary print materials that require replacement due to the name or address change to the Building;
(iii) the right to install and maintain a sign or signs on the exterior of the Building to identify Landlord or its affiliated companies as the owner of the Building;
(iv) the exclusive right to use or dispose of the use of the roof of the Building, subject to any express rights granted to Tenant in the Lease;
(v) the right to limit the space on the directory of the Building to be allotted to Tenant; and
(vi) the right to grant to anyone the right to conduct any particular business or undertaking in the Building.
15. Tenant and its employees shall be subject to such parking regulations as Landlord may reasonably promulgate from time to time to prevent parking by unauthorized parties or parking in prohibited areas.
16. All safes shall stand on a base of such size as shall be designated by the Landlord. The Landlord reserves the right to inspect all freight to be brought into the Building and to exclude from the Building all freight which violates any of these Rules and Regulations or the Lease of which these Rules and Regulations are a part. No machinery of any kind or articles of unusual weight or size will be allowed in the Building without the prior written consent of
EXHIBIT C
RULES AND REGULATIONS
Landlord, which consent shall not be unreasonably withheld. Business machines and mechanical equipment, if so consented to by Landlord, shall be placed and maintained by Tenant, at Tenant’s expense, in settings sufficient to absorb and prevent all vibration, noise and annoyance.
17. The Leased Premises shall not be used for lodging or sleeping purposes, and cooking therein is prohibited, except (a) in any portion of the Leased Premises designated for cafeteria use; and (b) outside the cafeteria as in connection with receptions and events, and/or the warming of food in microwaves in any employee lounge or similar areas.
18. After 6:00 p.m. until 6:00 a.m. on weekdays and at all hours on Saturdays, Sundays and legal holidays, all persons entering or leaving the Building may be required to identify themselves to establish their rights to enter or leave the Building. Landlord or its agents may exclude from the Building during such periods all persons who do not present satisfactory identification. Each tenant shall be responsible for all persons for whom it requests admission and shall be liable to Landlord for all acts of such persons.
19. In addition to all other liabilities for breach of any provision of these Rules and Regulations, Tenant shall pay to Landlord all actual out of pocket damages caused by such breach. The violation of any such provision may be restrained by injunction.
EXHIBIT D
RULES FOR TENANT’S CONTRACTORS
1. All demolition and/or construction work generating sufficient noise to disturb Building or Project occupants (e.g., core drilling and ramset shots) must be accomplished during hours reasonably acceptable to Landlord. Determination of sufficient noise levels to cause a disturbance shall be made at Landlord’s sole discretion.
2. Construction debris must be removed from the Building in suitable containers. Removal must be accomplished in a manner which does not cause damage to the Building or Project, create any disturbances to tenants, or create additional cleaning for Building or Project personnel. Sufficient precautions must be taken to protect finishes in the path of removal. Damage to the Building or Project caused by Tenant’s contractors (and as used in this Exhibit, Tenant’s contractors shall include Tenant’s contractors and their subcontractors, laborers and material suppliers) will result in an assessment to Tenant and/or its contractors for such damage, which assessment shall be paid to Landlord within thirty (30) days after Landlord’s written demand therefor.
3. Contractors are responsible for timely cleaning of all areas affected by their construction activities. Contractors are further responsible for providing and promptly removing their own trash containers.
4. Any work not to be installed in strict adherence with the construction contract documents must be approved by the Landlord prior to installation.
5. All workmen must conduct themselves in a reasonable manner at all times. Landlord may require Tenant and its contractors to remove any workmen using profanity, loitering in the Building or Project, or creating a disturbance to tenants or other occupants of the Building or Project.
6. The workers and other personnel of each contractor shall be responsible for their own parking and the associated cost. Unauthorized vehicles found in loading areas or parking garages will be ticketed and towed.
7. Any warranties voided as a result of the contractor’s failure to comply with this Lease will result in the contractor’s replacing the voided warranty in compliance with Landlord’s requirements.
8. Any roof penetrations required must be performed and repaired by the Landlord’s designated subcontractor. Any warranties voided as a result of failure to comply with this requirement will result in the contractor’s replacing the voided warranty in compliance with the Landlord’s requirements.
9. The protection of existing mechanical equipment from physical damage or damage from dust and debris is the responsibility of Tenant and the applicable Tenant contractor. Damage as a result of failure to protect equipment will result in an assessment against Tenant and/or the applicable contractor for such damages and the resulting required repairs, which assessment shall be paid to Landlord within thirty (30) days after Landlord’s written demand therefor.
10. All penetrations to slab materials require the review and approval of the Landlord’s structural engineer without exception. The cost of this review and approval shall be Tenant’s and/or its contractor’s responsibility.
11. All testing of fire alarm equipment requiring the sounding of bells, sirens, or voice annunciation must be scheduled with Landlord 48 hours in advance of the test. Pre-testing of new fire alarm work is mandatory. Rescheduled test as a result of the contractor’s failure to coordinate with the Landlord, the contractor’s failure to completely pre-test the system, or the contractor’s failure to pass municipal test shall be the contractor’s responsibility.
12. These rules are subject to change at the Landlord’s reasonable discretion.
EXHIBIT E
ROOFTOP RULES AND REGULATIONS
This Exhibit E is attached to and made a part of the Lease by and between SR WINCHESTER, LLC, a Delaware limited liability company (“Landlord”), and CALIX, INC., a Delaware corporation, as tenant (“Tenant”) for the Leased Premises (the “Leased Premises”) described therein and consisting of approximately 22,990 square feet of Floor Area in the building commonly known as One Santana West, San Jose, California (the “Building”). Any capitalized terms used herein, not otherwise defined herein, shall have the meanings set forth elsewhere in the Lease.
A. Roof Area. Tenant shall accept the roof of the Building and Cable Path in their condition and “as-built” configuration provided in the Building Plans. Landlord has made no representations or promise as to the suitability or effectiveness of any part of the roof for Tenant’s proposed use, or as to any Legal Requirements relating to Tenant’s proposed use, or as to the condition of (or alteration or improvement of) the roof or any Cable Path.
B. Rooftop Installation Work. Installation of the Rooftop Installations (“Rooftop Installation Work”) must be performed in a good and workmanlike manner and in accordance with all applicable Laws, and shall be subject to: (a) obtaining Landlord’s prior written approval of plans and specifications, which approval shall not be unreasonably withheld and Tenant acknowledges and agrees that, without limiting the generality of the foregoing, it shall be reasonable for Landlord to disapprove any Rooftop Installation Work if it exceeds roof load limitations, or if it exceeds the height of the roof parapet; (b) obtaining Landlord’s prior written approval of Tenant’s contractor(s) for the Rooftop Installation Work, and such contractor must provide evidence of insurance reasonably satisfactory to Landlord prior to commencing work in or about the Building, provided that if any Rooftop Installation Work constitutes part of the Tenant Work, such Rooftop Installation Work may be performed by Tenant’s Contractor in accordance with the Work Agreement; (c) if the Rooftop Installation Work would violate any applicable Laws; and (d) all additional requirements under the Lease that apply to Alterations by Tenant. The plans and specifications for the Rooftop Installations shall include the design, size and features thereof and mounting structure, floor and power load requirements, the means of affixing or mounting the Rooftop Installations, and (if applicable) cabling installations and the means of connecting the Rooftop Installations to the Building’s electrical system and to the interior of the Leased Premises. The giving of any approval by Landlord shall not eliminate any of Tenant’s obligations under the Lease, including Tenant’s obligation to obtain all required permits and to comply with all Laws. The failure of Tenant to obtain such permits or any other governmental approvals relating to the Rooftop Installations shall not release Tenant from any of its obligations under the Lease. Tenant shall pay to Landlord all of Landlord’s reasonable out-of-pocket costs incurred in connection with the review and approval of the plans and specifications up to a maximum of Five Thousand Dollars ($5,000.00) within thirty (30) days after receipt of an invoice therefor. Notwithstanding the foregoing, any Rooftop Work that constitutes part of the Tenant Work shall be approved or disapproved by Landlord in connection with, and subject to the time periods governing, its approval or disapproval of the Construction Documents and Final Plans pursuant to the Work Agreement.
C. General Requirements. In addition to the applicable provisions of the Lease, Tenant’s use of the roof of the Building is subject to the following general requirements:
1. Tenant shall provide Landlord with not less than fifteen (15) Business Days advance Notice prior to commencing installation of the Rooftop Installations or other work on or to the Rooftop Installations from time to time, and agrees to afford Landlord the opportunity to be present for all such work, provided that only subsequent Notice within a reasonable time shall be required in the case of an emergency that presents an immediate danger.
2. After the initial installation of any Rooftop Installations, Tenant shall not make any material alteration, addition or improvement thereto, without first obtaining Landlord’s prior written approval, which approval shall not be unreasonably withheld; and any such material alterations, additions or improvements shall be subject to all the conditions and restrictions that apply to the original Rooftop Installations, including the requirement that Tenant furnish
EXHIBIT E
ROOFTOP RULES AND REGULATIONS
Landlord with detailed plans and specifications relating to the proposed alterations, additions or improvements.
3. Tenant, at its expense, shall at all times keep the Rooftop Installations in good order, condition and repair, and the location of the Rooftop Installations and the areas immediately surrounding same neat and clean. With respect to all operations relating to the Rooftop Installations, Tenant shall conduct its business and control its agents, employees, servants, licensees, contractors and subtenants (collectively “Tenant Parties”) in such manner as not to create any nuisance.
D. Services. Tenant shall be solely responsible for the cost of supplying electricity to the Rooftop Installations, including electricity usage, and the installation, maintenance and repair of any Connections.
E. Roof Damage. Tenant shall, at Tenant’s sole cost and expense, protect the roof from damage arising out of the installation, repair, maintenance, operation or removal of the Rooftop Installations, and shall perform all installations, repairs, maintenance and removals, and use the roof of the Building, in a manner so as to keep in full force and effect any warranty concerning the roof. In all cases, Tenant shall use a roof contractor designated by Landlord to perform any roof penetration or other work that may affect the integrity of the Building roof or the roof warranty. Any damage to the roof or any other portion of the Building resulting from Tenant’s installation, repair, maintenance, operation, use, maintenance or removal of the Rooftop Installations, including leakage, water damage or damage to the roof membrane, shall be repaired by Landlord at Tenant’s sole cost and expense. Tenant shall reimburse Landlord for any costs and expenses so incurred by Landlord within thirty (30) days after Landlord’s written request and copies of invoices therefor.
F. Compliance with Legal Requirements. Tenant, at its sole cost and expense, shall comply with all applicable Laws relating to the installation, maintenance, operation, use and removal of the Rooftop Installations. Without limiting the generality of the foregoing, Tenant, at its sole cost and expense, shall be responsible for obtaining, if required, any building permits, and any licenses or permits which may be required by the Federal Communications Commission (“FCC”), the Federal Aviation Administration (“FAA”) or any other governmental authority having jurisdiction over the Rooftop Installations or the Building and shall provide copies of the same to Landlord. If necessary, Landlord agrees reasonably to cooperate with Tenant, at Tenant’s sole cost and expense, to obtain any appropriate licenses or permits.
G. Radio Frequency Emitting Equipment. To the extent Tenant is operating radio frequency (RF) emitting equipment on the roof of or inside the Building, Tenant shall cooperate generally with Landlord and other carriers such that the Building’s rooftop shall be and remain in compliance with all rules and regulations of the U.S. Occupational Safety and Health Administration (“OSHA”) and the FCC relating to guidelines for human exposure to radio frequency or electromagnetic emission levels, as may be issued from time to time, including the rules and regulations adopted in FCC document OET 65 (which rules and regulations have also been adopted by OSHA). If Landlord in its reasonable judgment believes that the Rooftop Equipment, either by itself or in conjunction with other equipment in or on the Building, may exceed permitted emission levels, then Tenant shall (a) promptly upon Landlord’s written request, at Tenant’s sole cost and expense, deliver to Landlord a reasonably acceptable certification or survey report demonstrating that the Building’s rooftop is in compliance with all applicable FCC and OSHA rules and regulations (a “Rooftop Survey”), and (b) to the extent Tenant’s equipment or the operation thereof directly or indirectly causes the Building’s rooftop (or any section thereof) not to be in compliance with such rules and regulations, promptly remedy any such non-compliance in accordance with Landlord’s reasonable directions and at Tenant’s sole cost and expense. If Tenant (i) relocates or makes any change to the Rooftop Installations or (ii) makes any change to any equipment or operation thereof that directly or indirectly affects the operation of the Rooftop Equipment, Landlord may, at its option, require that a new Rooftop Survey be conducted at Tenant’s sole cost and expense by a firm approved by Landlord in its reasonable discretion.
EXHIBIT E
ROOFTOP RULES AND REGULATIONS
H. Termination; Rooftop Installations as Property of Tenant. Upon the expiration or earlier termination of the Lease, Tenant shall immediately cease using the roof of the Building and all Cable Paths and shall, at its own cost and expense, remove the Rooftop Installations and restore the roof and areas affected by the cabling installations to the condition in which they were found prior to the installation of the Rooftop Telecom Installations, reasonable wear and tear excepted. The Rooftop Installations shall be considered Tenant’s Property; provided, however, if Tenant fails to remove the Rooftop Installations upon by the Termination Date, they shall be deemed abandoned and may be claimed by Landlord or removed and disposed of by Landlord at Tenant’s expense.
I. Landlord Exculpation. Without limiting the provisions of the Lease, Tenant assumes full responsibility for protecting from theft or damage the Rooftop Installations and any other tools or equipment that Tenant may use in connection with the installation, operation, use, repair, maintenance or removal of the Rooftop Installations, assumes all risk of theft, loss or damage, and waives claims for all Losses with respect thereto against Landlord and the other Landlord Parties, including any Losses caused by any active or passive act, omission or neglect of any Landlord or any Landlord Parties or by any act or omission for which liability without fault or strict liability may be imposed, except only, with respect to any Landlord Party, (a) to the extent any injury, death or damage is caused by (i) the sole negligence of such Landlord Party and not covered by the insurance required to be carried by Tenant hereunder, (ii) the gross negligence or willful misconduct of such Landlord Party, or (iii) the criminal activity of such Landlord Party, or (b) to the extent such limitation on liability is prohibited by Laws. Further, in no event shall Landlord or any Landlord Parties be liable under any circumstances for any consequential damages or for injury or damage to, or interference with, Tenant’s business, including loss of profits, loss of rents or other revenues, loss of business opportunity, loss of goodwill or loss of use, resulting from damage to or any failure or interruption of use of the Rooftop Installations, however occurring.
J. Insurance; Indemnity. Tenant shall cause the insurance policies required to be maintained pursuant to Article VIII of the Lease to cover the Rooftop Installations and any claims, losses and damages arising in connection with the presence, use, operation, installation, repair, maintenance, or removal of the Rooftop Installations. Without limiting the provisions of Article VIII of the Lease, Tenant hereby agrees to indemnify, defend and hold Landlord and the Landlord Indemnitees harmless from and against any and all Losses arising from or connected in any way with the Rooftop Installations and/or the operations of Tenant or any of Tenant’s agents, employees, subtenants or contractors in connection therewith including (i) all foreseeable and unforeseeable consequential damages to Tenant’s business in the Leased Premises, (ii) any violation of Laws, and (iii) any bodily injury or property damage. The foregoing indemnity shall survive the expiration or earlier termination of the Lease.
K. Conflict. If there is a conflict between the provisions of the Lease and the provisions of this Exhibit E, this Exhibit E shall control.
EXHIBIT F
OPTIONS TO EXTEND
This Exhibit F is attached to and made a part of the Lease by and between SR WINCHESTER, LLC, a Delaware limited liability company, as landlord (“Landlord”), and CALIX, INC., a Delaware corporation, as tenant (“Tenant”) for the Leased Premises (the “Leased Premises”) described therein and consisting of approximately 22,990 square feet of Floor Area in the building commonly known as One Santana West, San Jose, California. Any capitalized terms used herein, not otherwise defined herein, shall have the meanings set forth elsewhere in the Lease.
Landlord hereby grants to Tenant one (1) option to extend the Term (the “Extension Option”) for a period of seven (7) years (the “Extension Term”) commencing on the first day following the last day of the initial Term on the terms and subject to the conditions set forth in this Exhibit F; provided, however, that (i) Tenant has not sublet the Leased Premises (or any part thereof) or assigned its interest in the Lease except pursuant to a Permitted Transfer; (ii) the Extension Option is exercised, if at all, only with respect to the entire Leased Premises; and (iii) Tenant is not in Default of the terms, covenants or conditions of this Lease at the time Tenant exercises the Extension Option. The condition set forth in clause (iii) above is for the sole benefit of Landlord, and Landlord, alone, shall have the right in its reasonable discretion to insist on strict observance with the foregoing condition or to waive any such condition.
A. Exercise. Tenant shall exercise the Extension Option, if at all, by giving Landlord unconditional, irrevocable Notice of such election not earlier than three hundred sixty five (365) days and not later than two hundred seventy (270) days prior to the last day of the initial Term (the “Exercise Period”), the time of such exercise being of the essence. Subject to the provisions of this Exhibit F, upon the giving of such Notice, this Lease and the Term shall be extended without execution or delivery of any other or further documents, with the same force and effect as if the Extension Term had originally been included in the Term.
B. Conditions. If Tenant exercises the Extension Option pursuant to Section A above, then all of the terms, covenants and conditions of this Lease shall continue in full force and effect during the Extension Term, including provisions regarding payment of Additional Rent, which shall remain payable on the terms herein set forth, except that (i) the Minimum Rent during the Extension Term shall be as determined in accordance with Section C below, (ii) Tenant shall continue to possess and occupy the Leased Premises in their existing condition, “as is,” as of the commencement of the Extension Term, and, subject to and without limiting Landlord’s repair, maintenance and other obligations under this Lease, Landlord shall have no obligation to repair, remodel, improve or alter the Leased Premises, to perform any other construction or other work of improvement upon the Leased Premises, or to provide Tenant with any construction or refurbishing allowance whatsoever, and (iii) Tenant shall have no further rights to extend the Term after the expiration of the Extension Term.
C. Prevailing Market Rate. The Minimum Rent payable by Tenant for the Leased Premises during the Extension Term shall be the Prevailing Market Rate (as defined below) for the Leased Premises, valued as of the commencement of such Extension Term, determined in the manner hereinafter provided. As used herein, the term “Prevailing Market Rate” shall mean the annual Minimum Rent that a willing tenant would pay, and that a willing landlord would accept, at arm’s length, for space comparable to the Leased Premises within other comparable office buildings and comparable parking located in the West San Jose, Cupertino, Los Gatos and Campbell, California submarkets (the “Comparison Buildings”), based upon binding lease transactions for tenants in Comparison Buildings (“Comparison Leases”) entered into within twelve (12) months prior to the date of the determination of such Minimum Rent. Comparison Leases shall include renewal and new non-renewal tenancies, but shall exclude subleases and leases of space subject to another tenant’s expansion rights. Rent rates payable under Comparison Leases shall be adjusted to account for variations between this Lease and the Comparison Leases with respect to: (i) the length of the Extension Term compared to the lease term of the Comparison Leases; (ii) the rental structure, including, without limitation, rental rates per square foot (including whether gross or net, and if gross, adjusting for base year or expense stop), free rent additional rental, all other payments and escalations; (iii) the size of the Leased Premises compared to the size of the leased premises of the Comparison Leases; (iv) the location, floor levels and efficiencies of the floor(s) of the Leased Premises compared to the
EXHIBIT F
OPTIONS TO EXTEND
leased premises of the Comparison Lease; (v) the age and quality of construction of the Building compared to the Comparable Building; (vi) the leasehold improvements and/or allowances, (vii) the availability of parking, the parking ratio and parking charges and (viii) all other economic factors or concessions available to a tenant in such a transaction.
D. Landlord’s Proposal. Not later than thirty (30) days after Landlord receives Notice of Tenant’s exercise, provided Tenant has given valid Notice of exercise of the Extension Option, Landlord shall deliver to Tenant a good faith written proposal of the Prevailing Market Rate for the Leased Premises for such Extension Term. Within thirty (30) days after receipt of Landlord’s proposal, Tenant shall notify Landlord in writing (i) that Tenant accepts Landlord’s proposal or (ii) that Tenant elects to submit the determination of Prevailing Market Rate to arbitration in accordance with Section E below. If Tenant does not give Landlord a timely Notice in response to Landlord’s proposal, then Tenant shall be deemed to have accepted Landlord’s proposal.
E. Arbitration. If Tenant elects to submit the determination of Prevailing Market Rate to arbitration, then Landlord and Tenant shall first negotiate in good faith in an attempt to determine the Prevailing Market Rate for the Extension Term. If Landlord and Tenant are able to agree upon the Prevailing Market Rent within thirty (30) days following the delivery of Tenant’s Notice to Landlord electing arbitration, then such agreement shall constitute a determination of Prevailing Market Rate for purposes of this Paragraph, and the parties shall immediately execute a commercially reasonable amendment to this Lease stating the Prevailing Market Rate and the Minimum Rent for the Extension Term. If Landlord and Tenant are unable to agree on the Prevailing Market Rate within such negotiating period, then within fifteen (15) days after the expiration of such negotiating period, the parties shall meet and concurrently deliver to each other their respective written estimates of Prevailing Market Rate for the Extension Term, supported by the reasons therefor (each, a “Determination”). Landlord’s Determination may be more or less than its initial proposal of Prevailing Market Rate. If either party fails to deliver its Determination in a timely manner and such failure continues for five (5) days after the receipt of Notice from the other party to deliver a Determination, then the Prevailing Market Rate shall be the amount specified by the other party. The Prevailing Market Rate shall be determined as set forth below, each party being bound to its Determination and such Determinations establishing the only two choices available to the Arbitration Panel (as hereinafter defined).
i. Within ten (10) days after the parties exchange Landlord’s and Tenant’s Determinations, the parties shall each appoint an arbitrator who shall be a licensed California real estate broker with at least ten (10) years’ experience in leasing Comparison Buildings immediately prior to his or her appointment, and be familiar with the rentals then being charged in the Comparison Buildings. The parties may appoint the real estate brokers who assisted them in making their Determinations as their respective arbitrators. If either Landlord or Tenant fails to appoint an arbitrator and such failure continues for five (5) days after receipt of Notice from the other party, then the Prevailing Market Rate for the Extension Term shall be the Determination of the other party.
ii. Within twenty (20) days following their appointment, the two arbitrators so selected shall appoint a third, similarly-qualified, independent arbitrator who has not had any prior business relationship with either party (the “Independent Arbitrator”). If an Independent Arbitrator has not been so selected by the end of such twenty (20) day period, then either party, on behalf of both, may request such appointment by the local office of the American Arbitration Association (or any successor thereto), or in the absence, failure, refusal or inability of such entity to act, then either party may apply to the presiding judge for the Santa Clara County Superior Court, for the appointment of such an Independent Arbitrator, and the other party shall not raise any question as to the court’s full power and jurisdiction to entertain the application and make the appointment.
iii. Within five (5) days following notification of the identity of the Independent Arbitrator so appointed, Landlord and Tenant shall submit copies of Landlord’s Determination and Tenant’s Determination to the three arbitrators (the “Arbitration Panel”). The Arbitration
EXHIBIT F
OPTIONS TO EXTEND
Panel, by majority vote, shall select either Landlord’s Determination or Tenant’s Determination as the Prevailing Market Rate and Minimum Rent for the Extension Term, and shall have no right to propose a middle ground or to modify either of the two proposals or the provisions of this Lease. The Arbitration Panel shall attempt to render a decision within fifteen (15) Business Days after appointment. In any case, the Arbitration Panel shall render a decision in writing with reasons for the determination within forty-five (45) days after appointment.
iv. The decision of the Arbitration Panel shall be final and binding upon the parties, and may be enforced in accordance with the provisions of California law. In the event of the failure, refusal or inability of any member of the Arbitration Panel to act, a successor shall be appointed in the manner that applied to the selection of the member being replaced.
v. Each party may submit any written materials to the Arbitration Panel within five (5) Business Days after selection of the Independent Arbitrator. No witnesses or oral testimony (i.e. no hearing) shall be permitted in connection with the Arbitration Panel’s decision unless agreed to by both parties. No ex-parte communications shall be permitted between any member of the Arbitration Panel and either Landlord or Tenant following appointment of the Arbitrator Panel until conclusion of the arbitration process. The members of the Arbitration Panel are authorized to walk both the Leased Premises and any space in the Comparison Buildings (to the extent access is made available).
vi. Each party shall pay the fees and expenses of the arbitrator designated by such party and the parties shall share the fees and expenses of the Independent Arbitrator and the expenses incident to the proceedings (excluding attorneys’ fees and similar expenses of the parties which shall be borne separately by each of the parties).
vii. With the exception of claims of fraud, gross negligence or criminal actions, Landlord and Tenant shall waive all claims, causes of action or other rights to proceed against the arbitrators and agree to indemnify and defend the arbitrators from and against any such claims, causes of action or proceedings brought by either Landlord or Tenant against the arbitrators.
viii. Until the matter is resolved by agreement between the parties or a decision is rendered in any arbitration commenced pursuant to this Section E, Tenant’s monthly payments of Minimum Rent shall be in the amount due and payable in the final month of the current Term of the Lease. Within ten (10) Business Days following the resolution of such dispute by the parties or the decision of the arbitrators, as applicable, Tenant shall pay to Landlord the amount of any deficiency in the Minimum Rent previously paid, or Landlord shall pay to Tenant any excess or elect to credit the excess previously paid by Tenant to the next succeeding installments of Minimum Rent until fully exhausted, as the case may be.
F. Rights Personal to Tenant. Tenant’s right to exercise the Extension Option is personal to, and may be exercised only by the Original Tenant. No assignee or subtenant, other than a Permitted Transferee, shall have any right to exercise the Extension Options granted herein.
EXHIBIT G
[INTENTIONALLY OMITTED]
EXHIBIT H
OFFICE TENANT SIGN CRITERIA
| | |
| SANTANA WEST OFFICE BUILDING SIGN CRITERIA |
All signs must be approved in writing by the Landlord and the City of San Jose Department of Planning, Building & Code Enforcement before Tenant commences sign fabrication, installation or obtaining other governmental approvals. No changes are permitted unless approved in writing by Landlord. Landlord’s approval may be granted or withheld in Landlord’s sole and absolute discretion. Notwithstanding any City of San Jose code provision to the contrary, total Tenant sign area per facade shall be limited to one (1) square foot of sign area per each linear foot of respective building frontage.
Tenant shall submit sign shop drawings to Landlord for Landlord’s written approval prior to commencing fabrication. The shop drawings shall indicate the size of all graphics and letters, along with spacing, type(s) of material, color, dimensions in relation to Leased Premises and installation details compatible with the materials and construction of the building facade. The drawings shall be to scale, indicating respective building elevations and appropriate section cuts through each sign, dimensioned to show overall length, height and letter depth, along with distance from end of letters to relevant building and/or demising lines.
Sign types installed at heights less than thirty-four feet (34’) as measured from the top of the adjacent sidewalk grade include the below-referenced Storefront Signs, Display Window Signs, Window Signs, Plaque Signs, Entry Area Paving Signs, and Address Signs. Other architectural elements that may be considered by Landlord at heights less than thirty-four feet (34’) as measured from the top of the adjacent sidewalk grade to communicate the tenant’s identity might include vertical projecting signs such as blade signs, and balcony treatments. Sign types installed at heights greater than thirty-four feet (34’) as measured from the top of the adjacent sidewalk grade include the below-referenced Storefront Signs.
A. Storefront Signs
Storefront signs must reflect the Trade Name of the Tenant. The storefront sign (or “flat mounted signs” as referenced in San Jose’s Sign Ordinance) can include a retail logo, a symbol, or an image which represents the Trade Name. Despite the term “flat” used in the Sign Ordinance, Tenant is encouraged to explore three-dimensional options at Santana Row, offering variety, texture and depth.
Signs should have a three-dimensional character and be illuminated by a fully-integrated light source. To meet City of San Jose lighting requirements, illumination needs to be concealed. Signage cut through a surface material with illumination from behind, or reverse channel “halo” letters are good examples of concealed lighting techniques.
Natural materials are the most appropriate for sign fabrication at Santana Row and can include: cast, polished or painted metal; painted, stained or natural wood; glazed or mosaic tile; etched, cut, edge-lit, or stained glass; cast-stone and carved natural stone. Bas-relief is encouraged, as are unique shapes and dimensional profiles.
All equipment, transformers, raceways, ballasts, crossovers, and conduits must be completely concealed. Connections and penetrations through the fascia shall be restricted. Tenant will remain responsible for damage and/or repair due to the attachment and/or removal of Tenant signs.
B. Display Window Signs
Storefronts may also incorporate signs inside a display window, if an integral part of the architectural design. Display window signs are intended for the Tenant Trade Name and/or logo only. Other brand names, brand logos and/or individual product names are prohibited. Display Window Signs shall be designed to complement architectural design, and in no event will be permitted to exceed more than 10% of the total glazed area.
EXHIBIT H
OFFICE TENANT SIGN CRITERIA
Display Window Signs should generally be set-back sufficiently from the storefront to draw attention to the display area. Signs must be set back a minimum of twelve inches (12”) behind storefront glazing and in all events will be counted against overall sign area. All ballasts, transformers and other non-illuminated elements must be concealed.
C. Window Signs
Window Signs may be proposed in lieu of Display Window Signs or where display window signs are not allowed. Window Signs are intended to display the Tenant Trade Name and/or logo only, in no event will be permitted to exceed more than 10% of the total glazed area, and in all events will be counted against overall sign area.
Window Signs are applied directly to the surface of the glass. These include metal leaf, painted, etched, cut and sandblasted letters and/or logo graphics. Vinyl signs, and reverse cut vinyl adhesive signs on window glazing are not permitted at Santana Row.
D. Plaque Signs
Tenant’s Trade Name, logo, and related imagery may be proposed to Landlord for wall-mounted plaque signs in the vicinity of specific Tenant points-of-entry. Mounting is best at eye-level and sign area is part of area calculations for overall allowances by Code, in all events will be counted against overall sign area.
E. Entry Area Paving Signs
Tenant may propose to incorporate Tenant Trade Name and/or logo inset in entry areas provided they maintain a flush walking surface. Tenant Trade Name and/or logo may be created with a design on or in, for example, glazed tile, mosaic, terrazzo, non-oxidizing stainless, or other approved paving material.
F. Store Address Signage
Landlord has designed a comprehensive system of Tenant way-finding within Santana Row. Consistent with this overall system but architecturally complementary to Tenant’s overall sign program, once approved in writing, Tenant will install, at its cost, its address number in conjunction with the San Jose Fire Marshall’s direction.
G. Additional Signage per Building
Street level blade signs; vertical blade signs; and balcony treatments may be proposed by Tenant to Landlord.
H. Prohibited Sign Materials
Plastic materials of any kind, including acrylic letters, and vacuum-formed plastic letters.
Internally illuminated, acrylic-faced channel letters.
Cabinet signs with illuminated, translucent background and silhouette letters.
Signs utilizing paper, cardboard, stickers, or decals applied to or located behind the storefront glazing.
Sandblasted wood signs in natural wood finish with painted, raised letters and/or logos.
Exposed raceways, ballast boxes, transformers, crossovers or conduit.
EXHIBIT H
OFFICE TENANT SIGN CRITERIA
No advertising placards, banners, pennants, names, insignia, trademarks, or other descriptive or promotional material may be affixed or maintained on windows, glass fixtures and equipment or any other area of the storefront, including credit card signs.
The name, stamps, or decals of the sign manufacturer may not be displayed on any visible portion of the sign. Non-ornamental hardware used to attach sign to storefront may not be exposed to view.
I. Access, Power and Compliance
Access panels in or through Tenant’s demised Leased Premises, and not otherwise visible outside of Tenant’s demised Leased Premises, required to service Tenant sign equipment must be provided by Tenant in accordance with applicable codes and laws.
All illuminated signs shall be on a Tenant electrical circuit and a Tenant electric meter, and controlled by a timer consistent with Landlord’s established Santana Row hours of operation and the hours of illumination permitted by the City of San Jose. Similarly, light levels on signs shall be controlled by a lockable dimmer maintained in a manner consistent with Landlord’s overall Santana Row lighting plan and the levels of illumination permitted by the City of San Jose.
J. Variances.
Landlord to reasonably cooperate with Tenant in obtaining variances of the vertical height limitations imposed by any sign ordinances at no cost to Landlord, so long as the placement of such signs are consistent with the locations specified in Exhibit G (other than the vertical access if such variance is approved) and the signs otherwise comply with the criteria specified herein and all other applicable laws.
EXHIBIT I
FORM OF LETTER OF CREDIT
Not applicable.
EXHIBIT J
FORM OF GROUND LESSOR RECOGNITION AGREEMENT
NON-DISTURBANCE, RECOGNITION AND ATTORNMENT AGREEMENT
Reference is made to a certain Lease Agreement, dated as of March 14, 2014, by and between WINCHESTER INVESTMENTS, LLC, a California limited liability company (hereinafter referred to as “Parent Landlord”), as Lessor, and SR WINCHESTER, LLC, a Delaware limited liability company, with offices at 1626 East Jefferson Street, Rockville, Maryland 20852 (hereinafter referred to as “Landlord”), as Lessee, of certain real property and improvements described therein, including certain real property (the “Entire Leased Premises”) located in the City of San Jose, the County of Santa Clara, State of California, and more particularly described in Exhibit A. Said Lease Agreement, as amended by that certain First Amendment to Ground Lease dated February 10, 2015, that certain Second Amendment to Ground Lease dated January 17, 2016 and that certain Third Amendment to Ground Lease dated February 16, 2018, is hereinafter referred to as the “Parent Lease.” A Memorandum of the Parent Lease is recorded as Instrument No. 22657768 of the Official Records of Santa Clara County, California.
Further reference is made to a certain “Office Lease” (the “Sublease”), dated December ___, 2024, between Landlord, as the sublessor, and CALIX, INC., a Delaware corporation, as subtenant (hereinafter referred to as “Tenant”) of a portion (“the Demised Leased Premises”) of the Entire Leased Premises.
NOW, THEREFORE, in consideration of the mutual covenants and agreements herein contained, the parties hereto hereby agree as follows:
1. Parent Landlord does hereby warrant and represent to Tenant that the Parent Lease has not been amended, except as aforesaid, and is in full force and effect as of the date hereof, that the term of the Parent Lease has heretofore commenced, that, to the knowledge of Parent Landlord, there are no defaults by either Parent Landlord or Landlord thereunder, that Landlord is, as of the date hereof, the Lessee under the Parent Lease and that nothing contained in the Parent Lease prohibits or restricts the execution and delivery of the Sublease.
2. Tenant does hereby warrant and represent to Parent Landlord that the Sublease is presently in full force and effect and unmodified except as set forth above, that to the knowledge of Tenant, there are no defaults by either the Landlord or Tenant thereunder, and that Tenant has no knowledge of any charge, lien or claim or right of offset under the Sublease.
3. Parent Landlord does hereby acknowledge receipt of a fully executed copy of the Sublease. Parent Landlord does hereby consent to the execution and delivery of the Sublease. Parent Landlord does hereby recognize the Sublease and all of Tenant’s rights thereunder. Notwithstanding anything in the Parent Lease contained to the contrary, Parent Landlord does hereby agree that, whether or not the term of the Parent Lease shall be cancelled or shall terminate prior to the expiration of the term of the Sublease, or Parent Landlord shall come into possession of all or any part of the Demised Leased Premises described in the Sublease prior to the expiration of the term of the Sublease, or Parent Landlord shall seek to exercise any of the rights or remedies under the Parent Lease, the Sublease shall continue in full force and effect in accordance with its terms, and Tenant’s rights under the Sublease, and Tenant’s use, possession and enjoyment of the Demised Leased Premises, shall not be modified or disturbed, except for such cause as would entitle Landlord to terminate the Sublease in accordance with the terms and conditions contained in the Sublease. Except as provided in the Sublease, Parent Landlord shall take no action that shall in any way interfere with any right or privilege of Tenant under the Sublease.
4. All proceeds of condemnation awards (and other awards by reason of the exercise of the power of eminent domain) and insurance paid or payable with respect to the Demised Leased Premises or any other part of the Entire Leased Premises and actually received by Parent Landlord, after the deduction of all costs and expenses incurred in obtaining such awards or proceeds, shall, except as otherwise provided in the last sentence of this paragraph 4, to the extent required, be applied and paid in the manner set forth in the Sublease provided and to the extent the same are consistent with the terms of the Parent Lease (regardless of whether or not the Parent Lease is in existence), but in any event including payment and/or application with
respect to the unamortized cost of leasehold improvements constructed by or otherwise at the cost of Tenant. The foregoing is subject to the rights (if any) of any mortgagee of the Entire Leased Premises.
5. Upon the cancellation or termination of the term of the Parent Lease, prior to the expiration of the term of the Sublease as extended, whether the Parent Lease shall be so terminated, or be cancelled, upon the expiration of its term as stated therein or on any other date, and whether upon the election of either Parent Landlord or Landlord thereunder, or in any other manner, so long as Tenant is not then in default under the Sublease beyond any applicable cure period provided in the Sublease, Tenant shall not be made (except in connection with any action Landlord could bring against Tenant in connection with the Sublease) a party in any litigation to evict or dispossess Landlord nor shall Tenant be evicted or disturbed as a result thereof, and Parent Landlord shall recognize Tenant as tenant of the Demised Leased Premises for the balance of the term of the Sublease, as extended, in accordance with all of the provisions of the Sublease.
6. Tenant does hereby agree that, if the term of the Parent Lease shall be cancelled or terminated prior to the expiration of the Sublease, Tenant shall recognize, and attorn to, Parent Landlord as the landlord under the Sublease in accordance with the terms and conditions contained in the Sublease, provided that Parent Landlord shall then assume, subject to the provisions set forth herein and the provisions of Section 7, below, in writing to Tenant to thereafter perform and observe all of the terms and conditions contained in the Sublease on the part of the landlord thereunder to be performed or observed. Notwithstanding anything to the contrary herein, Parent Landlord (i) shall not be bound by any rent or additional rent that Tenant may have paid in advance to Landlord for a period in excess of one (1) month, except to the extent such monies are transferred to or received by Parent Landlord, (ii) shall not be liable for any act or omission of any prior landlord under the Sublease, (iii) shall not be obligated to return any security deposit unless specifically received by Parent Landlord, (iv) shall not be subject to any defense, offsets, claims, counterclaims, reduction, deduction or abatement which Tenant may have against any prior landlord under the Sublease, (v) shall not be bound by any obligation to make any payment to Tenant which was required to be made prior to the time Parent Landlord succeeded to the landlord’s interest under the Sublease, and (vi) shall not be bound by any obligation to perform any improvement work or to make any improvements to the Demised Leased Premises (other than ongoing maintenance and repair obligations). Tenant agrees to give to Parent Landlord copies of all written notices of default given by Tenant to Landlord under the Lease at the same time any such notice is given by Tenant to Landlord.
7. In the event Parent Landlord becomes the Landlord under the Sublease, in accordance with this Agreement, Tenant specifically understands and agrees that there shall be no personal liability on Parent Landlord or any other person or entity with respect to any of the liabilities and obligations under the Sublease. Tenant and any person claiming by, through or under Tenant shall look solely to the equity of the Parent Landlord in the Entire Leased Premises, and the rents, proceeds and profits therefrom, for the satisfaction of Tenant’s and such person’s remedies and claims for damages. Nothing in this Section 7 shall be construed as a bar to any injunctive relief or remedy available to Tenant or as limiting any rights or remedies Tenant may have under the Sublease as a result of any such breach or default, except the right to seek personal liability against Parent Landlord as set forth herein.
8. From and after Tenant’s receipt of written notice from Parent Landlord (a “Rent Payment Notice”), Tenant shall pay all base rent, percentage rent, and/or additional rent (collectively, “Rent”) under the Sublease to Parent Landlord or as Parent Landlord shall direct in writing, until such time as Parent Landlord directs otherwise in writing. Tenant shall comply with any Rent Payment Notice, notwithstanding any contrary instruction, direction or assertion from Landlord. Parent Landlord’s delivery to Tenant of a Rent Payment Notice, or Tenant’s compliance therewith, shall not be deemed to: (a) cause Parent Landlord to succeed to or to assume any obligations or responsibilities as Landlord under the Sublease, all of which shall continue to be performed and discharged solely by Landlord unless and until the Parent Lease is terminated; or (b) relieve Landlord of any obligations under the Sublease. The foregoing is subject to the rights (if any) of any mortgagee of the Entire Leased Premises.
9. Whenever any notice is required or permitted hereunder, such notice shall be in writing and shall be personally delivered or sent, postage prepaid by registered or certified mail, return receipt requested, to the addresses set out below, or to such other addresses as are specified by written notice given in accordance herewith:
PARENT LANDLORD:
Winchester Investment, LLC
c/o Westwind Enterprises, Ltd.
1515 The Alameda, Ste. 200
San Jose, California 95126
Attention: Ray K. Farris, II
with a copy to:
Strategy Law, LLP
One Almaden Blvd.,, Ste. 700
San Jose, California 95113
Attention: Tamara B. Pow, Esq.
TENANT:
Prior to the Lease Term Commencement Date:
Calix, Inc.
2777 Orchard Parkway
San Jose, CA 95131
Attention: General Counsel
After the Lease Term Commencement Date:
Calix, Inc.
1 Santana West
3155 Olsen Drive
Suite 450
San Jose, CA 95117
Attention: General Counsel
with a copy to:
Nossaman LLP
50 California Street
Floor 34
San Francisco, CA 94111
Attention: Simon T. Adams, Esq.
All notices and other communications hereunder delivered or mailed as aforesaid shall be deemed to have been given as of the date of personal delivery, or the date shown on the signed courier or certified or registered mail receipt (or if acceptance is refused, as of the date of refusal of acceptance as shown on the courier or certified or registered mail receipt). Parent Landlord or Tenant shall have the right, from time to time, to change the designation or address of any person to receive notices and other communication on behalf of Parent Landlord or Tenant, as the case may be, by specifying any other designation or address in the United States upon giving fifteen (15) days’ notice thereof to Parent Landlord or Tenant, as the case may be.
10. References herein contained to the term of the Parent Lease and the term of the Sublease shall mean the terms thereof as then extended pursuant to the provisions thereof.
11. The agreements contained herein shall be self-executing without the requirement of any further instrument or act by any party referred to herein. Tenant and Parent Landlord shall, however, confirm the non-disturbance and attornment provisions of this Agreement in writing upon the written request by either of them. This Agreement shall be binding upon, and inure to the benefit of, each of the parties hereto and its successors and assigns. This Agreement and the covenants herein contained are intended to run with and bind all lands affected thereby.
12. This Agreement constitutes the entire agreement between Parent Landlord and Tenant regarding the rights and obligations of Parent Landlord and Tenant as to the subject matter of this Agreement.
13. If this Agreement conflicts with the Sublease, then this Agreement shall govern as between the parties; including upon any attornment pursuant to this Agreement.
14. Except as expressly provided for in this Agreement, Parent Landlord has no obligations to Tenant with respect to the Sublease. If Parent Landlord assigns its interest in the Parent Lease to a third party assignee, all rights and obligations of Parent Landlord under this Agreement shall terminate, and the third party assignee shall automatically have the same rights and obligations as Parent Landlord under this Agreement.
15. The interpretation, validity and enforcement of this Agreement shall be governed by and construed under the internal laws of the state where the Demised Leased Premises are located, excluding its principles of conflict of laws.
16. This Agreement may be amended, discharged or terminated, or any of its provisions waived, only by a written instrument executed by the party to be charged.
17. This Agreement may be executed in any number of counterparts, each of which shall be deemed an original and all of which together shall constitute one and the same instrument.
18. Each party hereto represents that it has the full authority to enter into this Agreement, and that the entry into this Agreement by such party has been duly authorized by all necessary action.
(Signature page follows.)
IN WITNESS WHEREOF, each of the parties hereto has caused this instrument to be executed and delivered all as of the ________ day of ________________, 202_.
PARENT LANDLORD:
WINCHESTER INVESTMENT,
LLC
| | | | | | | | |
| By: | Ray K. Farris, II |
| Name: | Ray K. Farris |
| Title | Manager |
TENANT:
CALIX, INC.,
a Delaware corporation
| | | | | | | | |
| By: | /s/ Cory Sindelar |
| Name: | Cory Sindelar |
| Title: | CFO |
Exhibit A - Description of Entire Leased Premises
Parcel 2 of Parcel Map entitled "Santana West", recorded December 2, 2019, in Book 927 of Maps at Pages 27 - 32, Santa Clara County Records.
Landlord’s Consent
Landlord consents and agrees to the terms of the foregoing Agreement, which was entered into at Landlord’s request. The foregoing Agreement shall not alter, waive or diminish any of Landlord’s obligations under the Parent Lease or the Sublease. The above Agreement discharges any obligations of Parent Landlord to enter into a non-disturbance agreement with Tenant.
Landlord irrevocably directs Tenant to comply with any Rent Payment Notice, notwithstanding any contrary direction, instructions, or assertion by Landlord. Tenant shall be entitled to rely on any Rent Payment Notice, and Landlord hereby agrees to give Tenant full credit for all Rent that Tenant pays to Parent Landlord or its designee in response to a Rent Payment Notice. Tenant shall be under no duty to controvert or challenge any Rent Payment Notice. Tenant’s compliance with a Rent Payment Notice shall not be deemed to violate the Sublease.
Landlord represents to Parent Landlord and Tenant that, as of the Effective Date, to the best of Landlord’s knowledge, no breach or default by Tenant exists under the Sublease, and no event has occurred that, with the giving of notice, the passage of time, or both, would constitute such a breach or default.
The provisions in this Landlord’s Consent are for the express benefit of Parent Landlord and Tenant.
LANDLORD:
SR WINCHESTER, LLC,
a Delaware limited liability
By: Street Retail, LLC,
a Maryland limited liability company
Its: Sole Member
| | | | | | | | |
| By: | /s/ Becca Walker |
| Name: | Becca Walker |
| Its: | Vice President – Head of Legal, Real Estate |
| Date: | 12/16/2024 |
| | |
| | |
| | |
| | |
| | |
| | |
Ground Lessor Retained Property Parking Rights: